Haus der Genossenschaft
Das neue Verwaltungsgebäude der Schiffszimmerer ist Teil des Quartiers
Die älteste Genossenschaft Hamburgs ist die Schiffszimmerer-Genossenschaft, die 1875 zunächst für den Ankauf und Betrieb von Schiffswerften gegründet wurde. Im Jahre 1900 baute die Genossenschaft ihr erstes Mehrfamilienhaus für Schiffszimmerer. Heute ist sie eine der größten Wohnungsbaugenossenschaften in Hamburg mit fast 15.000 Mitgliedern. Zu ihrem Bestand gehören rund 100 Wohnanlagen mit mehr als 9.000 Wohnungen.
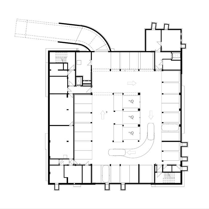
Allein in Ohlsdorf verfügt die Genossenschaft über 13 Wohnanlagen, eine der größeren ist das sogenannte Rübenkampquartier, das in typischer Zeilenbauweise in den 1950er-Jahren errichtet wurde. Der Gebäudekomplex erstreckt sich zwischen Steenkoppel, Fuhlsbüttler Straße, Buekweg und Rübenkamp auf einer Gesamtfläche von über 45.000 m². Seit über 60 Jahren ist hier auch an der Fuhlsbüttler Straße die Verwaltung angesiedelt. Im Zuge der sukzessiven Neuausrichtung des in die Jahre gekommenen Quartiers haben TchobanVoss Architekten auf der Grundlage eines Rahmenplans seit Mitte der 2000er-Jahre die alten Häuser in mittlerweile sechs von zehn geplanten Bauabschnitten durch neue Gebäude ersetzt. Die barrierearmen bzw. barrierefreien Wohnungen mit eineinhalb bis fünf Zimmern sind teils öffentlich gefördert, teils frei finanziert. Das neue Verwaltungsgebäude ist der siebente Bauabschnitt und steht somit innerhalb des „eigenen“ Quartiers. Seine rote Backsteinfassade weist es als Teil der Wohnanlage aus, durch seine Kubatur und Fenstergliederung ist es als Bürogebäude erkennbar. An der Ecke Steenkoppel/Rübenkamp setzt der viergeschossige Baukörper einen städtebaulichen Akzent. Der Einschnitt im Erdgeschoss öffnet sich einladend und schafft eine gut ablesbare Eingangssituation. Die zentrale Mitgliederberatung und ein großer Versammlungsraum sind in diesem repräsentativen und öffentlichen Bereich angesiedelt.
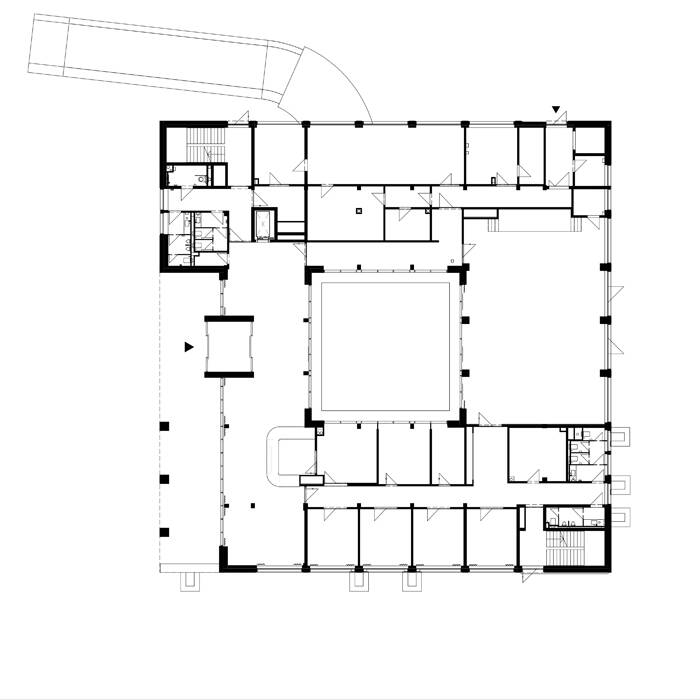
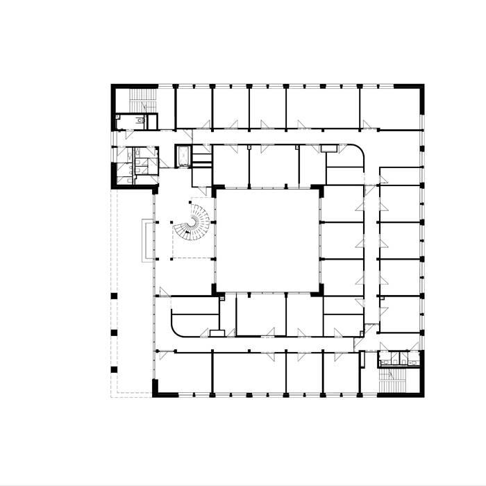
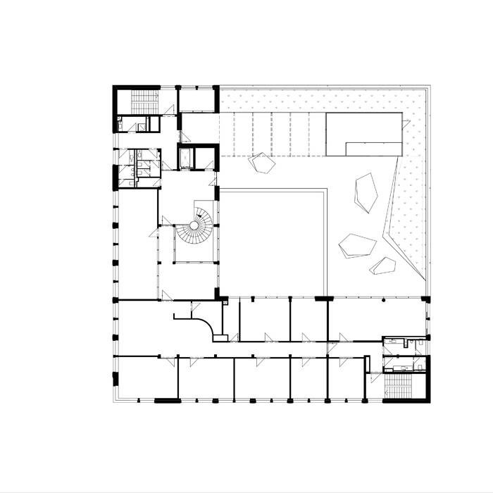
Das erste und zweite Obergeschoss bieten den rund 80 Mitarbeitenden der verschiedenen Abteilungen Räume für unterschiedliche Arbeitsformen sowie Teeküchen. Das dritte Obergeschoss nimmt die Vorstandsebene und den Konferenzbereich auf sowie eine großzügige Dachterrasse, die zur Erholung aller Mitarbeitenden dient. Eine skulpturale Treppe verbindet diese Etagen und fördert die Begegnung. Ein besonders geschätzter Bereich ist der sich über alle Stockwerke erstreckende verglaste und begrünte Innenhof. Alle Kommunikationszonen sind auf ihn ausgerichtet. Sämtliche Büroräume haben Ausblicke in den Aussenraum. Die Tiefgarage bietet 35 Stellplätze für PKW und einen Fahrradraum, jeweils inklusive Ladestationen für E-Autos und E-Bikes.
Fotos: 
Daniel Sumesgutner
www.sumesgutner.de
(Erschienen in CUBE Hamburg 03|24)































