Ein norddeutsches Hofhaus
Moderne Interpretation schafft innen wie außen größtmögliche Privatheit
Häuser, deren Räume sich um eine offene Innenfläche gruppieren, haben ihren Ursprung im römischen Atriumhaus des Altertums. Im Mittelmeerraum ist diese Wohnform weit verbreitet. In den 1920er-Jahren hat die Moderne diesen Typus wieder aufgegriffen, in den 1960er-Jahren wurden ganze Siedlungen mit der als Gartenhofhaus bezeichneten Variante errichtet. Die Bauherrschaft dieses Einfamilienhauses – eine vierköpfige Familie – wünschte sich ein neues Zuhause, das trotz der engen Bebauung in der Nachbarschaft ein hohes Maß an Privatheit im Inneren und in den Außenbereichen ermöglicht. Für diese doch sehr gegensätzlichen Parameter fanden Gondesen + Wenzig Architekten BDA aus Braunschweig mit der modernen Interpretation des Hofhauses eine kongeniale Lösung.
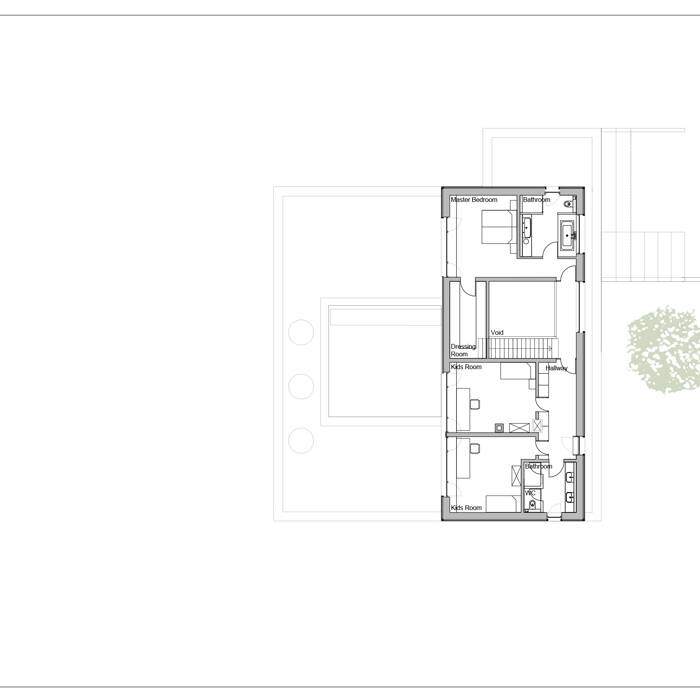
Der Baukörper entwickelt seine Spannung aus dem quadratischen Sockelgeschoss mit eingeschnittenem Innenhof und dem in Teilbereichen aufgelagerten Obergeschoss. Dabei bildet der massive Sockel mit seinem langformatigen, hellen dänischen Backstein einen deutlichen Materialkontrast zum dunklen, vorbewitterten Kupfer der Paneelfassade im oberen Geschoss. Die relativ geschlossene Außenfassade des Sockels entlang der Straße weist nur kleine Öffnungen auf, während sich das Haus rückseitig mit einer großflächig verglasten Fassade zum vor Einblicken geschützten Innenhof öffnet. Ein großer Ausschnitt verzahnt den Hof mit dem Garten und lässt vielfältige Blickbeziehungen aus dem Gebäude in den Außenbereich zu. Die verschiedenen Funktionen des Hauses sind um den Innenhof organisiert. Das Erdgeschoss umfasst 239 m², im Nordtrakt sind Garderobe, Hauswirtschaftsraum, Werkstatt, Arbeitsraum und Gästezimmer angeordnet, im Südtrakt liegen die Bereiche für Wohnen, Essen und Kochen. Im oberen Riegelgeschoss befinden sich die Individualräume der Familie auf 120 m² Wohnfläche. Dazu kommt noch ein Kellergeschoss mit Räumen für Fitness und Technik sowie Abstellflächen. Der helle, extra lange Wasserstrichziegel von Randers Tegl besticht durch sein ruhiges Erscheinungsbild in der Fernwirkung bei gleichzeitiger Lebendigkeit im Nahbereich. Er wurde im Außenbereich auch für die Deckenbekleidungen und Bodenbeläge der Terrassen verwendet. Der Einsatz wertiger, dauerhafter und recyclingfähiger Baumaterialien sowie einer Luft-Wasser-Wärmepumpe und PV-Anlage machen das Gebäude nachhaltig.
www.randerstegl.de
www.gondesen-wenzig.de
Fotos:
Andreas Bormann
(Erschienen in CUBE Hamburg 01|24)
