Hightech Inkubator
Das Start-up Labs ist ein erster Meilenstein für die Science City Bahrenfeld
Der sprichwörtliche Elfenbeinturm hat ausgedient. Heute findet Wissenschaft mitten in der Stadt statt und gerade in Hamburgs Westen im Bereich des DESY-Geländes zeigt sich die Öffnung in die Gesellschaft. Eine Verzahnung von Forschung, Wissenschaft, Gesellschaft und Stadt ist das erklärte Ziel des Projektes Science City Bahrenfeld und soll Synergien für alle Beteiligten bieten.
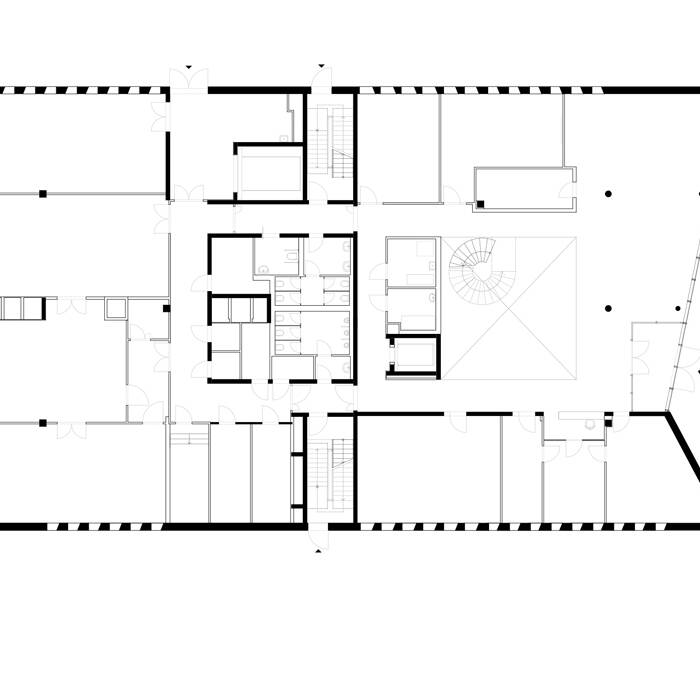
Im Nordosten des bestehenden Forschungscampus, am Übergang zwischen Luruper Hauptstraße und Luruper Chaussee, liegt das neue Innovationszentrum „Start-up Labs Bahrenfeld“, das von DFZ Architekten entworfen wurde. Auf rund 2.700 m² Nutzfläche verteilen sich Büro- und Besprechungsräume, Labore, Coworking-Flächen und eine Cafeteria. Das Innovationszentrum ist ein Gemeinschaftsprojekt von DESY, der Universität Hamburg sowie der Freien und Hansestadt Hamburg und ein wichtiger Bestandteil des neu entstehenden Wissenschaftsquartiers – der Science City Bahrenfeld. Es bietet klugen Köpfen die nötige Infrastruktur, um wissenschaftliche Erkenntnisse in Ausgründungsideen, Produkte und Dienstleistungen umzuwandeln. Hiervon sollen der Wissenschaftsstandort Hamburg sowie die Bürgerinnen und Bürger gleichermaßen profitieren. Deshalb stellt das Innovationszentrum Gründern und jungen Unternehmen aus wissenschaftlichen Forschungsfeldern Flächen und Räume zur Verfügung, um ein ideales Umfeld für diesen Wissenstransfer zu schaffen. Der viergeschossige Baukörper beherbergt kleinteilig vermietbare Büroflächen in einer kommunikativen Raumstruktur sowie komplexe Labor- und Werkstattbereiche. Der helle Eingangsbereich mit seinem Glasdach erstreckt sich über alle Ebenen und bildet mit seiner prägnanten schwarzen Wendeltreppe und der Lichtinstallation das lebendige Zentrum des Gebäudes. Die offene, an den Eingangsbereich anschließende Cafeteria integriert ein speziell entwickeltes taktiles Leitsystem, das die Ansprüche von Blinden und seheingeschränkten Menschen berücksichtigt. Auch weitere halböffentliche Bereiche sind damit ausgestattet.
Als Fassadenmaterial wählten die Architekt:innen ein in Metalloptik beschichtetes Aluminiumblech, das je nach Tageszeit und Sonnenstand sein Erscheinungsbild ändert. Die großzügige Glasfassade im Nordosten wird durch weiße Betonsteine gerahmt. Durch den prägnanten Versatz entsteht ein überbauter Raum, der sich zur Luruper Chaussee öffnet und ein weithin sichtbares Zeichen am Kreuzungspunkt mit der Stadionstraße setzt. Ein Jahr nach der Eröffnung des Start-up Labs sind alle Flächen belegt und eine Erweiterung geplant.
Fotos:
Peter Margis
www.petermargis.de
(Erschienen in CUBE Hamburg 04|22)
