Gelungen durchdacht
Dachaufbau eines traditionsreichen Eck-Mietshauses schafft weiteren Wohnraum
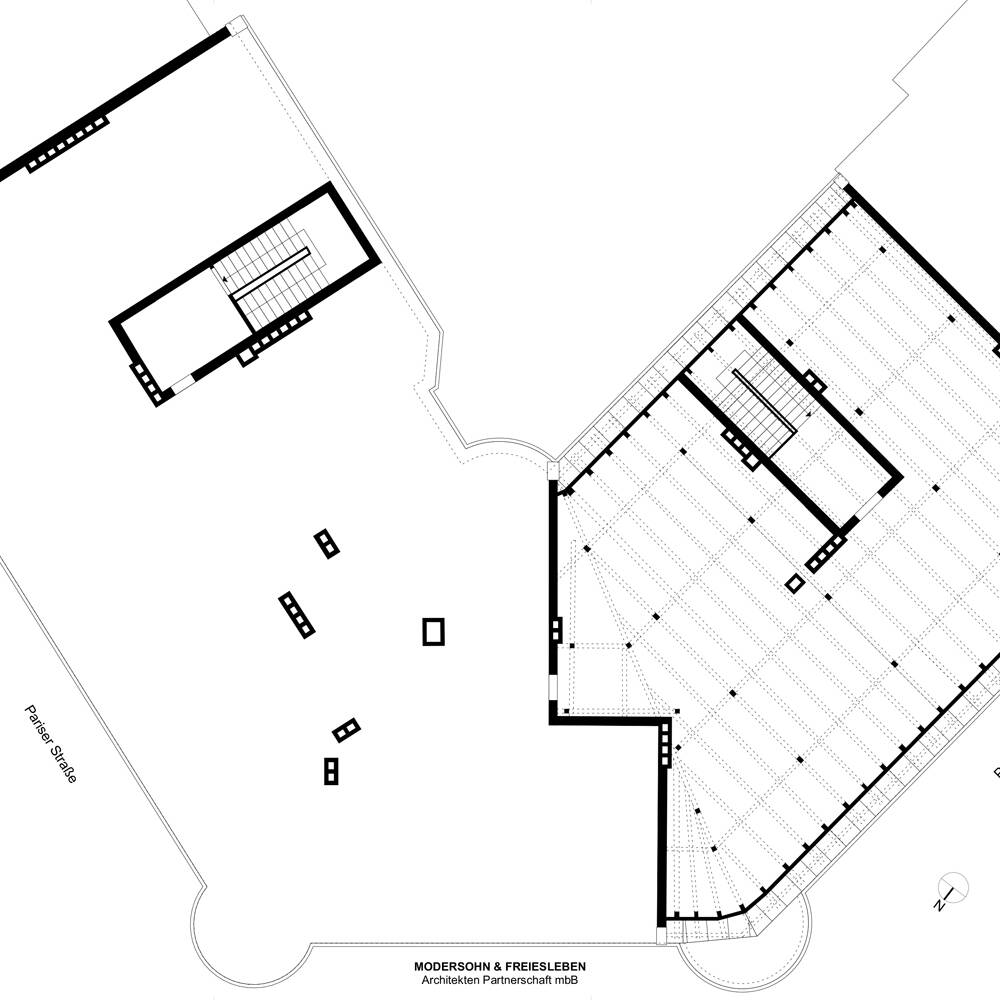
Für heutige Zeiten war das eine doch seltene Aufgabe: Das Architekturbüro Modersohn & Freiesleben erhielt den Auftrag, das vom Krieg zum Teil zerstörte Dach eines prächtigen Eckgebäudes wieder aufzubauen. Während die eine Hälfte des Daches als Flachdach provisorisch wieder aufgebaut worden war, zeigte sich die andere Dachhälfte stark baufällig. Ziel des Dachneuaufbaus war es, das geschichtsträchtige Haus, das zusammen mit seinen Nachbargebäuden seit 130 Jahren einen Straßenraum bildet, um zusätzlichen Wohnraum unterm Dach zu bereichern. Das Haus, das fünf Stockwerke umfasst, ist beinahe spiegelsymmetrisch aufgebaut. Über eine prächtige Marmortreppe geht es in die erste Etage, von wo aus der Weg in zwei Wohnungen führt. Diese waren ursprünglich sehr groß und über je ein weiteres Treppenhaus mit dem Hof verbunden – eben ein typisches Berliner Eck-Mietshaus.
Brandschutz, Stadtplanung und Ensemble-Denkmalschutz gaben der Dachplanung ein enges Korsett vor. So durften lediglich zwei große Wohnungen entwickelt werden – und das auch nur, weil zwei ehemalige Dienstboten-Treppenhäuser vorhanden waren. Zur Straßenfassade erhielt das Dach untergeordnete Gauben, während zum Ludwigplatz hin ein eckbetonender Giebel aufgesetzt wurde. Auf diese Weise ist eine zeitgemäße Interpretation der bauzeitlichen Gestaltung gelungen. Zusammen mit den zwei ursprünglich existierenden und nun wiederaufgebauten Eck-Türmchen gibt der neue Giebel dem Haus sein Gesicht zurück. Der zentrale Raum hinter dem Giebel, der zugleich die Größe des Daches in seiner maximalen Dimension erlebbar macht, ist einer der beiden Wohnungen zugeordnet. Hier ist ausreichend Raum für eine Treppe und Galerie mit exklusivem Austritt Richtung Hof. Hofseitig ist ein flachgeneigtes Dach hinzugekommen, das an wenigen Stellen zurückspringt und Dachterrassen nach Süd und Ost entstehen lässt. Als Material kam Holz für den Dachstuhl zum Einsatz, wobei es – farbig markiert – in die Raumfluchten integriert wurde. Auf diese Weise sind zwei fein detaillierte Wohnungen mit repräsentativen und privaten Räumlichkeiten entstanden, so wie es die Ausgangslage in den Geschossen darunter war: durchgesteckt und lichtdurchflutet, mit Terrassen und der Möglichkeit, den Blick über die Dächer von Berlin schweifen zu lassen.
Fotos:
Nils Oehler
Johannes Modersohn
Kerstin Anke
Sebastian Schels
www.schels.net
(Erschienen in CUBE Berlin 02|25)















