Unauffällig auffällig

Hochwertiges Material in schlichter Ausstrahlung gibt diesem Haus seine Wirkung

LR2737-21_15_700pixel

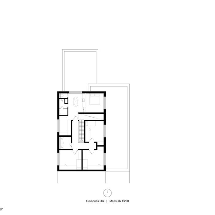
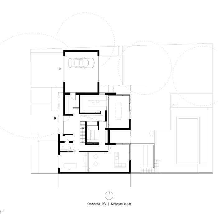
Als auf dem Gelände der ehemaligen belgischen Siedlung das Stadtwaldviertel entstand, waren einige Gebäude schon vorhanden. Die ehemaligen Offiziershäuser etwa, die unter Denkmalschutz gestellt wurden. Neue Wohn- und Geschäftshäuser sollten sich harmonisch in die vorhandene Struktur mit dem prägnanten alten Baumbestand einpassen, das Bild der Siedlung erhalten und doch zur Verdichtung beitragen. Unter dieser Voraussetzung haben Format Architekten ein Reihenendhaus erstellt, das sich einfügt und doch seine Eigenständigkeit zeigt.

Über zwei Parzellen erstreckt sich der Bau, dessen äußere Erscheinung trotz seiner Größe von rund 460 m² Wohn- und Nutzfläche schlicht, geradezu asketisch wirkt. Große feststehende Fenster, in eloxierten Aluminiumrahmen gefasst, durchbrechen die Fassade, die durch unterschiedlich gekörnten Putz Struktur erlangt. Zum Garten hin treppt sich das Gebäude ab, vom Hauptbau mit Satteldach über die sich als Flachdachbau daraus herausschiebende Erdgeschosszone bis hin zur vorgelagerten Terrasse. Über Form und Material verschmelzen innen und außen miteinander. Die kanadische Rot­zeder, die das Erdgeschoss und den flachen Garagenanbau umfängt, setzt sich im Innenraum fort, wo sie sich als Deckenverkleidung von Küche und Essbereich wiederfindet. Die beiden Funktionsbereiche trennen wenige Stufen. Fast scheint es, als gehöre der Essplatz zum Außenraum, zumal sich dessen Eckverglasung komplett öffnen lässt. Die Schiebeelemente laufen in Schienen, die in Decke und Boden verschwinden.

„Wie bei einem Kleeblatt ordnen sich die Räume um einen Kern“, beschreibt Architekt Franz Markus Moster. In diesem Kern, der in der Eingangsachse liegt, öffnet sich über alle drei Etagen ein Luftraum, der mit einem Oberlicht abschließt. Auf diesen Lichthof ausgerichtete Verglasungen lassen auch andere Räume von dieser Tageslichtsäule profitieren. Fensterlos liegt im Kern eine Filmlounge für die ganze Familie. Wandscheiben durchbrechen die Sicht, lenken den Blick gezielt, geben ihm einen Ruhepol. Details wie wandbündige Schwenktüren mit versenkten Scharnieren und wandbündige Fußleisten unterstützen die minimalistische Ausstrahlung, die der fugenlose Spachtelbeton des Bodens und die weißen, in unterschiedlichen Strukturen verspachtelten Wände betonen. Eben unauffällig eingepasst.

www.format-architektur.de

Fotos:

Lukas Roth
www.lukas-roth.de

(Erschienen in CUBE Köln Bonn 04|19)

Nothing found.

Individualität im System

Grundschule verbindet Planungs- und Fertigungseffizienz mit zeitgemäßer Gestaltung

Harmonie mit Liebe zum Detail

Farbkonzepte und Kunstobjekte für ansprechende Praxisräume in Moabit

Wohnraum durch Wandel

Verblüffende Metamorphose – vom „Diskreten Haus“ zum mehrgeschossigen Wohnhaus

Nachhaltig mit Konsequenz

Ein Klimaunternehmen setzt auf Flexibilität und wiederverwendbare Materialien

Nothing found.

211124003_15_700pixel

Projizierte Interferenzen

Die Physikalischen Institute der Universität Köln haben einen neuen Erweiterungsbau erhalten

_MG_7301_19_700pixel

Aufgeputzt und ausgebaut

Denkmalschutz und Gespür für Raum und Zeit prägen die Sanierung dieses Hauses

114_Kometenweg_Du-sseldorf_bearbeitet-Kopie-_small_15_700pixel

Urbanes Refugium

Unter einem Mehrfamilienhaus verbirgt sich ein privates Spa mit eigenem Garten

Für ein schönes Miteinander

Neubau und Bestand ergeben eine ansprechende Wohnanlage

210917-Wohnhaus-Go-bel-HP-Siegen_MG_5688_b_thumb_thumb_thumb_19_700pixel

Stadt-Land-Verbindung

Ein Familienhaus bringt Wünsche und Vorgaben unter ein Dach

Modal-Concept-No-27522_15_700pixel

Klar und funktional

Kristina Meyer setzt auf reduziertes Design und alltagstaugliche Produkte

Streck-Mack-Schwedhelm-2_15_700pixel

Signature Office

Eine Steuerkanzlei in Junkersdorf verknüpft den Bestand mit der Unternehmensphilosophie

Soziale Teilhabe als Programm

Soziale Teilhabe als Programm

Das „De Flo“ in Nippes wird zum Wohn-, Arbeits- und Begegnungszentrum