Sympathisch, ortstypisch und Seeblick
Junges Architekturbüro setzt mit Holzhaus architektonischen Akzent
Berühmte Architekten waren bisher meist Männer über 40, Architektinnen sind auch heute noch seltener zu finden. Um diesem Antagonismus etwas entgegenzuwirken, lobten acht BDA-Landesverbände (Baden-Württemberg, Bayern, Hessen, Rheinland-Pfalz, Saarland, Sachsen-Anhalt, Sachsen und Thüringen) den Wettbewerb Max40 aus. Die JungarchitektInnen unter 40 Jahren sollten dadurch etwas mehr Aufmerksamkeit abbekommen. Zu den ausgezeichneten Architekten des Wettbewerbs gehören die drei jungen Augsburger Architekten Michael Bayr, Lukas Glatt und Manuel Guimaraes mit ihrem Haus G in Schondorf am Ammersee. Glatt und Guimaraes hatten erst 2017 ihr Büro gegründet, Bayr stieß 2020 dazu. Der Älteste der drei wird in diesem Jahr 40, seine beiden Kollegen sind jünger. Es ist nicht die einzige Auszeichnung für das Haus G: 2020 wurde es in den Kreis der 50 besten Einfamilienhäuser aufgenommen. Die drei jungen Architekten hatten von Anfang an erstaunlichen Erfolg.
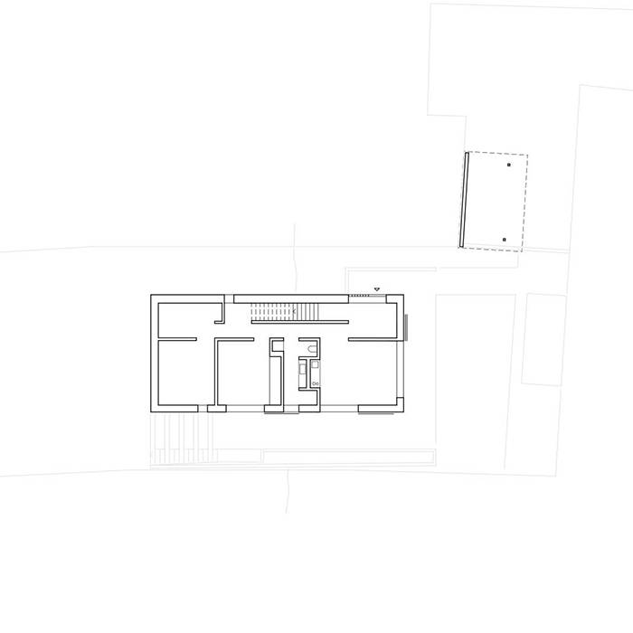
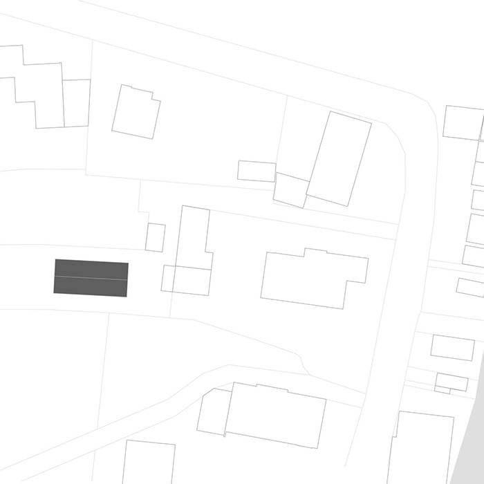
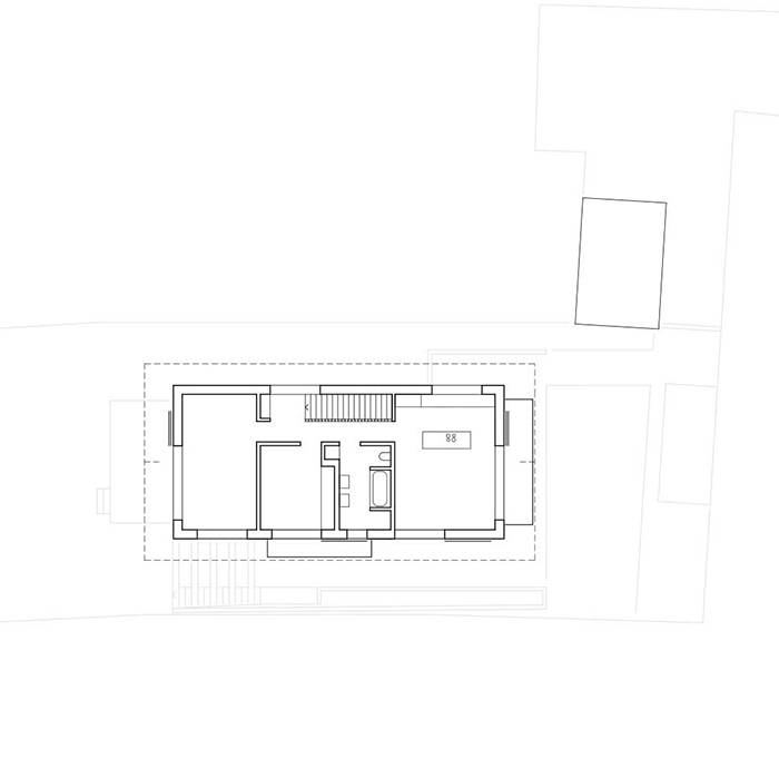
Das Haus G wie Glatt wurde für die Eltern von Lukas Glatt entworfen und gebaut. Das Ehepaar Glatt wollte sich im Alter nochmal verändern und von der Stadt aufs Land ziehen. Sie beschlossen, ein kleines geerbtes Grundstück in Schondorf mit etwas Seeblick – weil es in der zweiten Reihe steht – zu nutzen, um hier ein eigenes Holzhaus zu bauen. Naheliegenderweise wurde das Büro des Sohnes mit der Planung und Umsetzung beauftragt.
Kann ein Haus sympathisch sein? Ob ja oder nein – dieses Haus ist es. Es sitzt auf einem schmalen Grundstück in leichter Hanglage und erinnert an die ortstypischen Boots- und Fischerhäuser. Gen Osten, in Richtung See, ist es doppelgeschossig und hangseitig, im Westen lehnt es sich an die leicht ansteigende Topografie des Grundstücks an und ist nur noch eingeschossig. Man gelangt vom 1. Obergeschoss aus direkt auf eine Terrasse und in einen kleinen Garten. Seeseitig überbrücken einige Stufen das Gefälle und eine weitere Terrasse lädt zum Frühstück in der Sonne ein. Außer dem Fundament ist das gesamte Haus ein Holzhaus. Die Außenfassade wurde mit Lärchenholz verkleidet und mit einer Vergrauungslasur behandelt. Das sehr flache Satteldach ist ebenfalls grau gestrichen. Es ist leicht überstehend, um die Fassade, die Balkone und die Terrassen zu schützen. Für die Verschalung der Innenwände wurde Weißtannetäfer ausgewählt. Geheizt wird mit einer Luft-Wasser-Wärmepumpe. Die Wohnräume befinden sich im oberen Stockwerk. Das Erdgeschoss bleibt flexibel – für Gäste, die Kinder samt Enkeln oder auch als Einliegerwohnung für eine Haushaltshilfe. Trotz seiner verhältnismäßig geringen Größe macht es im Innern einen geräumigen, großzügigen Eindruck.
Fotos:
Caro Dentler
www.permat-design.de
(Erschienen in CUBE München 01|22)
