Ganz anders und doch passend

Modernes Wohnhaus fügt sich harmonisch in ältere Wohnsiedlung ein

_DSC0546-Kopie_19_700pixel

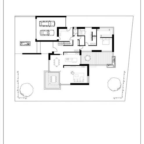
Verwinkelt und mit skulpturalem Charakter setzt dieses private Wohnhaus einen interessanten Akzent in einer Wohnsiedlung, die überwiegend vom Architekturstil der 1950er- und 1960er-Jahre geprägt ist. Dabei wurde die spannende Form des Hauses aus einer Not heraus geboren. „Das freie Grundstück, das die Bauherrn gefunden hatten, war nicht ideal ausgerichtet“, sagt Architekt Dirk Terfehr vom Büro Eden Architekten und erklärt weiter: „Die Straße liegt westseitig. Hinzu kommt, dass die straßenseitige Baulinie zehn Meter zurück liegt, wodurch zum Großteil ungenutzte Vorgärten entstehen und auf dem rückseitigen Grundstück wenig Platz verbleibt.“ Um diesen bestmöglich zu nutzen, entwickelte das Architekturbüro ein Gebäude, das sich aus mehreren Teilen zusammensetzt. Durch das Ineinanderschieben und Versetzen der einzelnen Kuben sind überdachte Terrassen sowie der Eingangsbereich entstanden.

Im Innenbereich sorgen fließende Raumübergänge für ein weiträumiges Wohngefühl, während die großen Fensterflächen großzügige Blicke in den Garten ermöglichen sowie innen und außen verschmelzen lassen. Um dennoch genügend Privatsphäre zu erreichen und die Bewohner vor Blicken von außen zu schützen, wurden die Räume entsprechend angeordnet. Zusätzlich ist der Garten, der sich um das ganze Gebäude erstreckt und die Ost- mit der Westseite verbindet, durch eine Hecke zur Straße und eine Klinkermauer zum Eingangsbereich abgegrenzt. Die Wohnbereiche werden von der Ost-, Süd- und Westseite belichtet, sodass das Licht von morgens bis abends um den Wohnraum herumwandern kann und je nach Tageszeit für eine andere Lichtstimmung sorgt. Die Nebenräume wie Hauswirtschaftsraum sowie Bad, WC und Schlafzimmer sind zusammen mit der Garage in einem Riegel an der Nordseite untergebracht, während sich die Wohnräume, also Küche, Ess- und Wohnzimmer, in den Garten Richtung Süden ziehen. Es gibt eine privatere, von der Straße abgewandte (Frühstücks-)Terrasse mit Ostausrichtung, an der der Schlafraum und die Küche angebunden ist. Eine zweite überdachte Terrasse ist zur Westseite ans Ess- und Wohnzimmer angeordnet.

Als durchgehendes Fassadenmaterial kommt Torfbrandklinker zum Einsatz, der als ortstypisches Material sowie in seiner Farbwahl mit den Nachbarhäusern harmoniert und dem Gebäude etwas angenehm Raues verleiht. Zudem sorgt der einzeln von Hand sortierte Klinker für einen spannenden Kontrast zur klaren Struktur und Form des Gebäudes. Dank des klassischen Materials, der Gebäudegröße und der Einhaltung der Baulinie fügt sich das private Wohnhaus trotz seiner Modernität harmonisch in das Straßenbild ein.

www.edenarchitekten.de

Fotos:

Hendrik Rosenboom
www.henro.de

(Erschienen in CUBE Hamburg 02|22)

Nothing found.

Wohnen im Komponistenviertel

Junges Wohnquartier in alter Nachbarschaft in Weissensee

Lichtdurchflutete Arbeitswelt

Hocheffizientes Bürogebäude in der Maxvorstadt

Gelungene Überführung

Der Umbau eines ehemaligen Wochenendhauses begeistert die Bauherrin

Individualität im System

Grundschule verbindet Planungs- und Fertigungseffizienz mit zeitgemäßer Gestaltung

Nothing found.

Lighthouse-B-sum_Innendesign_Innenarchitektur-DeFries_historisches-Baust-_Bild5_1000x667_bearb_700pixel

Neuer Einsatz für alte Ziegel

Unternehmen bereitet alte Ziegelsteine auf – für Charakterwände mit Geschichte

2_schneider-schumacher_Plan_c_Joerg_Hempel_19_700pixelb5lmsWvHjNsJl

Gutes tun in Barmbek

Das Haus der Patenschaften von Plan International

01_H1_DFZ_Pergolenviertel2b_Innenhof_suedwest_15_700pixel

Hamburg liebt Backstein

Bauten des Pergolenviertels interpretieren historische Quartiere neu

5_stilwerkhotels_heimhude_livingkitchen_kvadrat_kvadrat_thonet_astep_kpm_-c-_stilwerk_t-baermann_15_700pixel

Probewohnen mit Design

Im Hotel Heimhude lässt sich ein ganzer Designkosmos erleben

Alles außer gewöhnlich

Die „Holzrotonda“ zeigt Lösungen für den zukünftigen Bau von Einfamilienhäusern auf

neubau_am_see_01_15_700pixel

EIn Ort zum Durchatmen

Ferienhaus am See als erholsame Rückzugsmöglichkeit

3473_17_DS_15_700pixel

Neues Leben im alten Haus

Ein denkmalgeschütztes Reihenhaus wurde zum individuellen Zuhause

mittelweg-rainer-taepper-architekturfotografie-16_15_700pixel

Zu neuem Leben erweckt

Das Gebäude wurde umfassend entkernt, erhielt eine neue Gründung sowie eine innere Neuordnung.