Alte Bäderkultur in neuem Gewand
Aus dem Oderberger Stadtbad wurde ein exklusives 4-Sterne-Hotel
Am 1. Februar 1902 öffneten sich erstmals die Tore des Oderberger Stadtbades im Bezirk Prenzlauer Berg. Das mächtige Gebäude war von Architekt und Stadtbaurat Ludwig Hoffmann (1852–1932) geplant und in nur drei Jahren gebaut worden. Hoffmann war ein großer Baumeister, der Berlin an die 300 Gebäude bescherte – Krankenhäuser, Verwaltungsgebäude, Schulen – und eben Stadtbäder, damals unverzichtbare „Hygieneanstalten“, da die Wohnungen der ärmeren Bevölkerung keine Bäder hatten. Seine Entwürfe waren stilistisch dem damals vorherrschenden Historismus angepasst: reich verziert und teilweise etwas überladen. Nicht so das Oderberger Stadtbad, das sich reger Beliebtheit erfreute – und nun, nach der Wiedereröffnung, wieder erfreut. 1987 musste das Bad wegen Rissen im Boden des Schwimmbeckens geschlossen werden. Während der Schließung war das Bad eine Eventlocation und ein heißer Szenetipp für ausgedehnte Feten. Bis schließlich, mehr als 20 Jahre später, die Besitzerin des Nachbargrundstücks mit einer Sprachenschule beschloss, das gleich große Grundstück samt Bad zu kaufen, es zu revitalisieren und in ein Hotel umzubauen. Schulcampus und auch das Hotel sind nun seit einigen Jahren wieder in Betrieb und zu einem einzigartigen Nostalgie-Ort geworden.
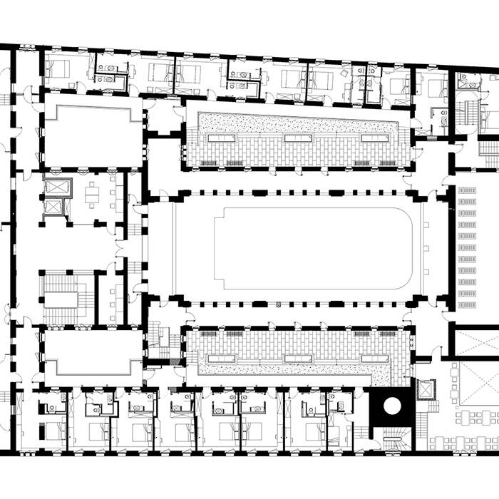
Die komplexe Sanierungsaufgabe und Neuplanung übernahm das Büro cpm Architekten. Eine Mammutaufgabe, die sich über vier Jahre hinzog. Nachdem die Architekten im Vorfeld bereits die GLS Sprachenschule saniert hatten und der Raumbedarf dort anstieg, wurde nun auch das Bad saniert und umgebaut. Die Baumaßnahmen umfassten ein Restaurant, eine Bar, einige Schulungsräume, 70 Zimmer, zwei Apartments und fünf Turmsuiten. Herzstück der gesamten Anlage ist jedoch unzweifelhaft die kathedralenartige Schwimmhalle. Das Becken bekam einen neuen gefliesten Boden – wobei das Denkmalamt darauf bestand, dass die Fliesen dieselbe Größe hatten wie zuvor und speziell gebrannt werden mussten. Der Clou aber ist der Hubboden, den Mathias Jensch sich ausgedacht hat. Der Boden kann binnen 20 Minuten hochgefahren werden, d. h. der Boden befindet sich im Wasser, nur die Höhe ist verstellbar. Um die Wasserverdrängung zu erleichtern, öffnen sich Klappen im Beckenboden. Der Veranstaltungssaal wird auch mehrmals pro Woche für Hochzeiten und dergleichen gebucht. Um so viele Gäste bewirten zu können, war auch die Einrichtung einer Vollküche erforderlich. Tagsüber ist das Schwimmbad öffentlich zugänglich – wie eh und je können die Berliner hier ihre Bahnen schwimmen und anschließend im Souterrain die neue Sauna nutzen.
Den Architekten und Planern ist hier ein wahres Meisterwerk gelungen. Es wurden alle skulpturalen Verzierungen an den Wänden des Bades erhalten oder, sofern sie beschädigt waren, neu nachgearbeitet. Ein Wunder fast, dass das gesamte Gebäude die Luftangriffe des Zweiten Weltkrieges so gut überstanden hat – nur das große Fenster an der Stirnseite zum Campus hin war in Scherben gegangen. Die ehemaligen Duschkabinen im 1. Obergeschoss wurden in Seminarräume verwandelt, indem man zwei oder mehrere Kabinen zusammenlegte. Wo immer möglich, wurden Zitate aus der Gründerzeit erhalten. Die alten Türen der Kabinen wurden hinter Glas gepackt und dienen nun in den Hotelzimmern als Badezimmertüren. Aus den ehemaligen Warteräumen wurde eine Bibliothek auf der einen, und eine luxuriöse Bar auf der anderen Seite. Zum Teil sind noch alte, robuste Möbel erhalten. Jede Zimmerkategorie der insgesamt 70 Hotelzimmer ist individuell und geschmackvoll eingerichtet, wie z. B. die kleinen Apartments im Turm, für die eigens Zwischendecken eingezogen wurden. Für das Restaurant, das im ehemaligen Heizkeller Quartier bezogen hat, wurden zwei Etagen durch eingezogene Betondecken gebildet, wo man ebenfalls speisen kann. Man kann kaum anders als begeistert sein von dieser gelungenen Revitalisierung.
Fotos:
GLS Sprachenzentrum
www.gls-sprachenzentrum.de
(Erschienen in CUBE Berlin 02|21)










