Eins aus zwei
Satteldachhaus für zwei Parteien wird zur Villa mit Burgblick
Ein historischer Ortskern, eine markante Burgruine und eine alte Stadtmauer. Kein Wunder, dass sich das über Tal und Hügel erstreckende Birnbaum großer Beliebtheit erfreut. Die Villa, die cma cyrus moser architekten hier durch den Umbau eines Zweifamilienhauses geschaffen haben, liegt von Wohnhäusern umgeben an einem steilen Gelände. 1965 wurde das Haus mit den zwei Wohneinheiten in konventioneller Bauweise gebaut: Mit geneigtem Dach, wie es damals üblich war. Eine der beiden früheren Wohneinheiten lag im Kellergeschoss, die andere im Erdgeschoss mit Zugang zum teilweise ausgebauten Dachgeschoss. Die Bauherren wünschten sich nun eine moderne Villa durch Umbau im Bestand.
Bei dem Umbau haben die Architekten beide Wohneinheiten zusammengelegt, das Satteldach zurückgebaut und ein neues Obergeschoss mit Terrasse hinzugefügt. An der nördlichen Fassade entstand außerdem ein Balkon. So wurde nicht nur eins aus zwei: Das Einfamilienhaus hat auch gestalterisch an Charakter gewonnen und ist nun von klaren, kubischen Formen geprägt.
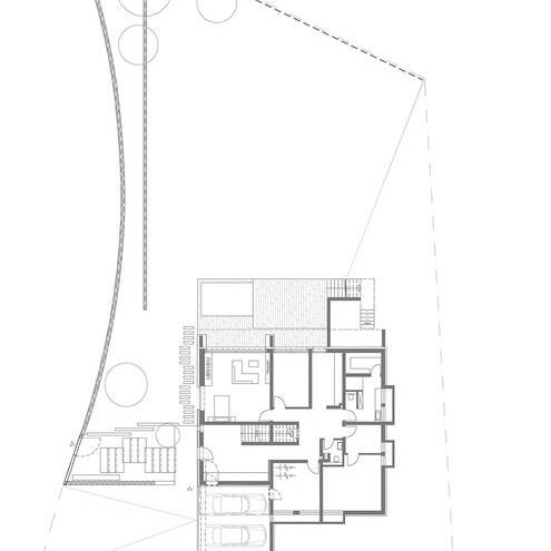
Die Konzeption des Hauses ist bestimmt von den vorherrschenden topografischen Verhältnissen. Der Eingang zum Haus wurde an die Straße verlegt und führt ebenmäßig in das Untergeschoss. Von dort wird das Haus über eine zentrale Treppe erschlossen. „Im Erdgeschoss entstanden durch Zonierung spannende Raumsequenzen mit fließendem Übergang in die Landschaft“, so die Architekten.
Wohnräume, Küche, Essplatz, zwei Kinderzimmer mit je einem Duschbad sowie Nebenräume sind in dem auf dem Kellergeschoss liegenden Kubus untergebracht. Das Obergeschoss ist dem Privatbereich gewidmet: Elternschlafzimmer, Ankleide, Masterbad und Loungebereich liegen hier. „Auch durch die Zusammenarbeit mit rumi interior bei Möbeln, Licht, Tapete, Teppich und Interieur entstand eine gelungene Mischung aus klaren Linien außen und behaglichem Inneren. Das Spiel mit dem Glanz und der Textur der Oberfläche, dem Einsatz des Materials in Kombination mit atmosphärischem Licht erzeugt auf die Bedürfnisse der Bauherren abgestimmte Räume.“ Um den Blick auf die Burg Sonnenberg zu ermöglichen, haben die Architekten die Fassade großflächig Richtung Norden und Dachterrasse geöffnet und verglast.
Wo immer möglich, haben die Architekten bei allen Arbeiten den Gebäudebestand größtmöglich erhalten. Da die ehemaligen Doppelhäuser aus einer Mischkonstruktion aus Mauerwerk und tragenden Stahlbetonstützen errichtet wurden und somit ein großes Maß an Flexibilität boten, waren die Architekten relativ frei in der Planung: Satteldach und Bestandsdecke über dem Erdgeschoss konnten unkompliziert zurückgebaut, bestehende Wände im Erdgeschoss erhöht oder auch eine neue Stahlbetondecke auf das Erdgeschoss aufgebaut werden.
Fotos:
José Campos
(Erschienen in CUBE Frankfurt 03|19)
