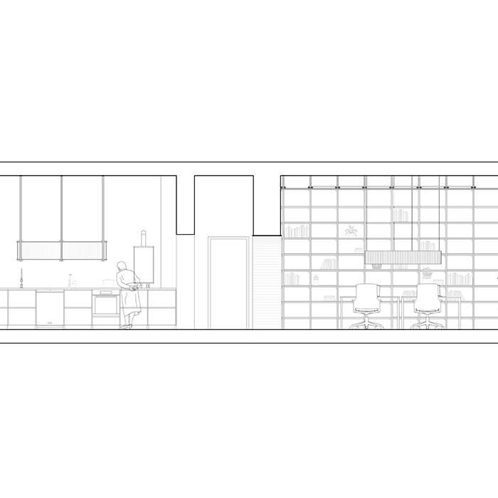
Kreislauffähig und charmant

Ein Office und Showroom in Flingern setzt auf konsequentes Cradle-to-Cradle-Design

magdalena_gruber_urselmannoffice_interior_high-24_15_700pixel

Mit rund 60 Prozent des gesamten Abfallaufkommens steht die Bauindustrie an erster Stelle ressourcenintensiver Wirtschaftssektoren. Auch wenn in einigen Bereichen des Bausektors mittlerweile bereits ein Recycling praktiziert wird – eine auf eine nachhaltige Kreislaufwirtschaft ausgerichtete Transformation auf breiter Basis erscheint in diesem Bereich notwendig und überfällig. Das Düsseldorfer Start-up für Inneneinrichtung urselmann interior vermeidet den „Designfehler“ Müll von der Entwurfsphase an. Wie sehr sogenannter Abfall ein Nährstoff sein und der Bauabfall von morgen bereits heute vermieden werden kann, führt das junge Team konsequent in Innenausbau und -ausstattung seines eigenen Büros in einem früheren Ladengeschäft im Stadtteil Flingern vor.

Das Office verfügt über einen Coworking-Space mit Besprechungsraum und Küche, versteht sich zugleich aber auch als Showroom und Reallabor. Es kommen dabei ausschließlich Materialien zum Einsatz, die sortenrein demontierbar sind und somit dauerhaft kreislauffähig. „Allein bei der Demontage der beschädigten Decke und einer Schicht des Fußbodens auf 74 m² sind etwa vier Tonnen Müll entstanden“, erzählt Gründer Sven Urselmann. „Dieser konnte aufgrund seiner Beschaffenheit nur verbrannt oder deponiert werden.“ Um diesen „Designfehler“ zu vermeiden, wurden beim Ausbau des Büros einzig Materialien und Produkte verwendet, die entweder biologisch abbaubar, in einem technischen Kreislauf durch ein Upcycling weiterverwendet werden können oder bereits eingesetzt wurden und einem Re-Use zugeführt werden. Das Ziel ist Schritt für Schritt die vollständige Umstellung hin zu einer Kreislaufwirtschaft nach der Denk- und Designschule von Cradle to Cradle. Vorhandene Dielen- und Terrazzoböden wurden dazu freigelegt und aufgearbeitet, die ursprüngliche Abhangdecke entfernt und durch eine filigrane und zugleich leimfreie Massivholzkonstruktion mit Leitungsführungen ersetzt. Alle Wände erhielten einen Anstrich mit Lehmfarbe und wurden mit einer akustisch wirksamen Plattenverkleidung aus recycelter Zellulose des spanischen Herstellers Honext versehen. Um den Einsatz von Klebstoffen zu vermeiden, sind die Verbindungen an allen Möbeln allein mechanisch hergestellt. Einige verwendete Elemente wie Heizkörper und Beleuchtung wurden über eine Baustoffplattform bezogen, andere wie Tische oder der Backofen der Küche konnten Second Hand erworben werden. Mit den Office-Chairs kommen ergonomische Arbeitsstühle zum Einsatz, die Cradle to Cradle zertifiziert sind. Die Idee des Urban Mining aufgreifend wurden schließlich alle verwendeten Elemente in einem Materialpass aufgelistet und für die zukünftige Verwendung veröffentlicht.

www.urselmann-interior.de

Fotos:

Magdalena Gruber
www.magdalenagruber.com

(Erschienen in CUBE Düsseldorf 03|22)

Architekten:

urselmann interior
www.urselmann-interior.de

Schreiner:

Proest
www.proest-gmbh.de
Tom Kirchner
www.tomkirchner.com
Tischlerei holztec
www.holz-tec.com

Maler:

krieewelsch.dessin
www.krdessin.com

Elektroarbeiten:

Carsten Gehrmann
www.smarthomeduesseldorf.de

Bodenarbeiten:

vKT-Bodenbeläge
Telefon: 02132-77167

Terrazzo-Aufarbeitung:

RCS – Steinbodensanierung
www.rcs-steinbodensanierung.de

Steinmetz:

Pientka Naturstein
www.pntk.de

Pflanzen:

Green Note
www.greennote-plants.com

Nothing found.

Geborgen unter hohen Dächern

Zeitgemäße Kitaarchitektur macht auch aus der Topografie ein pädagogisches Angebot

Neues macht Altes präsenter

Sensible Transformation einer Altbaubauwohnung mit Kunstsammlung

Vitale Neuordnung im Raum

Modernes Arbeiten für eine internationale Kanzlei am Potsdamer Platz

Nothing found.

DJI_0020-kopieren_19_700pixel

Wohnoase mit Geschichte

Die Alte Porzellan Manufaktur kreiert eine neue Adresse mit Ortsbezug im Zooviertel

20220401_111024_56656-HDR_15_700pixel

Blick für das Wesentliche

Aufgeräumter, moderner Einrichtungsstil stellt die Highlights in den Fokus

004_jk150821_15_700pixel

Mr. Gatsby’s Second Home

Das Grande Étoile d’Or holt den Glamour in die Carlstadt

200531005_15_700pixel

Transparenz als Konzept

Die Stadtwerke Neuss haben am zentralen Standort ein weiteres Verwaltungsgebäude erhalten

Wohnhaus_Wohnzimmer_2_15_700pixel

Licht und Schatten

Das Interior einer Stadtvilla besticht im Konzept und seinen gestalterischen Details

12799807px1920x1280_15_700pixel

Scharfkantig eingefügt

Ein Einfamilienhaus reflektiert den dörflichen Kontext und wirkt dabei doch ganz modern

jw1938-0011_4k-din_a4_15_700pixel

Integration einmal anders

Ein früheres Anstaltsgelände wird zu einem flexibel bewohnbaren, inklusiven Quartier transformiert

Versöhnender Solitär

Ein Wohnhaus in Gerresheim fügt sich mit plastischer Dachlandschaft in seine Nachbarschaft ein