Selbstbestimmt in der Mitte
Zu einem geschützten und doch offenen Innenhof hin liegen die Gemeinschaftsbereiche und die Wohnräume der Wohngruppen und Einzelapartments.
Hilfe zu erhalten, wenn sie notwendig ist, erfreut und zeugt von einer Gesellschaft, die sich sorgt und in der Mitmenschen füreinander einstehen. Doch niemandem gefällt es, ständig auf Hilfe angewiesen zu sein. Ein selbstbestimmtes Leben zu führen, sollte daher eine Selbstverständlichkeit sein, die aber leider für viele Menschen nur schwer erreichbar ist. Barrierefreiheit mag im Kopf beginnen, muss dann aber auch in die Lebensrealität hinaus, im Alltag möglich sein. Wohnprojekte wie das „City Inklusive“ der Josefs-Gesellschaft in Troisdorf machen vor, wie es geht. Der Entwurf von Schulte Architekten hat nicht nur die Auftraggeber überzeugt, sondern auch gleich den Landespreis für Architektur, Wohnungs- und Städtebau des Landes Nordrhein-Westfalen errungen.
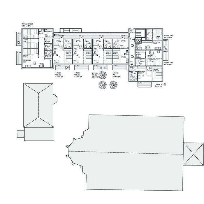
Ausgehend von der alten Immobilienweisheit – nämlich Lage, Lage, Lage – steht das Gebäude ideal. Kurze Wege zur Innenstadt mit ihren Geschäften des täglichen Bedarfs, Ärzten und Freizeitangeboten kennzeichnen das Grundstück. Doch gelebtes Miteinander beginnt schon viel früher, liegt direkt vor der Tür. Durch die Nachbarschaft zur Kirchengemeinde St. Hippolytus eröffnen sich zahlreiche Möglichkeiten der sozialen Interaktion und Teilhabe. Mit der Kirche und dem ehemaligen Pfarrheim bildet der Neubau einen geschützten und doch offenen Innenhof, der in seiner Anlage das Motiv eines Kreuzgangs aufnimmt. Zu ihm hin liegen die Gemeinschaftsbereiche und die Wohnräume der Wohngruppen und Einzelapartments. Das Gebäude nimmt sich hier etwas zurück, der dreigeschossige Wohnbau öffnet sich mit transparent gefassten Balkonen und einem Staffelgeschoss. Davon verrät die Straßenansicht noch nichts, die mit vier Vollgeschossen ein Gegengewicht zum massigen Kirchenbau bildet.
Barrierefreiheit war einer der wichtigsten Punkte des Projekts. Hier findet sie nicht nur in der Erschließung des Grundstücks und der Wohnungen ihren Ausdruck, sondern auch in leicht zu übersehenden Details. In den Boden versenkte Müllcontainer etwa erleichtern den Alltag von auf einen Rollstuhl angewiesenen Menschen ebenso wie die tiefergelegten Küchenzeilen. Mit einer Fußbodenheizung, betrieben über einen Gasbrennwertkessel, der Warmwasserbereitung über Sonnenkollektoren und den Einzelventilatoren in den Wohnungen mit nachströmender Außenluft kommt dieser besondere Neubau dagegen fast schon konventionell daher. Ganz gewöhnlich, ganz selbstverständlich eben. Genau so, wie die 38 Bewohner hier ein ganz selbstverständlich selbstbestimmtes Leben führen können. Dann wird es leicht, Hilfe anzunehmen, wenn es notwendig ist. Aus freien Stücken und nicht, weil es nicht anders geht.
Fotos:
Manos Meisen
www.manosmeisen.de
(Erschienen in CUBE Köln Bonn 02|20)
