Schule als Ort der Begegnung
Die neue Gesamtschule in Essen ist ein Lernort, der den Stadtteil einbezieht
Nach sechs Jahren Planungs- und Bauzeit steht sie nun da, die neue Gustav-Heinemann-Gesamtschule in Essen-Schonnebeck – einladend und offen für Begegnungen. Augenzwinkernd wird auch auf den Namensgeber eingegangen: Die charakteristische Hornrandbrille des einstigen Essener Oberbürgermeisters und späteren Bundespräsidenten findet sich als Betonskulptur wieder. Dem Team von Sehw Architektur ist es gelungen, ein integratives Gebäude für die Menschen im Stadtteil zu entwickeln, eines, das schon vor seiner Fertigstellung mit mehreren Preisen gewürdigt wurde.
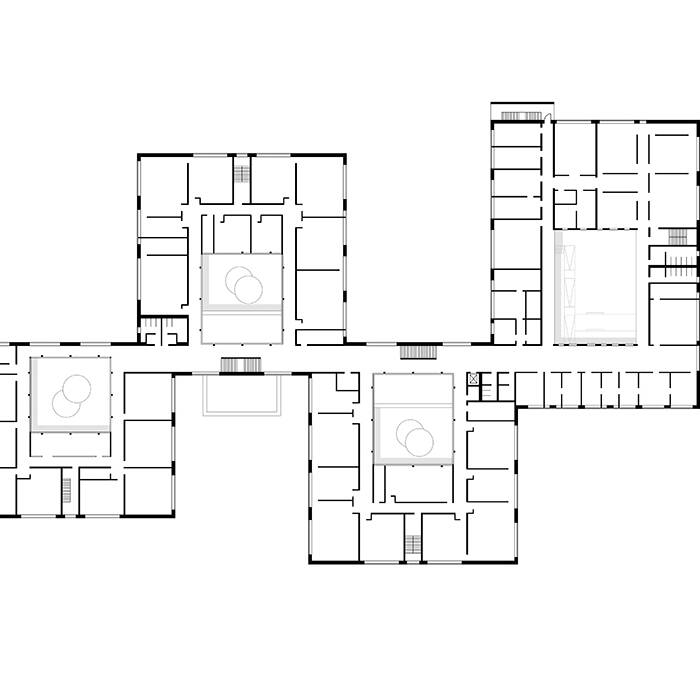
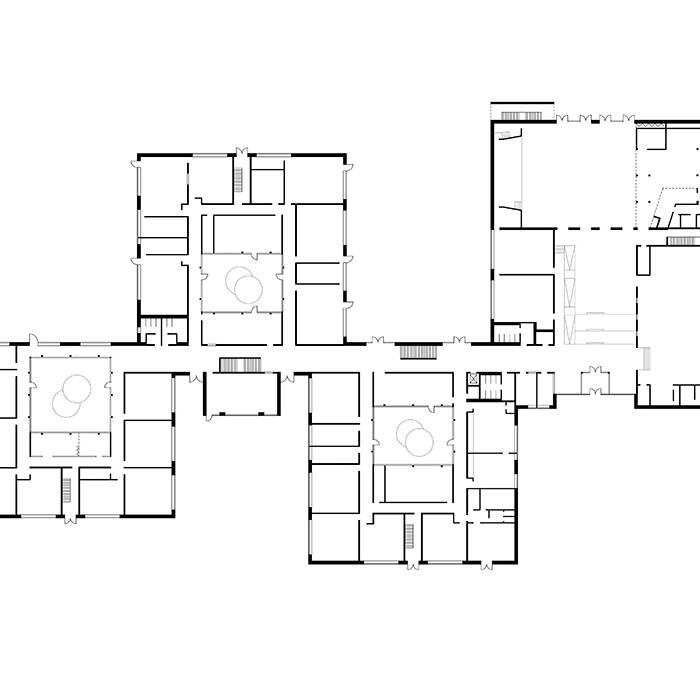
Das Gebäude ist in verschiedene Baukörper aufgelöst, die streng gegliedert sind und dadurch Orientierung bieten. Durch die Verschiebung der beiden südlichen Gebäudeteile wurde eine gut erkennbare Eingangssituation mit einem attraktiven Vorplatz geschaffen. Schließlich kommen nicht nur Lernende und Lehrende hierher, das Gebäude steht auch BürgerInnen des Stadtteils offen, die die hier integrierte Stadtteilbibliothek, das Forum, die Mensa oder Aula sowie einzelne Fachräume nutzen. Der Neubau besteht aus einer robusten Mauerwerkfassade aus hellem, geschlämmtem Klinker. Die Fassade gliedern große, streng angeordnete Fenster als Holz-Aluminiumkonstruktion. Auch im Innenbereich wird mit warmem Holz gearbeitet. So befinden sich in einigen Räumen widerstandsfähiges Industrieparkett, Holz-Glas-Elemente als Türen sowie Einbaumöbel aus Birkensperrholz und eine Decke aus Holzlamellen für die Raumakustik. Ebenso wichtig ist Tageslicht, das dank großer Fensteröffnungen, verglasten Eingangsbereichen und Innenhöfen reichlich Einlass ins Gebäude findet. Orientierung bietet das Farbkonzept, das sich an die Farbkollektion Le Corbusiers von 1959 anlehnt, aus der fünf harmonierende Farben ausgewählt wurden. Das Herz der Schule ist das zweigeschossige Forum. Das leichte Gefälle in diesem Bereich sorgt für einen spannungsvollen Übergang in den direkt angebundenen Mehrzweckraum, der mit dem Forum zusammengeschaltet werden kann. Im Anschluss folgt die Mensa, südlich ist die öffentliche Bibliothek als bewusst herausgestellter Baukörper verortet.
Das Gebäude wurde in Anlehnung an die Passivhausbauweise geplant und realisiert. Aufgrund der massiven Bauweise und der hybriden Lüftung konnte auf aufwendige Technologien verzichtet werden. Heizwärme wird durch Erdgasbrennwertthermen erzeugt. Das Gebäude wird passiv gekühlt und verfügt über einen individuell steuerbaren, außenliegenden Sonnenschutz. Zur Hitzeabfuhr im Sommer erfolgt eine Nachtauskühlung über die raumlufttechnische Anlage.
Fotos:
Philipp Obkircher
www.philippobkircher.de
Helin Bereket
www.helinbereket.com
(Erschienen in CUBE Ruhrgebiet 01|22)
