Farbenfrohe „Bärenschule“

Erweiterungsbau der Grundschule in Friedrichshain

GPS-C-Ebener-2454-1_15_700pixel

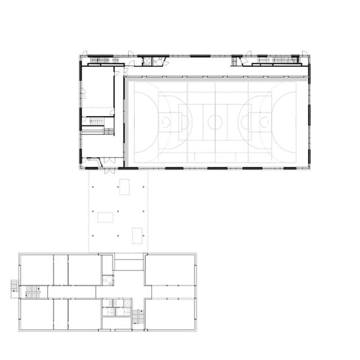
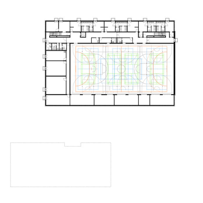
Die Grundschule an der Pufendorfstraße in Friedrichshain war als Ergänzungsgebäude für einen modularen Ergänzungsbau (MEB) errichtet worden. Dieser war im Rahmen der Verordnung des Landes Berlin ein paar Jahre früher für die zu klein gewordene Schule entstanden. Nun war das Gebäude in Hinblick auf das Raumangebot viel zu klein und unzureichend geworden. Der Auftrag erging an das Architekturbüro NAK – Numrich Albrecht Klumpp – Spezialisten im Bereich Schulbau. In dem neu errichteten Gebäude musste genügend Platz für fehlende Klassenzimmer, Verwaltungsbüros, Fachräume und eine Zweifachsporthalle geschaffen werden. Das Gebäude verfügt über drei Etagen. Die Sporthalle liegt im ersten Untergeschoss und reicht bis zum Erdgeschoss. Zusammen mit der stillgelegten Auferstehungskirche sowie dem alten und neuen Schulhaus ergibt sich ein Dreigespann von solitären Baukörpern. Die beiden Schulen sind durch einen überdachten Gang verbunden.

Das Ensemble ist umschlossen von einem parkartigen ehemaligen Friedhof im Südosten und einem Wohngebiet im Nordwesten. Mit seiner Klinkerfassade nimmt der Neubau Bezug zu den Relikten der frühen Industriebauten dieser Gegend – dem Alten Schlachthof oder der nahegelegenen ehemaligen Brauerei. Polygonale torbogenähnliche Einschnitte im Erdgeschossbereich bringen Licht ins Innere und gewähren Blicke beispielsweise in die Sporthalle und ins Foyer. Über den drei Stockwerken, knapp vor dem Flachdach, haben sich die Erbauer ein besonderes Beiwerk einfallen lassen: Wasserspeier in Form eines stilisierten Bärenkopfes sind reihum angebracht. Sie wurden mit Hilfe eines 3-D Programmes entworfen und von Baukeramikern hergestellt – dieses spielerische Element trug dem Gebäude den Spitznamen „Bärenschule“ ein. Auch das Innere der Schule hat einige Besonderheiten anzubieten – ins Auge fällt zunächst das Farbkonzept, das nicht nur schön, sondern auch funktional ist. Die Böden verfügen über farbige Linoleumbeläge, die gleichzeitig Wegweiser sind. Die Farben folgen einer brandschutzrechtlichen Vorgabe: Rot steht für den Fluchtweg – hier darf nichts den Weg versperren. Orange steht für den Zugang zu untergeordneten Räumen, nur der blaue Bereich kann frei möbliert werden. Nicht minder farbenprächtig ist das kaskadenhafte Treppenhaus. Die Treppenwangen sind in den gleichen gedeckten Farben gestrichen wie die Böden. Es kann davon ausgegangen werden, dass die Kinder in dieser farbenfrohen Umgebung gern und leicht Zugang zum Lernen finden.

www.nak-architekten.de

Fotos:

Markus Ebener
www.marcus-ebener.de

(Erschienen in CUBE Berlin 02|23)

Nothing found.

Neugestaltung eines Neubaus

Nach Umbau entsteht ein maßgeschneidertertes Zuhause in Düsseltal

Farbspektrum

Ein Business Club in Citylage setzt farbenreich auf Exzellenz und Vielfalt

Ein Teil des Waldes

Umbau einer Scheune zu einem modernen Rückzugsort

Passgenau am Bach

Eine geförderte Wohnanlage in Bergisch Gladbach ordnet sich kleinteilig in ihren Kontext ein

Nothing found.

BLOOMGARDEN-Ebener-5634-2_46_700pixel

Ein Stück Umbaukultur

Weiterbauen heißt aus dem Bestand das Neue generieren

7-sehw-architektur-RA25-berlin-HB_DSC_1769_15_700pixel

Zwillinge für Großstadtnomaden

Ein Zwillingbau bestehend aus zwei Boardinghouses wurde In Oberschöneweide eröffnet.

Ein Teil des Waldes

Umbau einer Scheune zu einem modernen Rückzugsort

01-ST54-Mireille-Moga_19_700pixel

Glückstreffer

Aus einer ehemaligen Drogerie wird ein Architekturbüro

_BAN0483-lowres_700pixel

Altes Gebäude neu ergänzt

Kriegszerstörtes Industriegebäude Gertrudshof komplett wiederhergestellt

02_WE-EF_FLC141_BERLIN_BER_806_4C_19_700pixel

Das wirft ein gutes Licht auf BER

Die Freifläche wird mit zwei Reihen mit nur jeweils vier schlanken Lichtstelen lückenlos erhellt, wirkt dabei aber dank weicher Helligkeitsverläufe…

VSP_2019_1240_by_viktor_strasse2_42_700pixel

Symphonie in Schwarz

Selten geworden: Ein luxuriöses Einfamilienhaus in der Hauptstadt

Es werde Licht

Der Charakter dieser Wohnung bestimmt das Lichtkonzept