Schlicht einsatzbereit
Feuerverzinkte Fassade umhüllt die neue Kölner Hauptfeuerwache
Vielfältig sind die Aufgaben einer Feuerwehr, Rettungseinsätze finden bei Feuer ebenso wie bei Hochwasser oder Unfällen statt. Und immer müssen Retter und ihr Material voll einsatzfähig sein. Grund genug, Feuerwachen mit der notwendigen Infrastruktur auszustatten, vor allem wenn es sich um eine Hauptfeuerwache handelt, in der nicht nur die Berufsfeuerwehr, sondern auch die Ehrenamtlichen der Freiwilligen Feuerwehr ihren festen Standort haben sollen. Knoche Architekten haben eine solch multifunktionale Feuerwache in Kalk auf einer ehemaligen Gewerbebrache im Gleisdreieck realisiert.
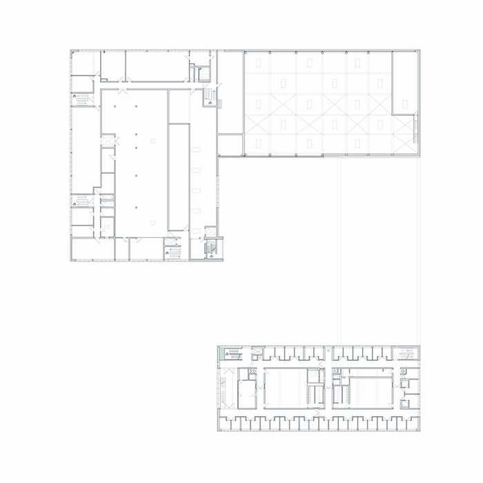
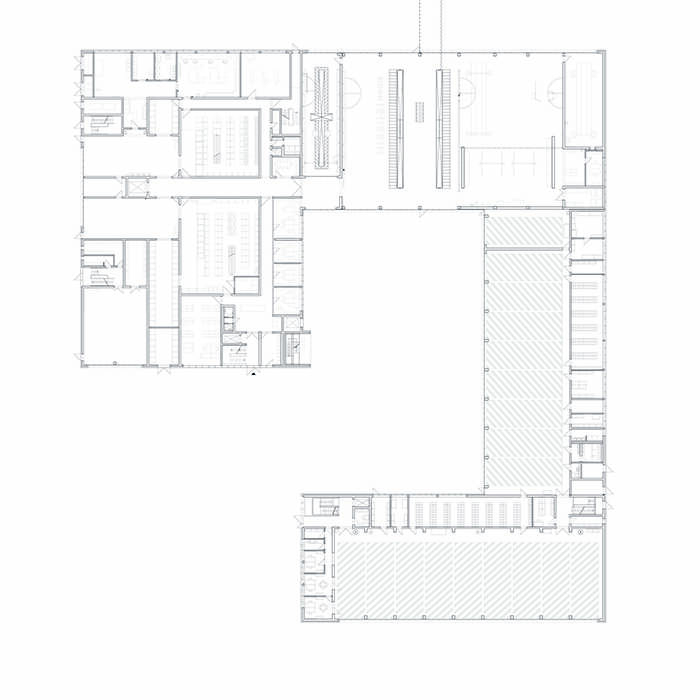
An der robust wirkenden Fassade aus feuerverzinkten Stahlblächen ist der Herstellungsprozess des Verzinkens ablesbar. Willkürliche Farbverläufe etwa, matte oder glänzende Stellen. Hier wurde nicht nachgearbeitet, hier sind Unterschiede in der Oberflächenmusterung erwünscht. Die Platten hängen zwischen unregelmäßig angeordneten Lisenen aus rechteckigen Aluminiumprofilen, die die Vertikale der Fassade markieren. Unterbrochen an den Geschossdecken, entsteht ein abwechslungsreiches Raster der vorgehängten Fassade, die den gesamten Gebäudekomplex optisch zusammenhält. Schon von weitem ist die Ziffernfolge 112 erkennbar, die im obersten Abschnitt des langen, schmalen Schlauchturms prangt. Mit dem gegenüberliegenden fünfgeschossigen Hauptbaukörper der Berufsfeuerwehr säumt er die Einfahrt in den Innenhof, den sie gemeinsam mit den übrigen, niedrigeren Gebäuden bilden. An dieser Stelle können Übungen stattfinden und hier befinden sich auch die Zufahrten für neun der insgesamt 18 Garagenplätze für Feuerwehr- und Rettungsfahrzeuge. Diese warten hier nicht nur auf ihren Einsatz, sie können zudem in den Fahrzeugwerkstätten gewartet werden. Zusätzlich zu den im Erdgeschoss liegenden Sanitär-, Ruhe- sowie Verwaltungsräumen liegen im Trakt der Berufsfeuerwehr auch noch Schulungsbereiche, Aufenthaltsräume und eine Sporthalle. Die Erschließung erfolgt über Aufzüge, Treppen und die feuerwehrtypischen Rutschstangen, um die Wegezeit zum Einsatz zu verkürzen.
„Funktionalität, kurze Wege und störungsfreie Abläufe standen im Mittelpunkt unserer Planung“, so Architekt Christian Knoche. Berücksichtigt wurden dabei nicht nur die Erfordernisse der Berufsfeuerwehr am Standort, sondern auch die Schnittstellen zu anderen Einheiten. Beherbergt die Hauptfeuerwache doch auch Werkstätten und die zentrale Warenausgabe für alle Kölner Feuerwachen. Zudem hat die Freiwillige Feuerwehr Kalk direkt neben den Werkstätten ihre Räumlichkeiten, mit direktem Zugang zum Übungshof.
Fotos:
Roland Halbe
www.rolandhalbe.eu
(Erschienen in CUBE Köln Bonn 03|20)
