Die Ortsmitte stärken
Einfühlsames Wohn- und Geschäftshaus in Ostfildern-Nellingen
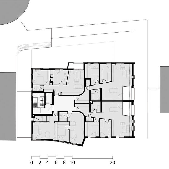
Zentral gelegen, erweitert das neue Gebäude in der Esslinger Straße 18 vom Architekturbüro Kauffmann Theilig & Partner das Wohnangebot und mit einem Drogeriemarkt auch die Nahversorgung der Ortsmitte des mit über 10.000 Einwohnern größten Stadtteiles von Ostfildern. Das Gebäude ist formal als maximal mögliches Volumen ausgebildet – immer unter Betrachtung der bestmöglichen Einfügung in die umgebende Bestandsbebauung. So ist die Abschrägung der Südfassade ein Resultat der Einhaltung der Abstandsflächen als auch der Anlehnung an die Dachschrägen der Nachbarbebauung. Darin eingeschnitten sind den Wohnungen zugeordnete, großzügige Loggien. Auch teilt sich die Baumasse deutlich durch Versatz, Oberfläche und Bearbeitung in zwei Volumen und entspricht so der Körnigkeit der Umgebung. Zur Straße hin faltet sich die Fassade deutlich nach außen hin auf und markiert darunter den Zugang zum Drogeriemarkt. Hier unterscheiden sich die beiden Volumen sichtbar in der Farbe der Klinker und der Fenster- und Gebäudehöhen. Die sichtbaren „Einschnitte“ in das Volumen sind durch anthrazitfarbene Blechverkleidungen verdeutlicht, welche sich auch in den Fensteröffnungen fortsetzen. Im Zusammenspiel bilden die eingefassten Laibungen horizontale Fensterbänder aus. Als französische Balkone bieten die raumhohen Verglasungen den Wohnungen einen Außenraumbezug. Zur Hofseite hin ergibt sich ein ähnliches Bild durch die unterschiedliche Verarbeitung der Putzoberflächen und der Staffelung der zwei Baukörper mit Balkonen im Versatz.
Auf Erdgeschossebene ist das Grundstück maximal für den Drogeriemarkt überbaut. Zum Hof hin bietet sich dadurch eine große Terrassenfläche für die darüber angeordnete Senioren-Wohngemeinschaft, die von der Stadt Ostfildern betrieben wird. Die zentrale und durch Aufzug schwellenlose Erschließung liegt durch die zusammenhängende Gewerbenutzung auf der Nordseite mit entsprechend großzügigem Erschließungsbereich für die Ein- bis Dreizimmerwohnungen im 2. und 3. Obergeschoss als Fünf- bzw. Sechsspänner. Das Penthouse darüber ist straßenseitig zurückversetzt und dadurch kaum sichtbar und fügt sich hofseitig in das Volumen des Gebäudes ein. Die bestehende Tiefgarage der benachbarten Volkshochschule wurde für das neue Gebäude erweitert. Auch stehen im Untergeschoss Mieterkeller, Wasch-, Fahrrad- und Müllraum für die Bewohner zur Verfügung.
(Erschienen in CUBE Stuttgart 01|21)
