Ende gut, alles gut
Trotz schwieriger Vorgaben entstand ein kleines Juwel
Der erste Kontakt zwischen den Bauherren und dem Architekturbüro Huster & Caplan aus Lüdinghausen lag schon einige Zeit zurück. Die Bauherren gingen danach auf die Suche nach einem geeigneten Grundstück für ihr Bauvorhaben, was etwa eineinhalb Jahre dauerte. Nachdem der Kaufvertrag unterschrieben war, schrieben die Bauherren freudig an die Architekten: „Wir haben das perfekte Grundstück gefunden, auf dem wir all unsere Wünsche wie Flachdach, Staffelgeschoss und geradlinige Architektur verwirklichen können!“ Dies wurde sogar im Notarvertrag festgehalten.
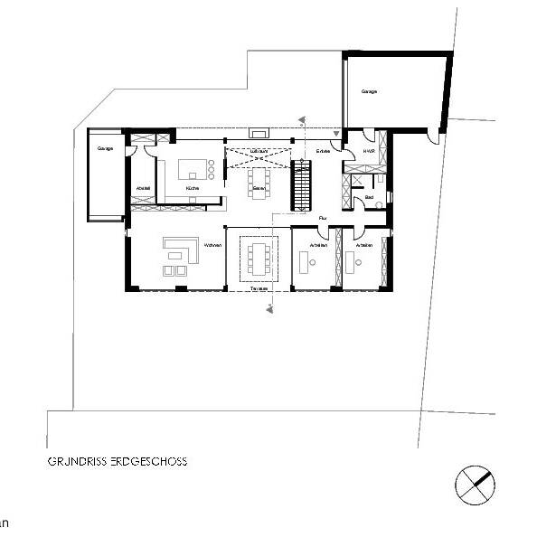
Das etwa 750 m² große Grundstück in Herten ist Teil eines kleinen Neubaugebietes im innerstädtischen Kontext und wird von einem Privatgarten, dem Außenbereich eines Kindergartens und der neuen Erschließungsstraße des Bauareals begrenzt. Die Möglichkeiten zur Bebauung des Grundstücks waren jedoch durch einen recht alten Bebauungsplan geregelt. Dieser enthielt zur großen Überraschung der Architekten die Aussage, dass dort nur eingeschossig mit Satteldach gebaut werden durfte. Das darauf folgende Gespräch mit den Bauherren war dann eher ernüchternd und die Karten mussten neu gemischt werden! In vielen Gesprächen mit der Stadt ließ sich eine Lösung entwickeln, die alle Beteiligten überzeugte. Entstanden ist ein geradliniges teilunterkellertes Gebäude, welches nach dem Flächenfaktor als eingeschossig angesehen werden konnte. Das Satteldach ist ein sehr flach geneigtes Walmdach ohne Dachüberstand, das in Formensprache und Materialität zur Klarheit des Baukörpers beiträgt. Die Eingangsseite bildet eine Zweigeschossigkeit ab, während die Gartenseite eine eingeschossige Bebauung mit Staffelgeschoss zeigt. Das Erdgeschoss wird durch eine fließende Raumfolge geprägt, bei der innen und außen ineinander übergehen und miteinander verschmelzen. Besonders in den zentralen Bereichen des Hauses gibt es vielfältige Sichtbezüge nicht nur nach draußen, sondern auch zwischen den Geschossen. Dieser Eindruck wird durch die großzügigen Fensterflächen und den eingeschobenen Freisitz mit Glasdach zusätzlich verstärkt.
Der Essplatz als der zentrale Treffpunkt der Familie wurde in der Mitte des Hauses und in direkter Verbindung zum Freisitz angeordnet. Alle weiteren Lebensräume im Erdgeschoss beziehen sich unmittelbar auf diesen zentralen Essraum. Das Dachgeschoss bietet viel Platz für die privaten Schlafzimmer und Bäder der Familie. Auch hier erweitern sich die Räume durch großflächige Verglasungen zu einer sehr großzügigen, privat gehaltenen Dachterrasse. Durch ihre begehbare Glasdecke über dem Freisitz werden die Geschosse wiederum optisch miteinander verbunden. Dieses Thema setzt sich fort: Auch die Erschließungsflächen erlauben über eine kleine Galerie die Sichtverbindung zum Esszimmer. Mit seinen ausgewogenen Proportionen und der handwerklichen Präzision im Detail ist ein zeitloses kleines Juwel entstanden, das sich harmonisch in seine Umgebung einfügt und dennoch seine markante Eigenständigkeit bewahrt.
(Erschienen in CUBE Ruhrgebiet 03|19)
