Upcycling

Behutsam modernisiertes Reihenhaus aus den 1960er-Jahren weitet sich mit neuer Qualität

F22_ZB640-03_19_700pixel

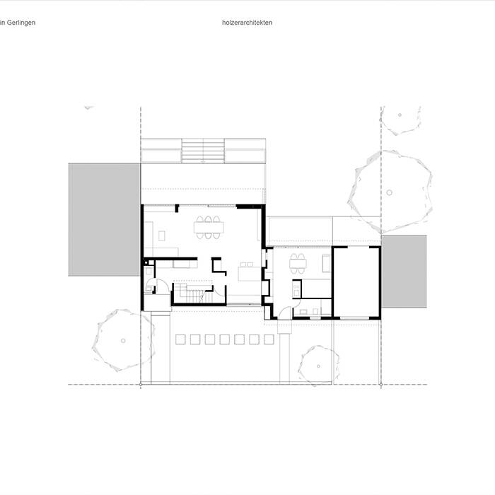
Die Waldsiedlung, in die sich dieses Haus einreiht, entstand in den Jahren 1962 und 1963 mit Max Bächer als Oberbauleiter. Der 1925 in Stuttgart geborene Architekt und Hochschullehrer setzte das Gesamtkonzept aus 65 Bungalows und 26 Reihenhäusern um – unter Einhaltung einer planerischen Ordnung und einer einheitlichen Struktur. Trotz der angestrebten Einheitlichkeit ermöglichte Bächer eine Vielfalt an individuellen Häusern.

Holzer Architekten bauten eines dieser Reihenhäuser nun behutsam um und modernisierten es. Die Vorgaben des Bebauungsplanes wie die Gestaltung der Dächer, die Dachüberstände und der Anschluss der Dachgesimse sowie die Fassadengestaltung mit horizontaler Gliederung aus Holz beachteten die Architekten – und setzten sie angemessen neu um. Glücklicherweise ist das zweigeschossige Wohnhaus mit leicht geneigtem Satteldach solide gebaut: Die Wände bestehen aus massivem Mauerwerk und die Decken aus Beton. Nur der Grundriss war etwas „verschachtelt“ und zu wenig klar gegliedert. Sowohl die Größe der Wohnung als auch das Raumprogramm wollten nicht mehr so recht zu den heutigen Vorstellungen von Wohnkomfort und Raumgestaltung passen. Weshalb die Familie mit zwei Kindern das erworbene Haus nach ihren Bedürfnissen umbauen und mit einer Einliegerwohnung erweitern ließ. Es sollte kernsaniert, modernisiert und auf den neuesten Stand der Technik gebracht werden.

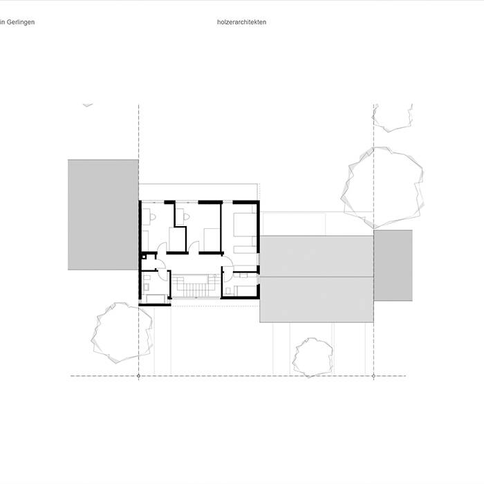
Im Obergeschoss blieb die Lage des Schlafzimmers und der Kinderzimmer erhalten, jedoch wurden die Räume vergrößert. Im Erdgeschoss wich die ehemalige Terrasse an der Westseite der gewünschten Einliegerwohnung. Dafür entstand eine neue Terrasse entlang der Südfassade des Bestandsgebäudes. Allein durch das Entfernen weniger Innenwände erzielten die Architekten grundlegende räumliche Verbesserungen: Aus den für die 1960er-Jahre typisch kleinteiligen, separaten Räume wurde ein fließender, offener Wohn-, Ess- und Kochbereich, in dem das tägliche Familienleben spielt. Das charmante und erhaltenswerte Treppenhaus wurde behutsam saniert. Schrankeinbauten nach Maß schaffen jede Menge Stauraum und unterstützen durch die ruhige Optik der weißen Flächen die gewünschte großzügige Wirkung der Räume. Ein Fenster mit tiefer Laibung dient in Holz gerahmt und indirekt belichtet als Sitzbereich mit Aussicht in den Garten und auch als Dekorationsbereich für schöne Dinge. Dank des KfW-Zuschusses für erhaltenswerte Bausubstanz konnte die Stärke der Fassadendämmung so angepasst werden, dass die im Bebauungsplan angegebenen typischen Wand- und Dachversprünge erhalten blieben.

www.holzerarchitekten.de

Fotos:

Zooey Braun
www.zooeybraun.de

(Erschienen in CUBE Stuttgart 04|21)

Architekten:

holzerarchitekten
www.holzerarchitekten.de

Fassade:

Maler Rücker
www.maler-ruecker.de

Heizung und Sanitär:

BPS Bucher
www.bps-bucher.de

Lichtplaner:

candela lighting design
www.candela.de

Leuchten:

Mawa
www.mawa-design.de

Innenausbau/Innentüren:

Schreinerei Kopf
www.kopf.de

Fenster:

Leopold Fensterbau
www.leopold-fensterbau.de

Parkett:

Holz Waidelich
www.holzboeden.com

Küche:

Koch Küchen
www.koch-kuechen.de
Leicht Küchen
www.leicht.com/de

Armaturen:

Dornbracht
www.dornbracht.com

Sanitärausstattung:

Laufen
www.de.laufen.com

Nothing found.

Individualität im System

Grundschule verbindet Planungs- und Fertigungseffizienz mit zeitgemäßer Gestaltung

Harmonie mit Liebe zum Detail

Farbkonzepte und Kunstobjekte für ansprechende Praxisräume in Moabit

Wohnraum durch Wandel

Verblüffende Metamorphose – vom „Diskreten Haus“ zum mehrgeschossigen Wohnhaus

Nachhaltig mit Konsequenz

Ein Klimaunternehmen setzt auf Flexibilität und wiederverwendbare Materialien

Nothing found.

NK_23_DJI_0102_15_700pixel

Nachhaltig revitalisiert

Auf ehemaligen Gewerbeflächen im Innenstadtbereich entstand Bauland

sontho-architekten_T17_nachher-Aussen_2_15_700pixel

Bestandspotenzial genutzt

Eine unscheinbare Scheune wandelt sich zum ungewöhnlichen Zuhause auf mehreren Ebenen

PH_0067-17_RGB_15_700pixel

Alt und Neu klar erkennbar

Kleinteiliger Bestandsgrundriss wandelt sich zu fließenden und offenen Wohnräumen

1_DSC7952_15_700pixel

Sehnsuchtsorte zu Hause

Umbau eines Werkstattgebäudes zum Wellnesshaus mit Schwimmteich im großen Garten

StudioScalici_Fullmoon_MarcGilardone_1_19_700pixel

Flexibel, vernetzt und aktiv

Kleinteilige 90er-Jahre Büroarchitektur wird zum modernen und offenen Großraumoffice

studiocrossscale_jugendstil_wohnzimmer_15_700pixel

Spannungsbogen

Sanierte Jugendstilwohnung verbindet historische und moderne Elemente zu einer neuen Raumqualität

Überzeugendes Ensemble

Markanter Neubau fasst Funktionsbereiche zusammen und ergänzt die historische Kirche

Im besten Sinne einfach

Schmales dreigeschossiges Wohnhaus mit Dachgarten baut auf flexibel nutzbare Familienräume