Aus eins mach vier
Ein Wohnhaus zeichnet sich durch seine ungewöhnliche Komposition und Raumvielfalt aus
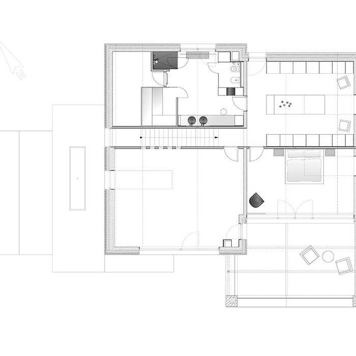
Ein kleines weißes Stück Papier, darauf eine rote Skizze – das war der erste Schritt für einen großen Gedanken. „Sie dürfen!“ lautete die Antwort der Bauherren auf die Frage, ob sich die Planer über die erste Ideenskizze hinaus weitere Gedanken machen können. Das Team des Kölner Büros hell und freundlich für Architektur und Innenarchitektur staunte nicht schlecht, als ihnen die Entwurfsplanung für das Wohnhaus übertragen wurde: Der vorgeschlagene Entwurf wich nämlich tatsächlich enorm von dem Flachbau ab, den die Bauherren usprünglich wünschten. Ausgangspunkt für den Entwurfsgedanken des Architekturbüros war dabei das großzügige, parkähnliche Grundstück, das erst im hinteren Bereich das eigentliche Baufeld vorsah. Umso wichtiger erschien es, das Gebäude in seiner Kubatur nicht zu homogen und dominant erscheinen zu lassen. Ein aus mehreren unterschiedlich dimensionierten, heterogenen Baukörpern zusammengesetztes Gebäudeensemble schien der Situation angemessener zu sein und zu einem optisch besseren Ergebnis zu führen. Dieser Gedanke wurde schließlich durch unterschiedliche, und doch aufeinander abgestimmte Fassadenmaterialien gestalterisch verstärkt: Der Wechsel zwischen der dunklen Holzfassade und der hellen Klinkerfassade unterstützt und verstärkt diesen besonderen Charakter der Architektur. Der Grundriss ist so gestaltet, dass vier ein- bis dreigeschossige Kuben leicht gegeneinander versetzt angeordnet sind. Je nach Breite des Baukörpers ergeben die Satteldächer, die graduell unterschiedlich geneigt sind, die Grundfläche des Wohnhauses. Die über 450 m² Wohnfläche auf drei Etagen werden so auf den ersten Blick nicht erahnt – sie erschließen sich erst nach und nach während des Betretens des Hauses. Das Interieur wird durch einen starken Farb- und Material-Mix geprägt, um ein gemütliches Ambiente zu erreichen und der Familie ein komfortables und behagliches Zuhause zu schaffen. Besonders wichtig war es dabei den Bauherren, dass weder reinweiße noch glänzende Oberflächen und Materialien verwendet werden. Ausgefallene Tapeten, Stoffe, individuelle Einbauten und auch die gestalterische Beleuchtung machen jeden Raum zu einem besonderen Highlight. Dreh- und Angelpunkt des Familienalltags ist der große offene Wohn-Essbereich. Im Winter lädt er ein, gemütlich vor dem knisternden Kamin zu sitzen. Im Sommer werden die großen Schiebetüren geöffnet und das Leben verlagert sich in den großzügigen, parkartigen Garten. Zwischenzeitlich bekamen die Architekt:innen eine „Dankeschön-Karte“: „Eigensinnig und anpassungsfähig“, „beruhigend und anregend“, „fühlt sich gut an“ war darauf notiert – Indizien dafür, dass der „große Gedanke“ letztlich auch ein guter war.
Wohnfläche: 450 m²
Grundstücksgröße: 1.220 m²
Bauzeit: 18 Monate
Bauweise: Massiv
Fotos:
Hanna Witte
www.hanna-witte.de
(Erschienen in CUBE Köln Bonn 01|23)
