Recyceltes Glas als Fassade

Institutsneubau vereint Büros, Labore und Technikum in kompakter, dynamischer Form

EP04211-0015_1_15_700pixel

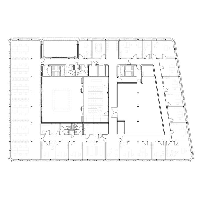
Der viergeschossige Neubau des Fraunhofer-Instituts für Produktionstechnik und Automatisierung IPA der Fraunhofer-Gesellschaft ist Teil des Universitätscampus Stuttgart-Vaihingen. Westlich des ca. 4.000 m² großen Grundstücks grenzt das Technologiezentrum der Universität Stuttgart, im Osten an die Parkplätze der Hochschule für Medien. Als erster Neubau des Technologie- und Innovationscampus S-TEC im zentralen Bereich des neuen Birkhof-Areals folgt die Bauform der Straße und der Geometrie des Platzes. Dessen Treppen entwickeln sich bis in das repräsentative Foyer hinein. Auf diese Weise öffnet sich das Haus und das Innere verzahnt sich in einladender Geste mit dem städtischen Außenraum.

Die fließenden, horizontalen Linien der Fassade vermitteln Dynamik und Leichtigkeit. Nicht nur nachhaltig, sondern auch passend zur Forschungstätigkeit des Instituts ist die Fassade aus recyceltem Glas von Abfällen der Solarzellenproduktion gefertigt. Fensterbänder in unterschiedlichen Höhen und Breiten ziehen sich um das Gebäude. Jedes Element besteht aus Öffnungsflügeln und Festverglasung mit außenliegendem Sonnen- sowie innenliegendem Blendschutz. Das Erdgeschoss ist bodentief verglast. Durch die kompakte Struktur des Gebäudes sind die Wege zwischen den Bereichen kurz und kommunikationsfördernd.

Funktional gliedert sich der Neubau in zwei Bereiche: den Komplex mit Büros, Besprechungsräumen sowie Laboren und das Technikum mit Flächen für die Technik, Infrastruktur und Labore sowie Lager und Nebennutzungen. Der Bürokomplex orientiert sich zum Campusplatz und ist auf drei Geschossen dem Technikum vorgelagert. Im 3. Obergeschoss schiebt er sich über das Technikum und bildet mit dem innenliegenden Dachgarten und der zum Platz orientierten Dachterrasse attraktive Büro- und Seminarflächen. Im Technikum befindet sich eine knapp 11,5 m hohe Werkhalle mit vorgelagerter eingeschossiger Kalthalle bzw. Anlieferung. Die dreigeschossige Werkhalle gliedert sich in verschiedene Technologiebereiche, in denen unterschiedliche Werkstoffe bearbeitet werden – ergänzt durch einen Werkstatt- und Montagebereich im Übergang zur Kalthalle.

Zur Versorgung des Gebäudes mit Wärme dient ein umschaltbares Luft-Wasser-Wärmepumpensystem, ergänzt durch einen Gasbrennwertkessel. Die Kühlung beschränkt sich auf die Temperierung der Büroflächen mittels Bauteilaktivierung.
 
www.gewers-pudewill.com

Fotos:

HG Esch
www.hgesch.de

(Erschienen in CUBE Stuttgart 04|22)

Nothing found.

Transformation ins Heute

Wohnung im Westend wird geöffnet, aufgehellt und präzisiert

Bauernhaus reloaded

Ein Hof im Münchner Umland wurde zum Ort, der Geschichte atmet und Zukunft lebt

Freundliche Riesen

Wohnanlage mit viel Grün als Abschluss des Siedlungsprojekts „Stadtgut Hellersdorf“

Nothing found.

Blühendes „Gartenhaus“

Architektur, Innenarchitektur und Marke vereinen sich ganzheitlich in einem Design und Boutique Hotel

2_dasch-zu-rn-partner_Veranstaltungshalle-Kuppenheim_Aussenansicht-bei-Nacht_15_700pixel

Schatztruhe

Veranstaltungshalle mit spannungsvollem Kontrast zwischen innen und außen

Im besten Sinne einfach

Split-Level-Haus auf geneigtem Grundstück mit geschickt geschaffener Privatheit im Garten

mgf_o-kogeno-furtwangen_05_15_700pixel

Nachbarschaft (er-)leben

Inklusives Wohnprojekt mit Café, vielfältigen Wohnangeboten, Dachterrasse und einer grünen Mitte

HausHTIFF_0009_56_700pixel

Ausdrucksstarkes Weiß

Auf einem Plateau schmiegt sich ein schmaler Gebäuderiegel an einen steilen Hang

Biodivers und hitzeresistent

Der Neubau der Calwer Passage besticht durch sein innovatives Grünkonzept

BueroVFinal_0008_19_700pixel

Für sich & gemeinsam

Halboffene Struktur verbindet zwei durch ein Treppenhaus getrennte Büroflächen

Passgenau

Auf das Wesentliche reduziert, erweist sich dieses Haus als Maßanzug für seine Bewohner:innen