Auffrischungsarchitektur
Neuer barrierefreier Zugang für eine Behörde
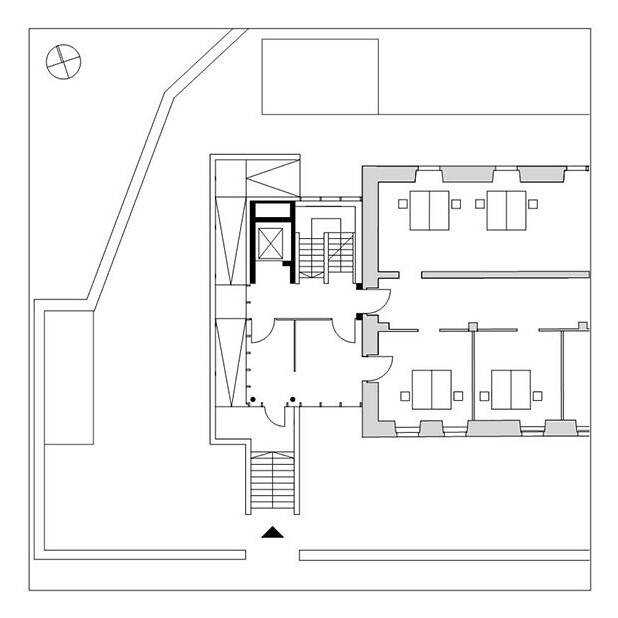
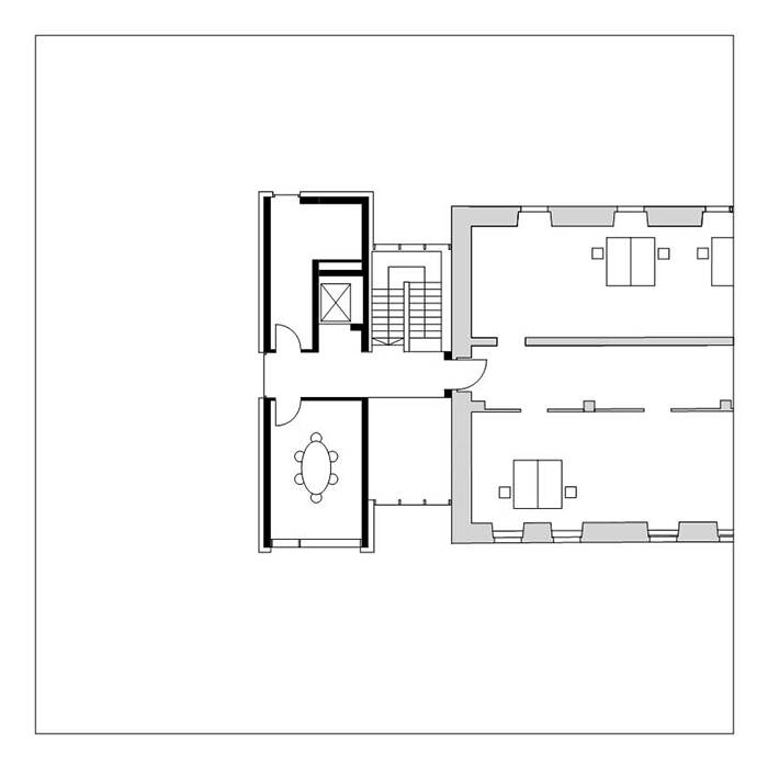
Das Grundbuchamt in Gemünden am Main benötigte dringend einen barrierefreien Zugang zum Bestandsgebäude, das schon in den Nachkriegsjahren entstanden war. Das Staatliche Bauamt Würzburg als Bauherr und Projektleiter entschied sich für den Entwurf des Münchner Architekturbüros Betz, dessen Entwurf eines modernen und ungewöhnlichen Anbaus alle Beteiligten überzeugte. Der Neubau beinhaltet verschiedene Funktionen und passt sich gut in die Umgebung mit dem nahegelegenen Bahngelände ein. Im Innenhof des Altbaus wurde auf dem 2.000 m² großen Grundstück ein Parkplatz angelegt, von dem aus man nun über eine Rampe zum Haupteingang gelangen kann. Von der Straßenseite aus führt eine Treppe zum Eingang. Am Ende der Treppe trifft der Besucher auf einen gläsernen Würfel, der den Blick auf die Innentreppe und den Aufzug freigibt. Die Wahl fiel auf das Material Glas, um für den Publikumsverkehr Transparenz und Offenheit zu erzeugen. Auf der Rückseite ist ein schmaler Sockel, auf dem ein größerer Block aus Stahlbeton thront. Durch diese neue Eingangssituation ist das Bestandsgebäude im Erdgeschoss und im 1. Obergeschoss ebenengleich an das Eingangsbauwerk angeschlossen. Ankommende Besucher erreichen über die vom auskragenden Obergeschoss allseitig witterungsgeschützte Rampe vom Parkplatz oder über die Freitreppen den Haupteingang. Im Innern wird der Personenverkehr durch eine Eingangs- und Ausgangsschleuse geregelt. Die Zutrittskontrolle ist über eine Verbindungstür im Bestandsgebäude untergebracht, um einen Zangenzugriff zu ermöglichen. Die Glastrennwände der Schleuse wurden beschusssicher ausgeführt. In der Eingangsschleuse befindet sich ein Körperscanner und ein Untersuchungstisch für Aktentaschen und ähnliches.
Im „Kasten“, dem Obergeschoss des Neubaus, der umlaufend 1,5 m über den Sockel auskragt, befindet sich ein Besprechungsraum für acht Personen und ein kleines Büro. Mit dem Aufzug erreicht man nur das Obergeschoss; der Keller, in dem sich das Archiv befindet, ist nur über die Treppe erreichbar. Das verglaste Treppenhaus – quasi als Fuge zwischen Neubau und Bestand – hat ein ebenfalls gläsernes Satteldach, wohingegen das Obergeschoss mit einem gekiesten Flachdach abschließt.
Durch die verwendeten Konstruktionen und den Aufbau der Außenbauteile wurden die nach EnEV zulässigen Höchstwerte der Wärmedurchgangskoeffizienten deutlich unterschritten. Entsprechend niedrig ist der Heizwärmebedarf.
Fotos:
Oliver Betz
(Erschienen in CUBE Frankfurt 01|22)

