Grazil und Elegant

Eine Villa verbindet Offenheit und Privatsphäre

FUW-JMC-22b_47_700pixel

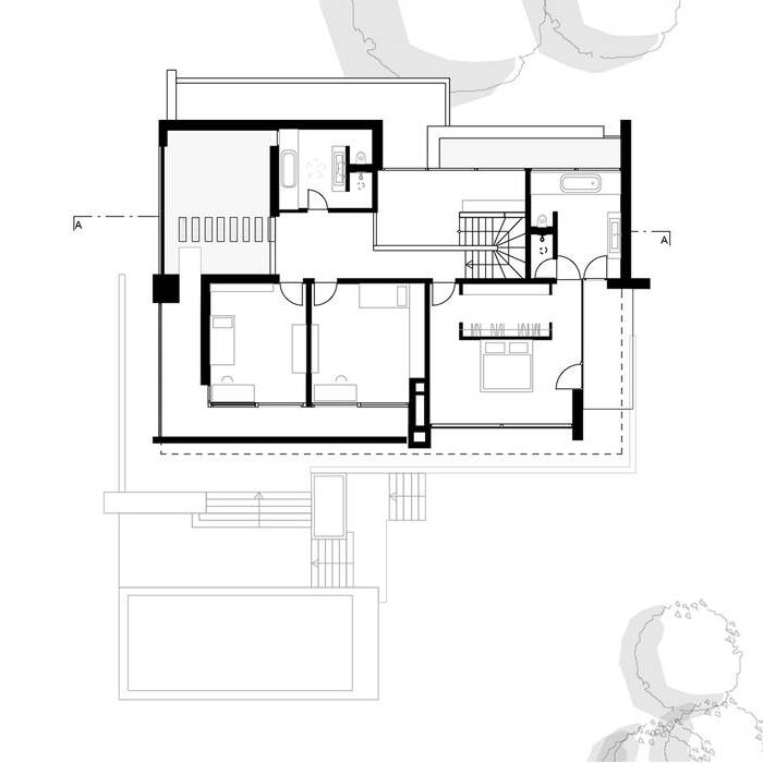
Die kubische Form der Wohnhauses springt sofort ins Auge. Schwebende Dächer betonen auch die Horizontale und der Dacheinschnitt verbindet sich mit einem Wolkenbügel, der den Baukörper harmonisch und grazil aussehen lässt. Dank dieser Lösung präsentiert sich die Villa von jeder Seite aus wie ein zweigeschossiger und eleganter Baukörper, obwohl nur dreiviertel der darunterliegenden Fläche als Wohnraum dienen, denn die obere Etage durfte aus baurechtlichen Gründen kein Vollgeschoss werden. Und während die zur Straße gelegene Seite verschlossen ist und vor Blicken schützt, öffnet sich das Haus zum Garten hin. Nicht nur raumhohe Fenster gewähren aus dem Inneren einen Blick ins Grün, auch überdachte Terrassen und Balkone schenken Raum für Aufenthaltsmöglichkeiten im Freien.

Aus Budgetgründen fiel die Wahl auf weißen Putz, der an wenigen Stellen durch ein weiteres Material ergänzt wird, wie beispielsweise an der Garage. Doch das Weiß steht der Villa und ihren klaren, schnörkellosen Formen und Linien gut: Sie deutet von außen an, was sich im Inneren fortsetzen wird: Klarheit ohne Strenge, Großzügigkeit ohne Platzverschwendung sowie Offenheit und Privatsphäre. Und sie ist das, was sich der Auftraggeber vom Stuttgarter Architekturbüro wünschte: ein Zuhause für eine Familie, das innerhalb eines realistischen Budgets entstand. Eine großzügige Eingangshalle empfängt die Besucher:innen wenn sie die Villa durch die Haustür als auch durch die Garage betreten. Das Ziel war es, eine offene Atmosphäre zu schaffen, die nicht ausgrenzt und dennoch Rückzugsmöglichkeiten und Privatheit schenkt. Hierfür haben die Architekten eine entsprechende Raumdramaturgie geplant: Die lichtdurchfluteten Wohnräume und die Familienküche sind zur Terrasse hin vollkommen offen und beziehen den Garten mit ein. Auf diese Weise vergrößert sich der Raum nach draußen. Dieser erweitert sich im Sommer, wenn die Terasse zu einem großen Wohnbereich wird. Alle Schlafräume befinden sich im Obergeschoss, ebenso eine weitere Terrasse, die Privatsphäre bietet und für alle Familienmitglieder von der Galerie aus zugänglich ist. Durch die geschickte Ausnutzung der Topografie entstand ein Hof, der die angrenzenden Räume belichtet. Er ist über ein halbes Geschoss mit der Poolebene verbunden, die wiederum eine halbe Etage versetzt zur Terrasse vor der Wohnebene liegt. Im Untergeschoss schließlich liegen Arbeitszimmer, Gästezimmer und der Fitnessraum.

Von der Terrasse aus erreicht man nach wenigen Stufen den etwas tiefergelegenen Pool. Von hier aus hat man nicht nur einen schönen Blick in die Natur, sondern der Standort spiegelt auch das geschickte Konzept von Offenheit und Nutzungsabgrenzung wider: So können beispielsweise die Kinder den Pool genießen, während die Eltern die Terrasse nutzen. Alle können auf diese Weise ungestört voneinander Spaß haben und sich dennoch im selben Garten befinden.

www.fuchswacker.de

Wohnfläche: 385 m² + 90 m²
Grundstücksgröße: 1.137 m²
Bauzeit: 16 Monate
Bauweise: Massiv
Energiekonzept: Solathermie + Gas

Fotos:

Johannes Vogt
www.johannesvogt.de

(Erschienen in CUBE Frankfurt 03|23)

Architektur:

Fuchs Wacker Architekten
www.fuchswacker.de

Leuchten:

Delta Light
www.deltalight.de

Fenster:

Schüco
www.schueco.com/de

Schreinerei:

Kimmerle
www.schreinerei-kimmerle.de

Schalter, KNX-Gebäudeautomation:

Gira
www.gira.de

Armaturen:

Dornbracht
www.dornbracht.com

Nothing found.

Ort der Begegnung

Das neue Pfarrheim Mariä Himmelfahrt in Miesbach prägt ein Kontrast aus Modernität und Tradition

Preziose unterm Dach

Ein Spitzboden in einem Mehrfamilienhaus in Essen-Rüttenscheid wird zum Vorzeigeprojekt

Vergangenheit & Zukunft

Modellprojekt zeigt, wie sakrale Bestandsarchitektur transformiert werden kann

Nothing found.

HDS-Ebener-3510-1_19_700pixel

Lern- und Lebensraum

Roter Schulneubau nutzt Topografie geschickt aus und schafft neue Flächen

plattgold_sleeves_15_700pixel

Kreative Impulse

Beim Entwurf und bei der Planung seiner Produkte, die immer Auftragsarbeiten sind, berücksichtigt er nicht nur die Bedürfnisse der jeweiligen Nutzer,…

Greener-Than-Grass-Felt-Acoustic-Wallpanel-Press-Illu-Stration-by-Mary-Ann-Williams-002-_10_700pixel

Verspielter Minimalismus

Mary-Ann Williams designt Akustikelemente, Leuchten und Wohnaccessoires

Resonanzräume

Transformation eines Gebäudes macht die industrielle Vergangenheit erlebbar

Austausch & Vielfalt

Modernes Arbeitsumfeld zwischen Gemeinschaft, Architektur und Alltag in Offenbach

Oase-der-Ruhe-Bild-1-Header-_19_700pixel

Oase der Ruhe

Gartengestaltung schafft ein Erlebnis fürs Auge und einen neuen Lieblingsplatz

Offenheit als Haltung

Kita mit Familienzentrum gibt architektonische Antwort auf pädagogische Vision  

MundS_BV-RS_29_700pixel

Viel Luft im Innern

Ein Haus überrascht mit Einschnitten in seinem Kern