Architektonischer Gipfelsturm

Das ansteigende Gelände bedingt unterschiedliche Höhen des Mehrfamilienwohnhauses – mal drei‑, mal viergeschossig und verspringende Dächer.

01-Ansicht-West-Eingang-3-Lieblingsfotos-dv-besonders-wichtig_15_700pixel

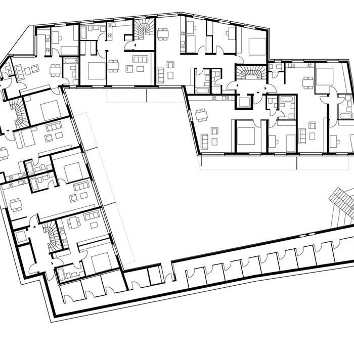
Der 50 m hohe Dachauer Schloßberg, den schon im Mittelalter die Pferdefuhrwerke erklommen, wo später dann die Schloßbergbrauerei ihre Fässer bergauf-bergab transportierte und wo die Wittelsbacher ihre Sommerresidenz auf dem Berggipfel errichteten – dort oben am steilen Hang erbauten dv architekten aus Dachau ein Mehrfamilienwohnhaus für Sedlmayr Grund und Immobilien aus München. Durch den Abriss der Abfüllanlage der Bierbrauerei war das Grundstück frei geworden. Es entstanden in zweijähriger Planungs- und Bauzeit 28 Wohnungen am Steilhang. Durch die Niveauunterschiede des Geländes verschieben sich auch die Höhen der einzelnen Hausteile und der Dächer. Das ziegelgedeckte Dach ist eine auf- und abspringende Dachlandschaft aus gefalteten Dächern.

Am untersten Punkt des Gebäudes befindet sich die Einfahrt in die Tiefgarage und der erste Hauseingang. Die Eingänge zwei, drei und vier folgen, je weiter man der Straße den Hang hinauf folgt. Insgesamt sind es ca. 8 m Höhenunterschied zwischen Zufahrt zur Tiefgarage und dem obersten Hauseingang. Fast oben angelangt, geht die Klosterstraße in die Schloßstraße über, macht eine Kehre, die das Gebäude mitvollzieht, immer noch weiter leicht ansteigend. Wenn man so will, „umarmt“ das Haus den Berg und zeigt nach dem Straßenknick auch seine Rückseite – einen kleinen Garten und eine mit Balkonen bestückte Fassade gen Westen. Das ansteigende Gelände bedingt unterschiedliche Höhen des Gebäudes – mal drei‑, mal viergeschossig und verspringende Dächer. Die Geschosse gehen zwar durch, beginnen aber erst dort, wo das Haus nicht mehr zu tief im Berg steckt. Es gibt also keine Regelgeschosse. Aus dieser ungewöhnlichen Kubatur resultieren auch völlig verschiedene Grundrisse und Größen der einzelnen Wohnungen von einem bis zu fünf Zimmern. Wo möglich, versuchten die Architekten „durchgesteckte“ Grundrisse zu ermöglichen, mit Fensterfronten an der Ost- und an der Westseite. Fast jede Wohnung verfügt über einen Balkon nach Süden bzw. Osten hin und es gibt eine große doppelgeschossige Dachwohnung mit einer eingeschnittenen Dachterrasse. Nach Osten hat man einen schönen Blick über die Dächer der Altstadt und auf die Kirche. Das Gebäude wird durch vier Treppenhäuser erschlossen, drei davon verfügen auch über einen Aufzug.

Architektonisch eine Meisterleistung, die man wohl unter „Bauen am Steilhang“ einordnen muss – zumal sich der Baukörper ja zudem in die heterogene Altbausubstanz der Umgebung einfügen muss. Das Gebäude ist, wo es die Statik erforderlich macht, ein Stahlbetonbau, der Rest ist Ziegelmauerwerk mit dem üblichen Wärmedämmverbundsystem und weißem Glattputz. Energielieferant sind die Stadtwerke mit einem Blockheizkraftwerk, das im Untergeschoss platziert ist.

www.dv-arc.de

(Erschienen in CUBE München 01|20)

Architekten:

dv architekten
www.dv-arc.de

Aufzug:

Butz & Neumair
www.butz-neumair.de

Schreinerarbeiten (Fenster, Innentüren):

Huber & Sohn
www.huber-sohn.de

Zimmerer:

Theobald Lachner Holzbau
www.lachner-holzbau.de

Sanitär:

Konrad Unsin
www.unsin.de

Spengler:

Giacalone
www.giacalone.de

Elektro:

Sendlinger Elektroanlagen Greil
www.seag-gmbh.de

Parkettarbeiten:

AAF Geretshauser
www.geretshauser.de

Fliesen und Naturstein:

Fliesen Abel Natursteine
www.fliesen-abel.de

Stahlinnentüren, Garagentor:

Alfred Erntl Türen + Tore
www.erntl-tueren.de

Maler:

Reinhold Knoll
www.reinhold-knoll.de

Innentüren:

Parkett-Mahl
www.parkett-mahl.de

Balkonbelag:

Ackermann Handels GmbH
www.ackermann-handel.de

Stahltreppen innen:

Stadler Treppen
www.stadler.de

Markiesen:

Günther Sandl
www.sandl.de

Nothing found.

Nachhaltig & zeitgemäss

Wohnungsbau verbindet Alt und Neu sowie Wirtschaftlichkeit und eine attraktive Gestaltung

Neu nach Strich und Faden

Industriedenkmal transformiert zum Gewerbe- und Bürostandort

Atmosphärisch ein Traumhaus

Attraktiv, gesund und nachhaltig – ein Haus, das all diese Kriterien erfüllt

Arbeiten unterm Tankstellendach

Identitätsstiftende Work Spaces mit Fokus auf Funktionalität und New-Work-Ansätze

Nothing found.

_SRF0021_15_700pixel

Das weiße Haus

Neubau eines Wohnhauses mit 14 Wohnungen in Puchheim

i-munck_fuchsbau_7101_19_700pixelV364uZ7KxUAqr

Betonpyramide auf drei Beinen

Fachgerechte Restaurierung des denkmalgeschützten Fuchsbaus

Gemeinsam statt einsam

Zukunftsweisendes Wohnprojekt mit dem Prädikat „KlimaKulturKompetenz”

2021_03_Leonine_Neue-Siederei_-C-Laura-Thiesbrummel-0253_15_700pixel

Im Schmelztiegel

Neue Arbeitswelten für eine Münchner Mediengruppe

lank038_15_700pixel

Lichtes Refugium

Eine Doppelhaushälfte wird von ihrem 80er-Jahre-Flair befreit

Gastronomie-Bayern-LB-C-Ducke_5_15_700pixel

Die neue „Bankwirtschaft“

Das Casino der Bayern LB erfährt eine komplette Transformation

PRINT_02_SH18_2023-02-15_Jonathan-Sage_15_700pixel

Aufgeräumtes Ergebnis

Ein Einfamilienhaus aus dem Jahre 1960 wurde in die Neuzeit transformiert

MatteoThun-C-Nacho-Alegre-col_15_700pixel

Seelisches Wellbeing durch Design

CUBE sprach mit Matteo Thun über das Mailand von früher und heute sowie über das Design als Therapie