Irrgarten entwirrt

Die Galerie fungiert als Erschließungs- und zentrales Eingangsgebäude und verbindet zusammen mit der Archäologischen Promenade vier von fünf Museen auf dem Museumsareal.

444_10_SM_190828_15_700pixel

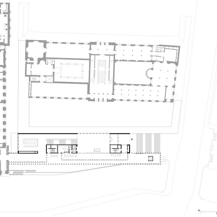
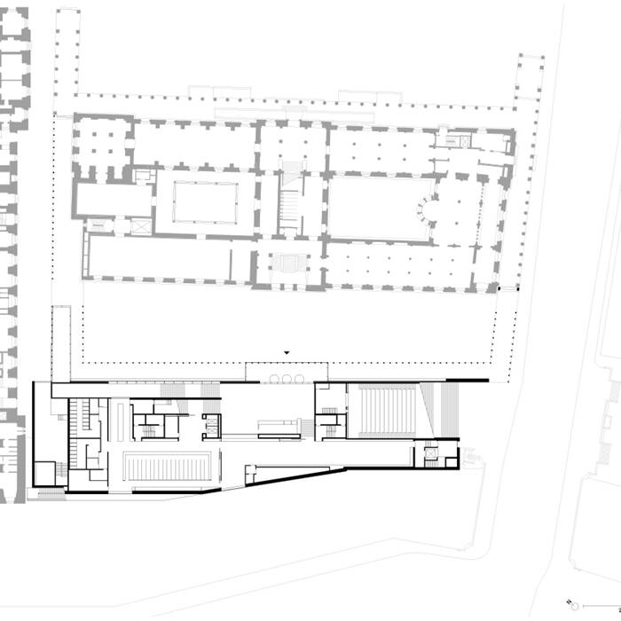
Die 2019 feierlich eröffnete James-Simon-Galerie ist einer der wesentlichsten Bestandteile des Masterplans Museumsinsel, der 1999 beschlossen wurde. Namensgeber für das Gebäude ist der bedeutende Mäzen James Simon, der u. a. dem Ägyptischen Museum die Büste der Nofretete schenkte. Die Galerie fungiert als Erschließungs- und zentrales Eingangsgebäude und verbindet zusammen mit der Archäologischen Promenade vier von fünf Museen auf dem Museumsareal. Das Büro des britischen Architekten David Chipperfield erhielt den Auftrag zum Bau, obwohl dessen Entwurf beim eingeladenen Wettbewerb zunächst nur den Platz 2 hinter Giorgio Grassi belegte. Nach einigen Überarbeitungen überzeugte Chipperfiels Konzept dann doch mehr. Ausgangspunkt des Masterplans war, die aus unterschiedlichen Epochen stammenden und von unterschiedlichen Baumeistern geplanten, unzusammenhängenden Solitäre zu verbinden und durch einen zentralen Zugang quasi zu bündeln und leichter erschließbar zu machen. Dieser Prozess wird allerdings erst abgeschlossen sein, wenn die sogenannte Archäologische Promenade – ein im Sockelbereich verlaufender, durchgehender Verbindungsgang, beginnend beim Alten Museum und endend im Bode-Museum – fertiggestellt sein wird. Der Standort der James-Simon-Galerie gegenüber des Neuen Museums im Osten und entlang des Kupfergrabens im Westen empfängt die Besucher mit einer breiten Freitreppe zum Lustgarten im Süden der Museumsinsel. Sie steht auf dem Grundstück des ehemaligen Neuen Packhofs von Karl Friedrich Schinkel, dessen Reste abgebrochen wurden, da sich das Gebäude auch bereits merklich abgesenkt hatte. Der Baugrund an dieser Stelle setzte höchste technische Anforderungen voraus. Da tragfähiger Baugrund teilweise erst in 40 m Tiefe zu erreichen ist, waren aufwendige Bohrungen und Stabilisierungsmaßnahmen erforderlich. Die Gebäudehülle besteht aus Betonwerkstein mit einem Zuschlag aus weißem Lengefelder Marmorschotter, die Innenräume sind aus poliertem Ortbeton. Die Galerie ist in fünf Ebenen untergliedert: Ein nicht öffentlich zugängliches Untergeschoss mit Technik- und Depoträumen. Auf Ebene 0 befindet sich ein Saal für Wechselausstellungen und von hier aus führt ein Verbindungsgang zum Neuen Museum und der Archäologischen Promenade. Die Ebene 1 besteht aus einem Foyer und einem Auditorium auf der Eingangsseite, das sich zum Teil unter der Freitreppe erstreckt. Im darüberliegenden Mezzaningeschoss sind ein weiteres Foyer, ein Museumsshop, die Garderobe und die Sanitäranlagen untergebracht. Ebene 2 ist schließlich das Hauptgeschoss mit einem Foyer, einer Terrasse, einem Restaurant/Café und dem Eingang zum Pergamonmuseum.

www.davidchipperfield.com

Fotos:

Simon Menges
www.simonmenges.com
Ute Zscharnt
www.gutegestaltung.de

(Erschienen in CUBE Berlin 03|20)

Nothing found.

Großzügige Wohnhalle

Ein Wohnhaus in Holzbauweise kombiniert weitläufige Ausblicke mit ausgeprägten Deckenhöhen

In den Garten fließend

Ein Einfamilienhaus besticht durch seinen großzügigen Wohnbereich

Ins Bewusstsein gerückt

Der skulpturale Empfangspavillon ist weithin sichtbar und leicht zu finden

Leben auf der Halbinsel

Neubau in nachhaltiger Bauweise denkt Gemeinschaft neu

Nothing found.

01-ST54-Mireille-Moga_19_700pixel

Glückstreffer

Aus einer ehemaligen Drogerie wird ein Architekturbüro

Recyceltes Industriedenkmal

Teile der einstigen Osram-Höfe werden zum Wohn- und Geschäftshaus

Kreativ-Carré

Ein Industrieareal wird ergänzt und ins Heute geholt

BRING-BERLIN-HOME-dining-scene-with-PROPELLER-lampshade_15_700pixel

Mathematik und Natur

Fundamental Berlin entwirft Möbel, Leuchten und Keramikserien.

8_TVA_6460_Griebnitzsee_DSC_2156_c_Ilya_Ivanov_15_700pixel

Abgerundet und fächerförmig

Wohnhaus mit luxuriöser Ausstattung am See und in Großstadtnähe

Wilmina-Hotelhof-Fassade_PP-1910-20_-C-Wilmina_pp_19_700pixel

Im Kittchen sind noch Zimmer frei

Ein Gefängnis verwandelt sich in ein Hotel – und ein Gericht wird zum Kunst- und Kulturraum

01-bki_Helix-Hub_Foto-Joachim-Grothus_15_700pixel

Der Zweck bestimmt die Mittel

Beim Innenausbau des achtgeschossigen Bürobaus stand der Netzwerkgedanke im Vordergrund.