Altbaucharme trifft Modernität

Durchdachte Farb- und Oberflächenkonzepte harmonieren mit der Gründerzeit

DANS_HausJ-Wohnen_15_700pixel

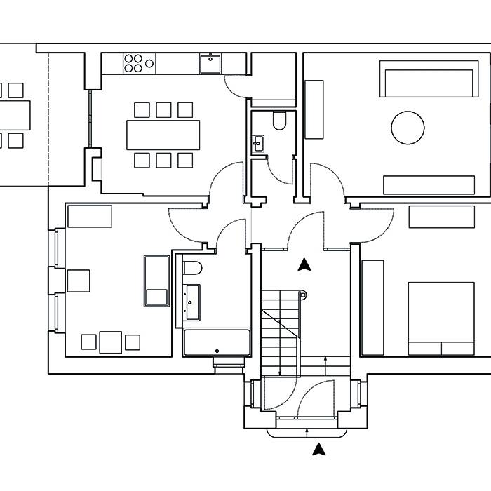
Zentral, in Innenstadtnähe gelegen, befindet sich das Mehrfamilienhaus aus dem Jahr 1905 in Dortmund-Körne. Von den drei Wohneinheiten, die sich im Altbau aus der Gründerzeit befinden, wurde das ca. 85 m² große Erdgeschoss für eine dreiköpfige Familie saniert und umgebaut. Das Dortmunder Büro Dans Architektur widmete sich der Innenarchitektur des Endhauses in einer Reihe von weiteren Mehrfamilienhäusern aus dieser Zeit. Ein Vorgarten sowie ein großzügiger rückwärtiger Garten umrahmen das Gebäude.

Um den vorhandenen Raum bestmöglich zu nutzen, sieht der erste Bauabschnitt eine Verbesserung der Grundrisssituation in der Erdgeschosswohnung vor. Die Wünsche der Bauherren nach einem Tageslichtbad, einer Garderobe und einem Abstellraum für die Küche, konnten durch einen Tausch der beiden Bäder umgesetzt werden. Das zuvor schlauchartig ausgerichtete Bad wurde unterteilt in ein innen liegendes Gäste-WC sowie einem Abstellraum, der von der Küche aus zu betreten ist. Positioniert an der Außenwand des Endhauses befindet sich nun das großzügig gestaltete Bad der Familie.

In 16 Wochen Bauzeit arbeitete das Dortmunder Architekturbüro den Charakter des Altbaus heraus und befreite Böden, Wände und Türen von der Patina vergangener Zeit. Vorhandene Fliesen im Flur wurden gesäubert und alle Dielenböden in der Wohnung aufwendig aufbereitet und hell versiegelt, um den Charme des Altbaus sichtbar zu machen und möglichst viel von der alten Substanz erhalten zu lassen. Passend zu den aufbereiteten Böden wählt der Architekt in Zusammenarbeit mit den Bauherren die Wandfliesen für beide Bäder aus: Glänzende Metrofliesen in Kombination mit grauen, matt wirkenden Zementfliesen vervollständigen die Komposition zwischen alt und neu. Auch die Wandfarbgestaltung in einem gleichmäßigen, zarten Grauton in Küche, Wohnbereich und Kinderzimmer unterstreicht das dezente Farbkonzept für die Wohnung im Erdgeschoss.

Durch den Erhalt der typischen Sockelleiste der Gründerzeit gestaltet sich ein sanfter Übergang von Bestandsboden zu moderner Wandfarbe. Ein ebenso breiter weißer Streifen an der Wand spiegelt den Übergang zugleich im Deckenbereich wider. Auch die bestehenden Heizkörper und hellen Fensterbänke aus glänzendem Naturstein konnten durch eine gründliche Säuberung und einzelne Ausbesserungen erhalten bleiben und den Flair der Wohnung authentisch unterstützen. Bei neuen Einbauten und der Einrichtung galt es, diese so auszuwählen, dass sie sich dezent und wie selbstverständlich in die vorhandene Struktur einfügen und dennoch den Altbau durch Akzente modernisieren. In einem weiteren Bauabschnitt ist ein gartenseitiger Erweiterungsbau für 2020 geplant.

www.dans-architektur.de

(Erschienen in CUBE Ruhrgebiet 01|20)

Architekten:

Dans Architektur
www.dans-architektur.de

Maler:

Malermeisten Schneider
www.malermeister-schneider.gmbh

Heizung, Sanitär:

Kabisch Technische Gebäudeausrüstung
www.tga-kabisch.de

Natursteinarbeiten:

Naturstein Pereira
www.naturstein-pereira.de

Nothing found.

Lichtdurchflutete Arbeitswelt

Hocheffizientes Bürogebäude in der Maxvorstadt

Gelungene Überführung

Der Umbau eines ehemaligen Wochenendhauses begeistert die Bauherrin

Individualität im System

Grundschule verbindet Planungs- und Fertigungseffizienz mit zeitgemäßer Gestaltung

Harmonie mit Liebe zum Detail

Farbkonzepte und Kunstobjekte für ansprechende Praxisräume in Moabit

Nothing found.

RANDERSTEGL_AUSSENANSICHTEN_34_15_700pixel

Optische Brüche erwünscht

Ein verklinkertes Haus strotzt nur so vor Individualität

JL23006-1368_15_700pixel

Nach oben erweitert

Aufstockung des Rheumazentrums Ruhrgebiet in Herne

CE655-680-2_19_700pixel

In jeder Hinsicht charakterstark

Zu den wesentlichen Charakteristika des Phoenixwerks gehören u.a. die nachhaltige und ressourcenschonende Bauweise sowie die flexible Ausgestaltung,…

HILD-2_19_700pixel

Frisch herausgeputzt

Ein erhaltenswertes Gebäudeensemble wurde behutsam modernisiert

_DSF0836_15_700pixel

Perfekt ausbalanciert

Ein Einfamilienhaus erfüllt die Ansprüche an Modernität, Nachhaltigkeit und Technologie

Lernen, Natur, Gemeinschaft

Die Gestaltung der Berswordt-Europa-Grundschule in Dortmund unterstützt das pädagogische Konzept

101-Auf-dem-Rode-15-191010-100801_19_700pixel

Am liebsten die pure Natur

Ein Holzhaus in Hagen ist Ausdruck des ökologischen Bewusstseins seiner Bewohner

Gestern und heute im Dialog

Transformation macht Gründervilla zu einem Ort der Zukunft