Vergangenes ins Heute geholt

Solides Siedlungshaus transformiert ins Hier und Jetzt

Foto5_10_700pixel

Beim Näherkommen stellen sich unweigerlich nostalgische Gefühle ein. Dieses typische Siedlungshaus in Obermenzing versetzt den Betrachter unmittelbar in die 1950er-Jahre noch vor dem Wirtschaftswunder. Die Häuser damals waren uniform, wie ein Kind ein Haus zeichnet – Klötzchen mit spitzem Dach, einer Tür und kleinen Fenstern, Schornstein oben drauf – fertig. Die Bauherren erwarben dieses klassische 1950er-Jahre-Siedlungshaus mit schönem Garten in einem Wohnviertel mit ähnlicher Bebauung, aber teils auch mit Villen mit riesigen Gärten. Als sie damals am Stadtrand entstanden, dachte noch niemand über Platzmangel nach.

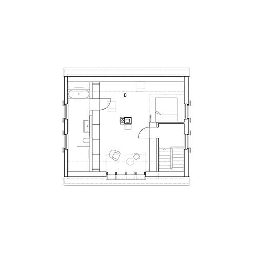
Die neuen Besitzer wünschten sich im Inneren mehr Großzügigkeit und Platz für ihre Kunst. Das Münchner Architekturbüro Andreas Ferstl mit seinem Team setzte die Veränderungswünsche um. Von außen sollte der Charakter des Hauses mit seiner Massivität, dem steilen Dach und den starken Giebelseiten erhalten bleiben. Der kleine „Schönheitsfehler“ – die asymmetrischen Fenster der Hauptfassade – irritiert ein wenig, gibt dem Haus jedoch eine sympathische Eigentümlichkeit und seine individuelle Note. Ein weiteres, unverkennbares Merkmal ist das extrem steile Dach.

Das Erdgeschoss wurde weitgehend frei geräumt und zu einem großzügigen, offenen Raum zum Wohnen, Kochen und Essen umgestaltet. Ein neues, bodentiefes Fenster öffnet den Wohnraum zum Garten. Der einheitlich im ganzen Erdgeschoss gegossene Sichtestrich unterstreicht den Zusammenhang aller Raumteile. Das Obergeschoss blieb weitgehend unverändert. Hier befinden sich die Kinderzimmer und es gibt ausreichend Platz für Gäste.

Im Dachgeschoss entfernten die Architekten eine Zwischenebene, wodurch ein unerwartet großzügiger Raum entstand: Viel Platz für Schlaf- und Badezimmer, Ankleide und einen Wohnbereich. Von dort aus blickt man durch das neue, großformatige Atelierfenster, das viel Helligkeit schafft, direkt in die Baumkronen des gegenüberliegenden Parks. Der alte Kamin blieb wie eine Skulptur frei im Raum stehen. Von außen sind wenige Veränderungen behutsam eingefügt worden: Runde Fenster im Giebel und ein neues, vor die Fassade gestelltes Fensterelement, das den Eingang markiert und die Asymmetrie der Hauptfassade fortschreibt.

www.a-f-a.de

Fotos:

Sebastian Schels
www.schels.net

(Erschienen in CUBE München 02|22)

Nothing found.

Nachhaltig und flexibel

Neubau des Schulzentrums Stockbrünnele in Böblingen vereint zwei Schulen unter einem Dach

Banking für die GenZ

Das „YouFin“ in Leverkusen bietet eine hybride Welt für Finanzberatung mit Chill-Faktor

Leben unter Eichen

Ein Anbau wird präzise in einen gewachsenen Landschaftsraum integriert

Vermittelnder Solitär

Der Neubau des Landesrechnungshofes in Oberbilk überzeugt auch durch Nachhaltigkeit

Nothing found.

Fassade als Markenbotschafter

Ein neues Entwicklungs- und Innovationszentrum in Halfing setzt einen architektonischen Meilenstein

1_15_700pixelKtCpKu4RaTGrI

Möbel, die mehr können

Ein Münchner Label schafft formschöne, funktionelle und zugleich nachhaltige Möbel

Muffs neue Wunderkammer

Ein Münchner Goldschmied und Schmuckdesigner bezieht neue Räume in der Graggenau

Kern-Architekten_Pfarrhof-N_01_Print_19_700pixel

Alt und Neu für Jung und Alt

Erneuerung eines denkmalgeschützten Pfarrhauses schafft generationsübergreifenden Treffpunkt

CozyCleo-10_19_700pixel

Mit Liebe zum Detail

Frederik Rasenberger entwickelt nachhaltige Möbel und Produkte

FCB_Erlebniswelt_1067-1077_2016_19_700pixel

Ein Platz für die Seele des Vereins

Ausgezeichnete Ausstellung zeigt die Geschichte des FC Bayern

Ride the Wave

Europas größte Surfanlage bringt authentisches Strandgefühl nach Hallbergmoos