Inspired by a Climbing Tree
Cradle-to-cradle certified timber building with gastronomy and barrier-free rental apartments
The timber building "Eckbaum" by anw architekten is part of a diverse collection of individual construction projects in a newly developed neighborhood in Kirchheim unter Teck. Its distinctive architectural form draws inspiration from a personal memory of the property owner, who recalled that a climbing tree from his childhood had once stood on this exact spot when he acquired the 196 m² plot. From that moment on, the tree became the conceptual foundation for designing the mixed-use residential and commercial building, whose sculptural facade branches out like tree limbs toward the south and west. Bathed in an intense Falun red—a color reminiscent of Sweden's famous copper mines—the facade takes on a striking, three-dimensional presence.
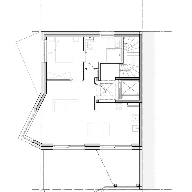
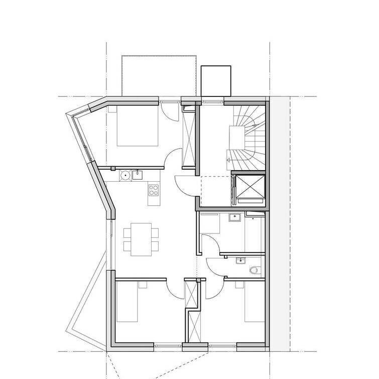
The 315 m² of residential and usable space is distributed across a gastronomic establishment on the ground floor and three residential units on the upper floors. These apartments are designed for barrier-free and age-appropriate living and are rented at rates up to 30 percent below current market prices in some cases. The bay windows offer panoramic views, while diverse outdoor spaces extend the living areas into the exterior environment. The building walls are largely constructed from a solid timber system. With its Cradle-to-Cradle Gold certification, this timber construction system fulfills the project's fundamental requirements for ecology and sustainability across its entire lifecycle: climate-neutral with a balanced CO₂ footprint, free of greenhouse gases, and fully recyclable. A ventilated, rough-sawn spruce timber cladding wraps around the building. The floor slabs and flat roof are made from timber panel elements that similarly distinguish themselves through their ecological sustainability, efficiency, and versatility. Heating is provided by a heat pump via radiant ceiling heating, supported by the existing district heating network with combined heat and power generation. Electricity is generated by an on-site photovoltaic system.
Photography:
Oliver Rieger
www.oliverrieger.com
(Published in CUBE Stuttgart 04|24)


