Campus for the Future

A new innovation hub in Europacity: welcome to the "Digital Campus"

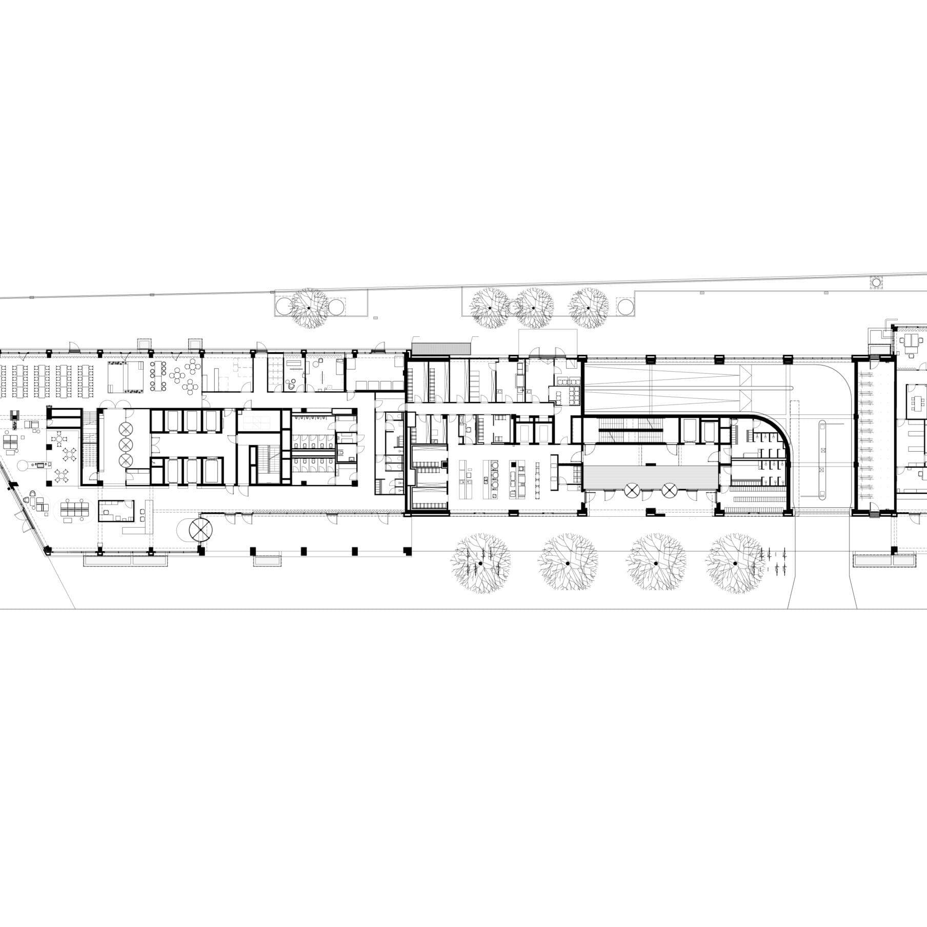
Just steps from the main railway station, Europacity continues its rapid expansion. Along Heidestraße, which runs northward, construction is in full swing, with several office and mixed-use buildings already completed. While the district aims to blend residential and commercial uses, commercial space dominates. The QH Track (Quartier Heidestraße Track) spans approximately 104,000 m² and accommodates roughly 8,500 workplaces.

The world's largest enterprise software developer has established its headquarters in a trio of adjacent buildings—numbered 9, 11, and 13. Stuttgart-based architecture and interior design firm Scope was tasked with creating the entire sophisticated interior environment. The result is an innovative design concept that mirrors the client's digital mission: the "Digital Campus." Here, approximately 1,000 employees focus on cutting-edge technologies—artificial intelligence, machine learning, and blockchain. The 29,000 m² of workspace spans 13 floors, beginning with a dramatic two-story entry hall and adjacent event space. The striking brick wall—conceived with media artist Thorsten Bauer and Intermediate Engineering—serves as a visual gateway to the concept, illustrating the seamless blend of digital and physical space. Open ceilings and exposed concrete walls reinforce the industrial aesthetic. Like contemporary workspaces everywhere, the design alternates between open collaboration zones and enclosed spaces. Micro-meeting areas carved within open-plan sections provide focused work and informal retreat spaces. A single-flight staircase descends to the thoughtfully designed café on the first floor, which similarly balances open and enclosed zones for business lunches and informal gatherings.

The IT department—the IT Link Centre—occupies the same floor, functioning as both support hub and showroom for IT equipment. Primary workspaces are distributed across floors 2–5 and 7–11, while floors 12 and 13 serve client and training functions. These upper levels feature conference rooms and break areas with sweeping views across Berlin. The building's true centerpiece is floor 6: a mezzanine housing multipurpose presentation rooms and a work café designed to foster collaboration and connection. Diverse, carefully curated furnishings enhance the quality of the space—ideal for brainstorming, idea-sharing, or simply decompressing during breaks. The 700 m² rooftop terrace completes the experience, offering a serene escape and a bird's-eye perspective of the city.

www.scopeoffice.de

Photography:
Philip Kottlorz
www.philipkottlorz.com

(Published in CUBE Berlin 03|24)

Nothing found.

Through the Years

Contemporary office building replaces 1950s residential structure

Learning Made Fun

A bright modular building delivers a Dortmund secondary school with modern, flexible learning spaces

Expansive Living Spaces

A timber-frame residence marries expansive views with generous ceiling heights.

Seamlessly flowing into the garden

A detached house that captivates with its generously proportioned living spaces.

Nothing found.

19-11-Otto-Berlin-7134_c_RobertRieger_10_700pixel

Collectors and hunters

A bold young chef's experimental kitchen opens in an award-winning architectural landmark

Rooms within rooms

Reimagining an Office: Creating an Entirely New Experience

IMAG0539_15_700pixel

Diverse garden landscape

Grasgrau and Atelier Loidl worked with the owners to develop a concept for a modern cottage garden with lots of roses and hydrangeas in the...

444_10_SM_190828_15_700pixel

Finding clarity in complexity

The gallery functions as both the primary entrance and circulation hub, linking four of the five museums alongside the Archaeological Promenade...

_VB_7109_10_700pixelHD0R29JFvv93l

Link in Prenzlauer Berg

A narrow residential building bridges two distinct urban design philosophies.

Villa Heike_Views_05_15_700px

A Heritage Building's Transformation

Villa Heike Reborn: A New Chapter for Alt-Hohenschönhausen

JOHANENLIES_VALKENBURG_OAK_Copper_1_15_700pixels

Transforming the Old into the New

The Berlin-based upcycling label Johanenlies gives construction timber a new lease of life

Passage_MarcusWend_DSC03277_15_700pixel

Retro charm

A Historic Cinema Reborn in Radiant New Life