Abgerundet und fächerförmig
Wohnhaus mit luxuriöser Ausstattung am See und in Großstadtnähe
Ein dreigeschossiges Wohnhaus am Griebnitzsee – in prominenter Lage zwischen Berlin und Potsdam – macht mit seinen eigenwilligen Formen auf sich aufmerksam. So wirken etwa die gerundeten Fensterscheiben des terrassenartigen Gebäudes als befände man sich auf einer Zeitreise in die 1950er-Jahre. Damals waren diese Rundfenster bei Tankstellen oder Pförtnerlogen zu finden, heute sind sie eine Rarität im Stadtbild. Das Grundstück in exponierter Lage am See, das sich zum Ufer aufweitet, verfügt über einen großzügigen Zugang zum Wasser. In direkter Umgebung befinden sich der Park Babelsberg mit dem gleichnamigen Schloss sowie der Schlosspark Glienicke. Der Entwurf stammt von den Architekten Tchoban Voss mit Sitz in Berlin, Hamburg und Dresden – und er ist in gewisser Weise ein Ausnahmeprojekt im Portfolio der Architekten, die eher für Großbauten mit funktionaler Strenge bekannt sind.
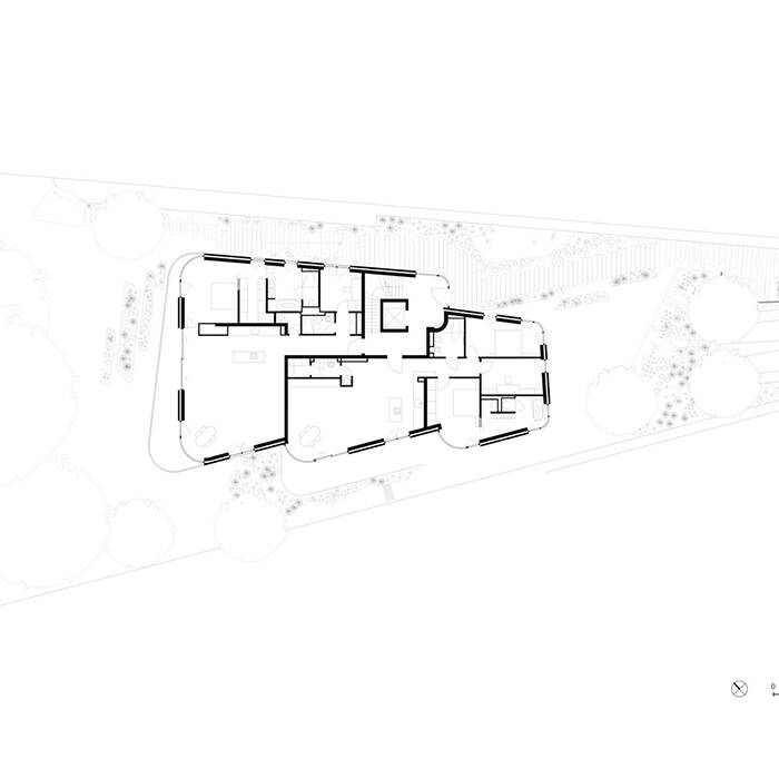
Das dreigeschossige Gebäude mit Tiefgarage orientiert sich volumetrisch an der Geometrie und der Topographie des Grundstücks mit seinem leichten Gefälle zum Wasser hin. Die schwungvollen Rundungen sorgen für die optische Gliederung des Bauwerks auf der Seeseite.
Die hinterlüftete Holzfassade aus Rhombusleisten in lasierter Thermoesche strukturiert die Fassade vertikal. Diese wird horizontal durch weiße, witterungsbeständig beschichtete Metallblechbänder unterteilt. Die ausdrucksvollen Fensterrundungen und ausladenden Balkone akzentuieren die Fassade und die Gebäudeform zusätzlich und ermöglichen großzügige Blickbeziehungen auf den Griebnitzsee. Öffenbare bodentiefe Aluminium-Blockfenster sorgen für lichtdurchflutete Innenräume. Die Balkone sind ab dem Gartengeschoss mit absturzgesicherten Glasbrüstungen versehen, deren Streifenmuster mit der vertikalen Holzfassade korrespondiert. Die Süd-, Ost- und Westfassade verfügen über einen textilen Sonnenschutz als außenliegende Markise.
Die Räume im Gartengeschoss haben einen direkten Zugang über eine Treppenanlage, während alle weiteren Wohnbereiche über den Haupteingang und das zentrale Treppenhaus erschlossen werden. Der größte Teil des Flachdachs dient als Terrasse, die restliche Fläche der intensiven Begrünung.
Fotos:
Ilya Ivanov
www.photoivanov.com
(Erschienen in CUBE Berlin 04|23)
