Lebendiger Zeitzeuge

Der ehemalige Getreidespeicher bleibt ein Arbeitsort

12_15_700pixel7zFPQKdDMAPWc

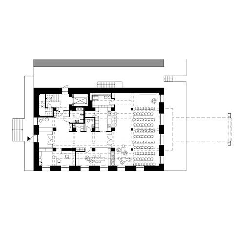
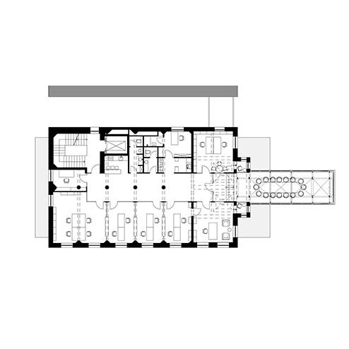
An der Großen Elbstraße zeugen noch einige Gebäude von der rasanten Hafenentwicklung ab 1830 der erst dänischen, dann preußischen Stadt Altona, die erst 1937 ein Stadtteil von Hamburg werden sollte. Altonas Hafen erstreckte sich vom Fischmarkt bis Neumühlen und war geprägt von den Hauptumschlagsgütern Fisch und Getreide. Große Fischverarbeitungsbetriebe, Mühlen, die Mälzerei und unterschiedliche Getreidelager bestimmten das Bild. Wenige überdauerten den 2. Weltkrieg, einige von ihnen sind heute – saniert und umgenutzt – Teil der „Perlenkette“.

In diesen geschichtlichen Zusammenhang gehört auch der Getreidespeicher mit der Verladebrücke. Er wurde 1937 direkt am seeschifftiefen Wasser der Elbe errichtet, neben dem Altonaer Kaispeicher D von 1924. Der ehemalige Getreidespeicher steht als Zeitzeuge der Industriegeschichte Altonas seit 2013 unter Denkmalschutz. Zuvor gab es bereits unterschiedliche bauliche Eingriffe, wie neue Fensteröffnungen und das Einziehen von Geschossdecken, anstelle der ursprünglichen Silozellen. Aber glücklicherweise blieb seine historische Kubatur mit Verladebrücke, Satteldach, Gauben und Dachhaus erhalten. Der jetzige Umbau und die komplette Sanierung durch SEHW Architekten mit filigranen Stahlfensterkonstruktionen sowie weiteren Öffnungen mit neuen Teilungen versuchen die wesentlichen Merkmale dieses geschichtsträchtigen Bauwerks weiter zu stärken, um die ursprüngliche Nutzung als Industriegebäude hervorzuheben. Die ehemalige Schiffs-Verladebrücke, die die Elbpromenade überkragt und früher der Hafenbahn zur Getreideanlieferung diente, beherbergt nun einen Besprechungsraum mit spektakulärer Aussicht in alle Himmelsrichtungen. Die Klinkerfassade wies eine Fülle von Überarbeitungen als Folge von Kriegszerstörungen und Nutzungsänderungen auf. Diese wurden sensibel saniert, um sie als Zeitzeugnisse zu erhalten. Ein höchst anspruchsvoller Eingriff war die Hochwassersicherung. Dazu wurde die komplette Kellerdecke entfernt, um eine „weiße Wanne“ – eine wasserundurchlässige Stahlbetonkonstruktion – in das Innere des Gebäudes einbringen zu können. Dazu war eine umfassende Abfangung des Gebäudes mit provisorischen Innenkonstruktionen notwendig. Weiterhin musste das Gebäude mit einer Vielzahl von Pfählen im Keller gegen den nun möglichen Auftrieb neu gesichert werden. Die Flutschutztore sind teilweise als Bodenklappenkonstruktion mit entsprechenden Gegengewichten im Terrassenbereich gesondert entwickelt worden.Der komplette Innenausbau mit integrierten Möbelelementen ist wie aus einem Guss gestaltet, das Treppenhaus mit durchgehenden Rohstahlbrüstung schlängelt sich durch alle Geschosse. Der historische massive Betonbau zeigt sich in seiner Rohheit im Zusammenspiel mit weißen puristischen Einbauten als ein harmonisches Zusammenspiel aus Geschichte, Materialität und Moderne.

www.sehw.de

Fotos:

Jakob Börner
www.jakobboerner.com

(Erschienen in CUBE Hamburg 02|23)

Architektur:

SEHW Architekten
www.sehw-architekten.de

Tragwerksplanung:

Wetzel & von Seht
www.wvs.eu

Lichtplanung:

Notholt Lighting Design
www.notholt.de

Erweiterter Rohbau:

Theo Urbach Bauunternehmung
urbach-bau.de

Treppe (Rohbau Bestand & Metallbau), neue Brüstung:

Weiland und Kuck
www.weiland-kuck.de

Büromöbel und Teeküchen:

Tischlerei Remmers
www.tischlerei-remmers.de

Fenster:

Metallbau Windeck
www.windeck.de
Jansen Janisol
www.jansen.com

Türen:

Tischlerei Wirth
www.tischlerei-wirth.de
Schörghuber
www.schoerghuber.de

Glastrennwände:

Goldbach Kirchner
www.goldbachkirchner.de

Gussasphalt, Terrazzo:

Gussasphalt Maeske
www.maeske.de

Flutschutztore und Klappen:

Altenwerder Werft
www.hochwasserschutz-hamburg.de

Aufzug:

Tepper Aufzüge
www.tepper-aufzuege.de

Sanitär:

Jochmann
www.jochmann.de

Parkett:

Home & Lifestyle
www.liebedeinzuhause.de

Nothing found.

Preziose unterm Dach

Ein Spitzboden in einem Mehrfamilienhaus in Essen-Rüttenscheid wird zum Vorzeigeprojekt

Vergangenheit & Zukunft

Modellprojekt zeigt, wie sakrale Bestandsarchitektur transformiert werden kann

Nachhaltige Metamorphose

Das Büroensemble „Lyght“ in Golzheim erweitert und revitalisiert den Bestand aus den 1970er-Jahren

Nothing found.

IMG-5493_10_700pixel

Aus Liebe zu Keramik

Sinikka Harms setzt bei ihren Tellern, Bechern und Schalen auf Naturtöne

Pause mit Aussicht

Die Grundschule Am Baakenhafen ist der Mittelpunkt des dicht bewohnten Quartiers

W1510C2455_22_700pixel

Jetzt läuft es richtig gut

Deutliche Umsatzsteigerung nach Store-Neugestaltung

Charmant und einladend

Sanierung bewahrt die Tradition und schafft zeitgemäßen Wohnkomfort

Ganz selbstverständlich

Schon die Kleinsten erleben in dieser Kita Qualität und Schönheit der Holzbauweise

Hamburgs größtes Kino

Kombination aus Design, Service und modernster Technologie soll Filmfans begeistern

Datei-48_15_700pixel

Grüne Lebenslust

Auf kleiner Fläche mit wenig Licht entstand ein ganz besonderer Großstadtgarten