Geglückte Verbindung
Moderner Anbau macht aus kleiner Altbauwohnung ein Familiendomizil
Familienkompatible Wohnungen in Frankfurt zu ergattern gleicht einem Glücksspiel. Selbst wenn man eine Wohnung findet, entspricht diese nicht unbedingt den eigenen Vorstellungen. Nicht selten heißt es: zu wenig Platz bei zu vielen und zu kleinen Zimmern. Doch die Bauherren von Point.Architektur hatten Glück. Sie haben eine ursprünglich 40 m² große Wohnung in einem Gründerzeithaus aus dem Jahr 1906 sanieren lassen und um einen einen dahinter liegenden Anbau mit Staffelgeschoss, der sich in die Tiefe des schmalen Grundstücks entwickelt, erweitern können. Mit diesem schräg zulaufendem Anbau, der sich in der Kubatur, Bauweise und Materialwahl vom Bestandsbau abhebt, haben sie nicht nur zwei Wohnwelten miteinander verbunden, es entstand auch – passend für eine Familie mit zwei Kindern – eine Wohnfläche von insgesamt 125 m². Das vorhandene Grundstück wird dabei bis zu seinen Grenzen ausgenutzt und verfügt zur Grenzmauer hin auch noch über einen Garten.
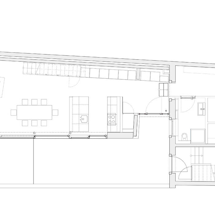
Die ursprüngliche Wohnung liegt im Hochparterre des Gründerzeithauses (Blockrandbebauung) aus weiß gekalktem Ziegelmauerwerk sowie Wänden und Sockeln aus rotem Sandstein. Über das Vorderhaus gelangt man zunächst in einen kleinen Hof, in dem sich der ebenerdige Zugang zur neuen Erdgeschosseinheit befindet. Die neue Eingangstür befindet sich an der Schnittstelle zwischen Bestands- und Neubau, und der Neubau aus einschaligem, verputzten Mauerwerk (ungedämmt) und Holzmetallfenstern, nutzt die Raumhöhe des Altbau-EG von 2,90 Meter.
Das Erdgeschoss im Gründerzeithaus haben die Architekten räumlich umstrukturiert und über ein altes Zimmerfenster an den Neubau angeschlossen. Dabei haben sie gründerzeittypische Elemente wie Stiltüren, das Eiche-Fischgratparkett und Zementfliesen erhalten. Kinderzimmer, Gäste-/Arbeitszimmer, Duschbad oder auch Abstell- und Waschraum sind hier untergebracht. Der nicht unterkellerte Neubau hingegen nimmt den großzügigen Küchen-Ess-Wohnbereich auf und öffnet sich über große Schiebefenster zum kleinen Hofgarten. Im Staffelgeschoss findet das Eltern-Schlafzimmer mit Ankleide und Ensuite-Bad Platz. Blickfang und Stauraum zugleich ist das eingestellte Treppenmöbel aus Weißtanne, das nicht nur beide Geschosse verbindet, sondern auch Garderobe, Teile der Küche und Abstellbereiche aufnimmt. Die Weißtanne setzt sich im Obergeschoss als Bodenbelag im Schlafbereich und Badezimmer fort. Nur die Nasszelle ist mit weißen Mosaikfliesen ausgekleidet.
Fotos:
Uwe Dettmar
(Erschienen in CUBE Frankfurt 01|23)

