Wohnen in Ottensen
Baulückenschließung unter Berücksichtigung der Sozialen Erhaltungsverordnung im Quartier
Mit dem Neubau eines siebengeschossigen Wohn- und Geschäftshauses hat das Büro Kunst + Herbert eine Baulücke an der belebten Bahrenfelder Straße in Ottensen geschlossen. Das Grundstück befindet sich in unmittelbarer Nähe des Alma-Wartenberg-Platzes und des Zeise-Areals. Auf der kriegsbedingten Lücke war Ende der 1940er-Jahre ein Behelfsbau errichtet worden. Bis 1983 befanden sich dort im Erdgeschoss die Altonaer Lichtspiele und im Obergeschoss mehrere Wohnungen. Danach zog eine Filiale der Hamburger Sparkasse ein.
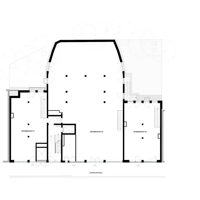
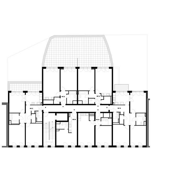
Im Neubau sind in den Obergeschossen unter Berücksichtigung der Sozialen Erhaltungsverordnung 33 teils mietpreisgebundene Wohnungen entstanden. Im Erdgeschoss sind vier Gewerbeeinheiten für Ladengeschäfte angeordnet. Das neue Gebäude fügt sich nahtlos in den Straßenzug ein und stellt die für das Quartier typische urbane Dichte wieder her. Die Fassade ist mit dem Sockelgeschoss, dem aus den Regelgeschossen bestehenden Mittelbau und dem Mansardendach klassisch dreigegliedert. Aufbau und Höhen des Neubaus greifen die gründerzeitliche Bebauung auf und wirken vermittelnd zwischen Alt und Neu. Die Lochfassade ist durch gleichförmige Fensterpaare und Gesimse horizontal gegliedert, Spannung wird durch die vertikale Anordnung der Fenster erzeugt. Durch die unterschiedliche Farbe, Form und Materialität der Fenster mit grauen Aluminiumprofilen im Erdgeschoss, den Holzfenstern in den Regelgeschossen und Dachöffnungen der Mansarde wird die Dreiteilung noch unterstrichen. Nach hinten öffnet sich die Fassade zum Innenhof und bildet mit dem Grünbezug einen Gegensatz von Straße und Innenhof aus. Alle Wohnungen verfügen über einen Balkon zum Innenhof und eine hochwertige Ausstattung, dabei ist es unerheblich, ob sie nach der Sozialen Erhaltungsverordnung mietpreisgebunden oder frei finanziert sind.
Eine kriegsbedingte Lücke ist nach Abriss wieder baulich gefüllt und das Straßenbild damit nachträglich städtebaulich geheilt worden. Neben der Wiederherstellung des preisgebundenen Wohnraumes sind alle Wohneinheiten von den Architekt:innen mit hohem gestalterischen Anspruch errichtet worden, der sich von der Fassadenplanung bis in die Gestaltung der Treppenhäuser durchzieht. Der Entwurf greift die Struktur und die Körnung des unmittelbaren städtebaulichen Kontextes auf. Darüber hinaus wahrt er den Charakter des vorindustriellen Arbeiterquartiers, das sich durch seine Kleinteiligkeit und seine schlichten Lochfassaden auszeichnet und wirkt identitätsstiftend.
Fotos:
Andreas Weiss
www.andreasweiss.org
(Erschienen in CUBE Hamburg 03|22)
