Kontraststarke Metamorphose

Eine Kirche wurde behutsam und effektvoll zugleich zum Kolumbarium umgestaltet

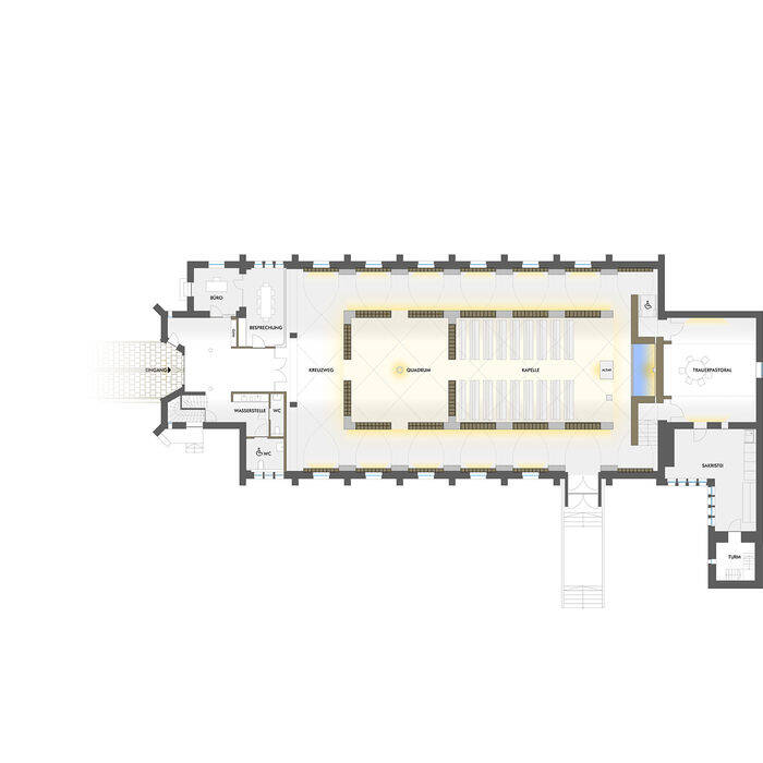
Die katholische Kirche St. Mariä Heimsuchung in Alsdorf-Schaufenberg, zwischen 1933 und 1935 nach Plänen der Aachener Architekten Ferdinand Goebbels und Franz Dominick im Stil des Backsteinexpressionismus errichtet, konnte nicht mehr als Pfarrkirche unterhalten werden und sollte in eine Gräberkirche umgenutzt werden. Das Aachener Büro ZHAC Zweering Helmus Architektur + Consulting, das den Architekturwettbewerb für sich entscheiden konnte, integrierte eine baldachinartige Skulptur unterhalb des Gewölbes. Diese inszeniert einen angenehmen wie auch auratischen Ort der Transzendenz und gliedert das Kirchenschiff inhaltlich und räumlich in Kapelle und Kreuzweg.

Nach der Umgestaltung springen die neu skalierten und umkodierten Raumproportionen des Kircheninnenraumes besonders ins Auge. Die Raumkontur, die aus den Außenwandflächen in die Spitzbogenstruktur und das Kreuzgewölbe übergeht, wird durch eine baldachinartige Skulptur aus schlanken Metallprofilen und einem verbindenden Netz aus Messingketten weiter nach innen versetzt. Durch diese zweite, filigrane Raumschale entsteht ein innerer Kapellenraum mit rund 100 Sitzplätzen und einem vorgelagerten Quadrum mit Taufbrunnen. Die in einem dunklen Anthrazitton gehaltenen Urnenwände, die insgesamt 1.845 Urnenfächer aufnehmen und bei Belegung jeweils mit einer massiven Messingplatte verschlossen werden, sind um den neuen Kapellenraum im Rhythmus der Kirchenjoche platziert – mit Sitzflächen zum Verweilen und persönlichem Gedenken. So fällt der der Blick von dem dunkel gehaltenen Eingangsbereich in den hell erleuchteten einschiffigen Hauptraum, dessen prägnante Mittelachse und Jochstrukturen weiterhin klar ablesbar sind. Zentraler Blickpunkt und Abschluss der Mittelachse ist dabei der erhaltene, jedoch weiter in den Raum gerückte Altar. Dieser wird von einer messingfarbenen Wandscheibe mit dem ebenfalls erhaltenen Kreuz und einem neuen abstandshaltenden Wasserbassin rückseitig gerahmt. Hinter dem Altarbereich liegt auf Chor-Niveau der Raum für das Trauerpastoral mit Kindern und Jugendlichen. In der früheren Taufkapelle im Eingangsbereich befinden sich zudem ein Verwaltungsbüro und ein Besprechungsraum für trauerpastorale Gespräche. Alle Baumaßnahmen wurden dabei so durchgeführt, dass der regionale Blausteinboden nahezu durchgängig erhalten werden konnte – auch die alten Kirchenbänke wurden restauriert und kommen bei größeren Trauergottesdiensten wieder zum Einsatz. Schließlich entfalten die Glasfenster, in den 1950er-Jahren vom bekannten Künstler Ludwig Schaffrath für die Kirche geschaffen, auch weiterhin ihre beindruckende Raum- und Lichtwirkung, indem sie – je nach Tageszeit – die verschiedenen Bereiche des Innenraums in ein farbenprächtiges Licht tauchen. Mit einem zusätzlich eingeführten Beleuchtungssystem lässt sich die Lichtstimmung in den Morgen- und Abendstunden weiter variieren.

www.zhac.de

Fotos:

Annika Feuss
www.annikafeuss.com

(Erschienen in CUBE Köln Bonn 01|24)

Nothing found.

Ort der Begegnung

Das neue Pfarrheim Mariä Himmelfahrt in Miesbach prägt ein Kontrast aus Modernität und Tradition

Preziose unterm Dach

Ein Spitzboden in einem Mehrfamilienhaus in Essen-Rüttenscheid wird zum Vorzeigeprojekt

Vergangenheit & Zukunft

Modellprojekt zeigt, wie sakrale Bestandsarchitektur transformiert werden kann

Nothing found.

Eckperspektive_19b_700pixel

Sanierung mit Augenmaß

Die frühere Zentrale des Deutschen Herold in Bonn wurde denkmalgerecht erneuert

WeberPahlLEV200210_0054pL_15_700pixel

Wo man gerne ankommt

Der neue Busbahnhof in Leverkusen überzeugt durch Transparenz in alle Richtungen

Nachhaltig am Hang

Nachhaltig am Hang

Ein Holzhaus in Bonn bietet drei Generationen ausreichend Raum mit viel Aus- und Durchblick

Ennenstr-2a-Strassenansicht_15_700pixel

Vermittelnder Kubus

Ein Mehrfamilienhaus in Neuehrenfeld schafft neue stadträumliche und gestalterische Bezüge

HSA_Wohnhaus-Koeln_03_700pixel

Behutsam umgebaut

Ein kernsaniertes Stadthaus in Sülz verbindet modernes Wohnen mit dem Bestand

10-2018_MotelOne_Koeln-Neumarkt-372_15_700pixel

Hommage an den Kölner Dom

Das Design der Bar im Motel One Köln-Neumarkt nimmt Bezug auf das Wahrzeichen der Stadt

PK1026-107_19_700pixel94eJpuNl0odx9

Prägnantes Eingangstor

Der Neubau des Biomedizinischen Zentrums II in Bonn ist mehr als nur Laborgebäude

copyright-C-studio-gru-ngrau-I-Manuel-Kubitza-2023-4-_19_700pixel

Parkstadt am Fluss

Der Wiehlpark kreiert die neue grüne Mitte von Wiehl