Ins Grüne fließend
Ein Wohnhaus in Bonn-Röttgen wurde umfänglich saniert und harmonisch erweitert
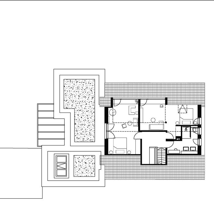
Schon länger hatten die Bauherren nach einem Wohnhaus für die vierköpfige Familie gesucht. Am Ende war es wie so oft der Zufall, der der Architektin Laura Schommer-Wolstein vom Bonner Architekturbüro Schommer das Nachbarhaus ihres eigenen Elternhauses in die Hände spielte: Das überschaubare eingeschossige Satteldachhaus aus den 1960er-Jahren bot nicht nur genügend Umbaupotential – aufgrund des relativ großen Abstands zum Nachbarhaus ließ es sich auch so erweitern, dass ein zeitgemäßes offenes Wohnen mit durchgehender Anbindung an den Außenraum möglich wird.
Die relativ kleinteiligen Räume des 134 m² großen Bestandshauses sollten so neu geordnet und ergänzt werden, dass sich ein weitläufiger gemeinschaftlicher Mittelpunkt für das Familienleben ergibt. Der zwischen Wohnhaus und Garage neu eingefügte, u-förmig um einen kleinen Patio herumgeführte Anbau erweitert die Wohnfläche auf 210 m² und schafft dabei einen großzügigen und geschützten Raum mit klar definierten Zonen für Wohnen, Essen und Kochen. Mit seinen mehreren, auf 3,10 Meter Raumhöhe ausgeführten Glasschiebefronten fängt er den täglichen Sonnenverlauf von Ost nach West ein und ermöglicht zugleich vielfältige Ausblicke auf die idyllische Gartenkulisse mit altem Baum- und immergrünem Buschbestand. Die dabei entstehende schwellenlose Anbindung an das Terrassenholzdeck lässt mediterrane Urlaubsstimmung gleich mit aufkommen: Damit Innen und Außen ganz miteinander verschmelzen, lassen sich die Schiebefronten auch über Eck zurückfahren. So ergibt sich etwa im Bereich des Patios ein fließender Innen-Außen-Raum, der durch sein transparentes Glasdach auch in kälteren Jahreszeiten genutzt werden kann. Ein großzügiges, dreiteiliges Oberlicht über dem freistehenden Küchenblock verleiht dem Wohnraum eine zusätzliche Nuance, indem es ihn mit einem dynamischen Licht- und Schattenspiel belebt. Auch die Räume im Bestand wurden im Zuge des Umbaus neu geordnet: So konnte durch Wanddurchbrüche das frühere Wohn- und Esszimmer in ein großzügiges barrierefreies Schlafzimmer, einschließlich Masterbad ensuite mit freistehender Badewanne vor dem Fenster, verwandelt werden – samt Ausblick ins Grüne. Das frühere Dachgeschoss wurde dagegen zur reinen Kinderetage samt Bad – mit einer deutlich vergrößerten Dachgaube, die viel Tageslicht und natürlich auch Aussicht in die Räume holt. Außen wie innen wurde darauf geachtet, dass beide Bauteile als eigenständige Einheiten bewahrt werden und sich optisch doch ergänzen: So wurden etwa die Deckenoberflächen angenähert: Eine unter der Holzverkleidung des Bestands „schlummernde“ brettgeschalte Betondecke wurde freigelegt und verbindet sich so harmonisch mit den Sichtbetondecken des Neubaus. Eine Verbindung stellt auch der warme Parkettboden her, der sich wie ein Band durch Alt- wie Neubau zieht. Ein Teilbereich der alten roten Klinkeraußenwand wurde im Anbau bewusst als Blickfang und Verweis sichtbar belassen. Mehrere maßgefertigte Möbeleinbauten unterstreichen die Individualität der Räume. Bei der Haustechnik kam schließlich ein zeitgemäßes KNX-System zum Einsatz. Eine PV-Anlage erzeugt auf dem teilbegrüntem Dach des Anbaus den überwiegenden Teil des Hausstrom.
www.schommer-architekt.com
Instagram: architekturbuero_schommer
Fotos:
Annika Feuss
www.annikafeuss.com
(Erschienen in CUBE Köln Bonn 01|24)
