Alte Pracht wiederhergestellt

Ehemalige Schau- und Verkaufsräume originalgetreu erneuert

041_Fassade_210915_DSF1005_neu_15_700pixel

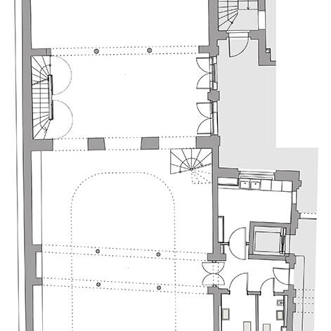
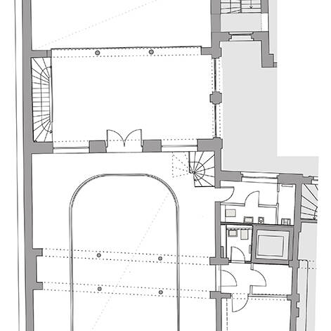
Der Eisenwarenhändler Friedrich Wilhelm Lademann erwarb das Grundstück an der Wallstraße im Jahr 1870 und begann sofort mit dem Bau eines viergeschossigen Wohn- und Geschäftshauses. Ein Jahr später ergab sich die Gelegenheit, auch das Nachbargrundstück zu kaufen und er erbaute auch dort ein Mehrfamilienhaus. Zur Wallstraße hin gelten die Gebäude als zwei eigenständige Wohnhäuser – auf der Rückseite sind sie terrassenförmig gegliedert und zu einem harmonischen Ganzen zusammengefügt. Im Erdgeschoss waren in hohen atelierartigen Räumen und im Saal die Schauräume der Eisenwarenhandlung Lademann untergebracht. Vier gusseiserne, verzierte Stützen bilden das Tragwerk des beeindruckenden, 5,4 Meter hohen Saals, der zudem mit einer Empore im Mezzaningeschoss ausgestattet ist. Darüber befand sich im ersten Obergeschoss das Kontor.

Der Saal erlebte ein wechselvolle Geschichte, zuletzt in den Nachwendejahren – als Veranstaltungsort. Er ist in die Denkmalschutzliste eingetragen. 2019 wurde für die Räum die Genehmigung zur Umnutzung erteilt: als Galerie und Café für den Saal im Erdgeschoss und zur Nutzung als Büroflächen im Untergeschoss. Das ehemalige Kontor wurde zu einer großzügigen Wohnung ausgebaut. Haus-Architekten erhielten den Auftrag, den historischen Saal zu sanieren und wiederherzustellen. Die Atmosphäre und der Charme des Raumes, der in einem desolaten Zustand war, sollten erhalten bzw. wieder hergestellt werden. Alle vorhandenen Elemente konnten erhalten oder ergänzt werden. Beispielsweise wurde die zerstörte Spindeltreppe, die einst ins erste Obergeschoss geführt hatte, zu einer Treppe umgebaut, die nun wieder in den Saal führt. In Abstimmung mit dem Denkmalamt ist die farbliche Gestaltung, auf der Grundlage von Befunden an Wänden und Decken, durchgeführt worden. Technisch notwendige Eingriffe und Einbauten sind unter Berücksichtigung des historischen Bestandes gestalterisch zurückhaltend eingegliedert worden. Im Mezzaningeschoss ist ein Besprechungsraum mit einer Stahl-Glaswand zum Saal eingefügt. Neue Stahltreppen verbinden das Untergeschoss mit der Empore im Mezzanin. Um die historisch wertvollen und in seiner ursprünglichen Gestaltung nahezu komplett erhaltenen, ehemaligen Schau- und Verkaufsflächen einer breiten Öffentlichkeit zugute kommen zu lassen, soll der Bereich des Saals zur Wallstraße hin als Café und der Bereich zur Spree hin als Galerie und Businesslounge genutzt werden.
 
www.haus-architekten.de

Fotos:

haus.architekten

(Erschienen in CUBE Berlin 02|23)

Nothing found.

Ort der Begegnung

Das neue Pfarrheim Mariä Himmelfahrt in Miesbach prägt ein Kontrast aus Modernität und Tradition

Preziose unterm Dach

Ein Spitzboden in einem Mehrfamilienhaus in Essen-Rüttenscheid wird zum Vorzeigeprojekt

Vergangenheit & Zukunft

Modellprojekt zeigt, wie sakrale Bestandsarchitektur transformiert werden kann

Nothing found.

Exklusive Architektenvilla am Waldrand

Modernes, energieeffizientes Wohnjuwel bei Berlin

15_220713_10_17_10_15_700pixel

Mobilitätsdenkmal mit Hotel

Die einstige Garage wird nun mit Designermöbeln „aufgemöbelt“

enter_wb_5896_15_700pixel

Wunderbar wandelbar

Neues Bürogebäude mit Fokus auf flexible Arbeitswelten

IMG_5152_15_700pixel

Jetzt auch in Berlin

Von der Beleuchtung bis zum Bodenbelag: Das Netzwerk Berlin zeigt innovative Raumlösungen

FAKT_057_house-for-1-to-4-families_photo_11_-C-Simon-Menges_15_700pixel

Aus Eins mach Vier

Wandelbarer Neubau für ein Mehrgenerationenhaus in spe

Relaxt kreativ gemütlich

Auftraggeber und Innenarchitektin designen als eingespieltes Team ein Büro der anderen Art

Unicorn_Space_Richardstr_02_15_700pixel

Böhmisches Dorf

Der Umbau umfasste die Sanierung der ehemaligen Kfz-Werkstatt und die als Lager- und Büroflächen genutzten Hofgebäude ebenso wie den Abriss eines…

6000_ROS_012_A4_c_Stefan_Mueller_15_700pixel

Dreieinheit

Mitte erneuert sich und wächst weiter