Lichtes Refugium
Eine Doppelhaushälfte wird zum Wohlfühlort für die ganze Familie
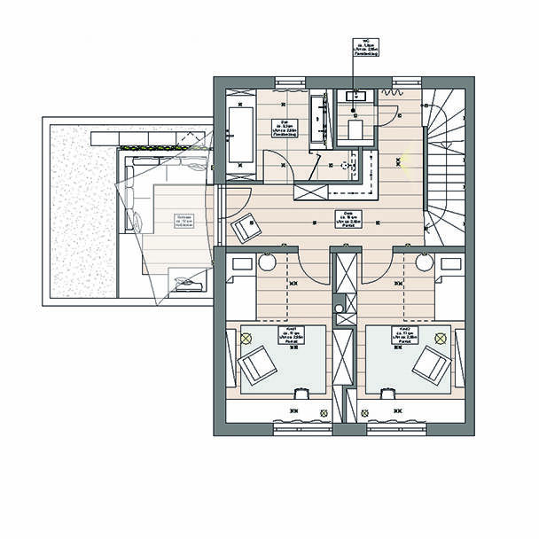
Intelligente Raumstrukturen, eine klare Formensprache und moderne Linienführung zeichnen die Entwürfe der Münchner Innenarchitektin Gabriela Raible aus. Und auch bei diesem Projekt, das sie für eine Familie mit zwei kleineren Kindern in einer Doppelhaushälfte mit 220 m² Grundfläche in Bogenhausen entworfen hat, ist ganz deutlich ihre Handschrift zu erkennen: In dem von den Münchner Harder Groh Architekten geplanten Haus mit bodentiefen Fenstern und einer großzügigen Dachgaube setzte sie zusammen mit ihrer Projektleiterin Maren Böttcher ein modernes, ideenreiches und durchdachtes Interieurkonzept mit zahlreichen feinen Details um – im Englischen würde man es als „sophisticated“ bezeichnen.
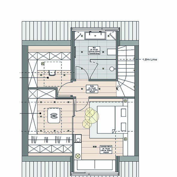
Dass das Haus im Grunde sehr schmal ist, merkt man dem Objekt dank der geschickten Raumaufteilung und spannenden Ideen für Sichtachsen überhaupt nicht an. Lichtdurchflutet und offen sind alle Bereiche, die für die moderne, schlichte und formal zeitlose Möblierung eine perfekte Bühne bilden. Genau das war auch der Wunsch der Bauherren: Aus dem kompakten Grundriss ein Optimum an Offenheit und Lässigkeit herauszuholen und gleichzeitig maximalen Stauraum unterzubringen. Wichtig war der Familie ein geschützter und geborgener Wohnbereich, den die Architektin quasi rund um die Feuerstelle im Wohnzimmer platzierte und so einen ganz besonderen Rückzugsort für die Familie schuf. Verbindendes Element zu dem tiefer liegenden, abgetreppten „Refugium“ ist der durchgängig verlegte, helle Holzfußboden. Die Spannung des Niveauunterschiedes vom Eingangsbereich und der in frischem Weiß gehaltenen offenen Küche mit angeschlossenem Essplatz zum tiefer liegenden Wohnbereich ist deutlich spürbar. Eine Besonderheit ist in diesem Zusammenhang auch der Tunnelkamin im Flurbereich auf Bodenniveau, durch den sich spannende Blickachsen über das zwei Stufen niedrigere Wohnzimmer bis in den Garten ergeben. Ein unaufgeregtes Farbkonzept in Weiß und Grau hebt die schlichte und formal zeitlose Raumgestaltung hervor, die zugleich auch Lässigkeit ausstrahlt. Unterstützt wird dies durch mit grauem Stoff bespannte Wandelemente, die auch für eine angenehme Raumakustik sorgen, etwa in der Sitznische des Essplatzes oder hinter einer über Eck angeordneten Sitzgelegenheit im Wohnzimmer. Farbliche Highlights setzen die kugeligen Hängeleuchten von Bocchi über dem großen hölzernen Esstisch und die Stühle in Meerblau. Im Obergeschoss setzt sich das weiß-graue Konzept fort. Spannendes Detail sind hier die eingebauten Nachtkästchchen im Elternschlafzimmer aus hellem Holz.
(Erschienen in CUBE München 04|20)


