Maximal verzahnt
Moderne Villa macht den Charme der Umgebung im Inneren erfahrbar
Zur Straßenseite hin zurückhaltend und geschlossen löst sich der reliefhafte, kompakte Baukörper über die Fassaden im Süden und Norden zu einer offenen Skulptur mit freistehenden Scheiben und raumgreifenden Terrassendecks an der Gartenseite auf. Die Gebäudestruktur aus vertikalen und horizontalen Fluchtlinien steht dabei im bewussten und reizvollen Kontrast zur umgebenden Natur.
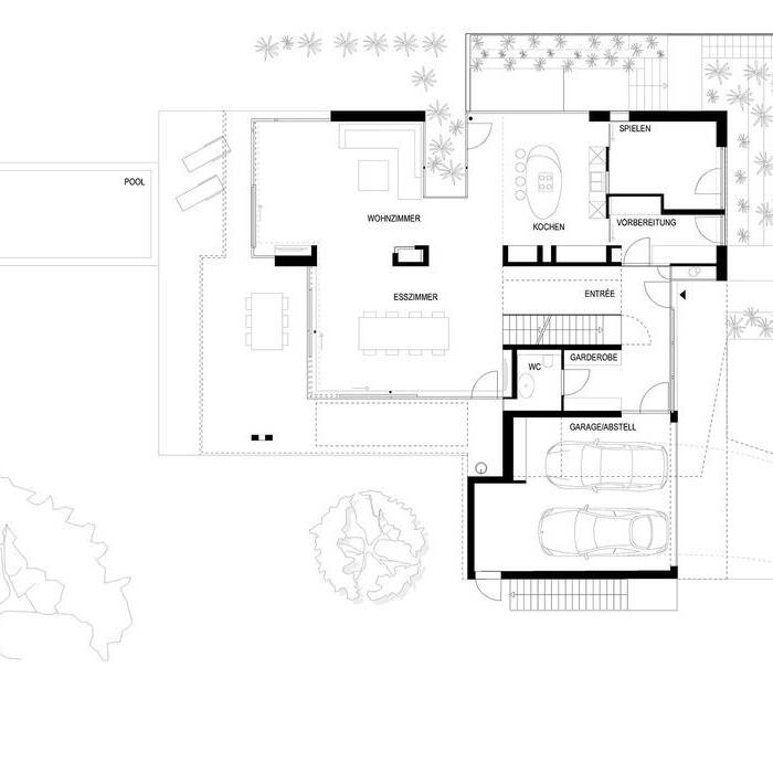
Die moderne Villa, die das Frankfurter Büro ffm-architekten. Tovar + Tovar für ihre Bauherren geplant haben, liegt in Darmstadt in einem parkähnlichen Areal. Damit auch im Inneren der Charme der Umgebung erfahrbar bleibt, haben die Architekten auf eine maximale Verzahnung von großzügig bemessenen Wohn- und Aufenthaltsräumen sowie dem großen Gartengrundstück gesetzt. Doch nicht nur die Übergänge zwischen innen und außen erscheinen fließend, auch die einzelnen Zonen im Erdgeschoss greifen ineinander. Die Bauherren wünschten sich zudem, dass der Wohn- und Essbereich auf den Garten ausgerichtet ist und über eine großzügig verglaste Fassade verfügt, um sich an den auf dem Grundstück beheimateten alten Baumbestand erfreuen zu können. Ergänzend mussten sich die Architekten etwas einfallen lassen, um das Gebäude im Erdgeschoss angemessen belichten zu können.
Aus städtebaulichen Gründen konnte die acht Meter tiefe Garage nur auf der Südseite des Grundstücks geplant werden, was dem Erdgeschoss nicht nur Belichtungsmöglichkeit nimmt, sondern zudem die Grundstücksbreite einschränkt. Daher entwickelten die Architekten das Gebäude zum einen in die Tiefe und sorgten zum anderen mit einem überzeugenden Kniff für mehr Licht: Ein zweigeschossiges Atrium bringt von oben Licht in das Erdgeschoss und eine lichte Treppenskulptur verbindet das großzügige, offene Entree mit dem Obergeschoss. Ein weiteres zentrales raumbildendes Element ist der zweigeschossige, nach außen offene und nach innen verglaste, mit Bambus bepflanzte Innenhof. Im Erdgeschoss grenzt er mit transparenter Leichtigkeit Küche und Wohnzimmer voneinander ab sowie im Obergeschoss das Bad vom Wellnessbereich. Grünpflanzen betonen dabei abermals die fließenden Übergänge und der Glashof gibt gleichzeitig aus der Raumtiefe den Blick in den Garten frei.
Das großzügige Innere schenkt den Bauherren zahlreiche Möglichkeiten, individuell gefertigte Wohnobjekte, Möbel und Kunstobjekte in ihren Lebensbereich zu integrieren. Damit die Objekte gestalterisch eingebettet sind, schafft die Architektur jeweils einen der Situation angemessenen Hintergrund: So wird die Kücheninsel aus einem roh belassenen Findling in einem rau geschalten Baukörper aus Beton platziert, der ockerfarbene Waschtisch im Gäste-WC aus versteinertem Holz wird in einem Raum mit dunkelgrünem Glasmosaik inszeniert und eine im Eingangsbereich platzierte Vitrine aus dunklem Metall präsentiert eine ausgeleuchtete Plastik. Im gesamten Haus dominieren warme Graubeigetöne, Beton, dunkles Metall und gedämpftes Eichenholz. So entsteht ein ruhiger Hintergrund für Möbel, Kunstobjekte und die Bewohner.
(Erschienen in CUBE Frankfurt 02|20)
