Respektvoll ausbalanciert
Umbau eines denkmalgeschützten Militärbaus von 1907 zum Amtsgericht
Ein wahrer Balanceakt ist den Architekten Dannien und Roller beim Umbau des Kammergebäudes der Thiepval-Kaserne in Tübingen gelungen: Die Vermittlung zwischen dem Bestand, einer Militärarchitektur mit Machtanspruch, und der neuen Nutzung als Amtsgericht, einem Ort der unabhängigen Rechtsprechung. Wunsch der Denkmalpflege war es zudem, auf starke Inszenierung des Neuen zu verzichten.
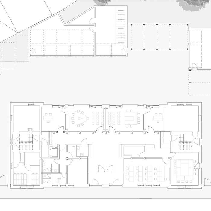
Das dreigeschossige Kammergebäude ist ungeachtet der politischen Bestrebungen seiner Erbauer von gestalterischer Qualität. Es ist ein schlichter Stahlbetonskelettbau mit gemauerten, hell verputzten Außenwänden und einer Gliederung mit Klinkern. Unterschiedlichste Nutzungen, unter anderem als Fahrzeughalle und Wäscherei, hatten deutliche Spuren an der Bausubstanz hinterlassen. Aus statischen Gründen wurden die Fundamente ausgetauscht, die neue Bodenplatte tiefer gelegt und die Decke über dem Erdgeschoss entfernt. Umfangreiche Maßnahmen zur Abfangung und Ertüchtigung des Brandschutzes für das öffentlich genutzte Gebäude waren notwendig.
Als Zeichen der neuen Identität ruhen über dem Eingang die schlanken und eleganten Buchstaben „Amtsgericht“. Der metallene Schriftzug ist Informationsträger und skulpturales Fassadenornament zugleich. Zwei historische Torbögen erschließen das neue Amtsgericht barrierefrei. Die Kubatur des Baus respektierend, ist der Windfang als Holz-Glas-Konstruktion ins Innere gezogen. Unprätentiös und dabei würdig zeigt sich das großzügige Foyer. Es vermittelt das Selbstverständnis der Institution: Weg von einer bedrückenden Atmosphäre des Verurteilens, hin zu einer unabhängigen Rechtsprechung. Die neu eingebrachte Stahlbetondecke ist im Eingangsbereich und in den Gerichtssälen als Konstruktion sichtbar. Rau verputzte Wände in warmem Hellgrau und ein heller, geschliffener Sichtestrich erzeugen räumliche Tiefe und stehen in harmonischem Kontrast zum Eichenholz der Möblierung. Neun Stahlbetonstützen vor den Gerichtsräumen erzeugen Dynamik. Die sechseckig asymmetrischen Pfeiler erwecken Assoziationen an die Rauheit des früheren Zweckbaus. Das subtile Spiel mit Materialien und Oberflächen vermittelt Ordnung, Klarheit und Transparenz. Die Garagentore an der Gebäuderückseite wurden geöffnet und belichten die Gerichtssäle und Besprechungsräume. Als Reminiszenz an die Holztore sind die Glasscheiben in der Tiefe versetzt angeordnet. Lebhaft spiegelt sich das ein- und ausfallende Licht. Die internen Arbeitsräume für Richter und Mitarbeitende sowie die Registraturen sind in den zwei Obergeschossen und im Dachgeschoss untergebracht. Der Umbau der oberen Etagen bewahrt und aktiviert das Bestehende. Das warme Hellgrau der Wände korrespondiert mit dem Grüngrau der Holzfenster in den freigelegten, gerundeten Laibungen. Begegnungsinseln mit Küchenzeile für Mitarbeitende sind als Raum im Raum angelegt.
www.dannien-roller-architekten-partner.de
Fotos:
Dietmar Strauß
www.dietmar-strauss.de
(Erschienen in CUBE Stuttgart 04|21)
