Jung und Alt vereint
Exklusives Wohnen in Berlins Mitte
Auf den ersten Blick erinnern die Rundungen des Gebäudes an die Bauten von Erich Mendelsohn. Der Neubau eines Wohngebäudes steht sozusagen auf der einst letzten freien Fläche am Rand des Fromet-und-Moses Mendelssohn-Platzes gegenüber dem Jüdischen Museum. Die Halle des ehemaligen Blumengroßmarktes – umgebaut und umgenutzt als Akademie des Jüdischen Museums sowie als Kindermuseum „Anoha“ – dominiert den Platz, an dessen Rändern nun drei große Neubauten stehen.
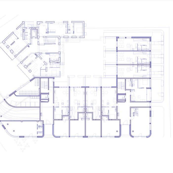
Das zuletzt nach Plänen der Berliner Architekten Gewers Pudewill erbaute „NeuHouse“ steht nördlich in Richtung Besselpark. Die Stadtgrund Bauträger erteilte den Gewinnern des Wettbewerbs den Auftrag ein siebengeschossiges Wohnhaus mit Gewerbenutzung im Erdgeschoss zu planen und eines der ältesten Gebäude Kreuzbergs, das dort steht, zu sanieren und mit in das Bauvorhaben einzuplanen. Es entstanden 75 Eigentumswohnungen mit Größen von 24 m2 bis 149 m2 – sprich Ein- bis Fünfzimmer-Wohnungen. Im denkmalgeschützten Altbau aus dem frühen 19. Jahrhundert wurde eng mit der Bezirks- und Landesdenkmalpflege zusammengearbeitet. Hier gibt es 14 Altbauwohnungen und im Neubau 61 Wohnungen. Im Untergeschoss stehen in einer Tiefgarage 34 Stellplätze zur Verfügung.
Die Fassade des Neubaus, die aus hellen Ziegeln im langen Dünnformat besteht, wird gleichsam zur Hülle und macht einen exklusiven Eindruck. Besonders fallen die Brüstungen der etagenweise versetzt angeordneten Loggien auf. Öffnungen zwischen den Ziegeln ergeben ein „Lochmuster“, da jeder zweite Stein ausgelassen wurde. Die bereits erwähnten Rundungen lassen die doch beträchtliche Baumasse in keinster Weise klotzig wirken. Vielmehr erscheint das Gebäude leicht. Das sechste und das siebte Stockwerk springen zurück und bilden großzügige Dachterrassen mit schönen Ausblicken auf die Umgebung und über die Stadt. Die Rückseite ist durch geschosshohe Glasflächen und Balkone aufgelockert. Neu- und Altbau sind miteinander verbunden. So entsteht rückwärtig ein attraktiver, ruhiger Wohnhof mit privaten Terrassen und begrünten Gemeinschaftsflächen. Im Innern wurde ebenfalls auf hochwertigste Materialien Wert gelegt. Sichtbeton, Holz, wie z. B. bei den Parkettböden – kurz – auf gehobene Ansprüche zugeschnitten. Auch die Innenausstattung stammt von Gewers Pudewill Architekten.
Fotos:
HG Esch
www.hgesch.de
(Erschienen in CUBE Berlin 01|23)
