Sustainable Design Meets Green Space

A nursery in Düsseldorf-Flehe reimagines a previously sealed site within Ulenbergpark

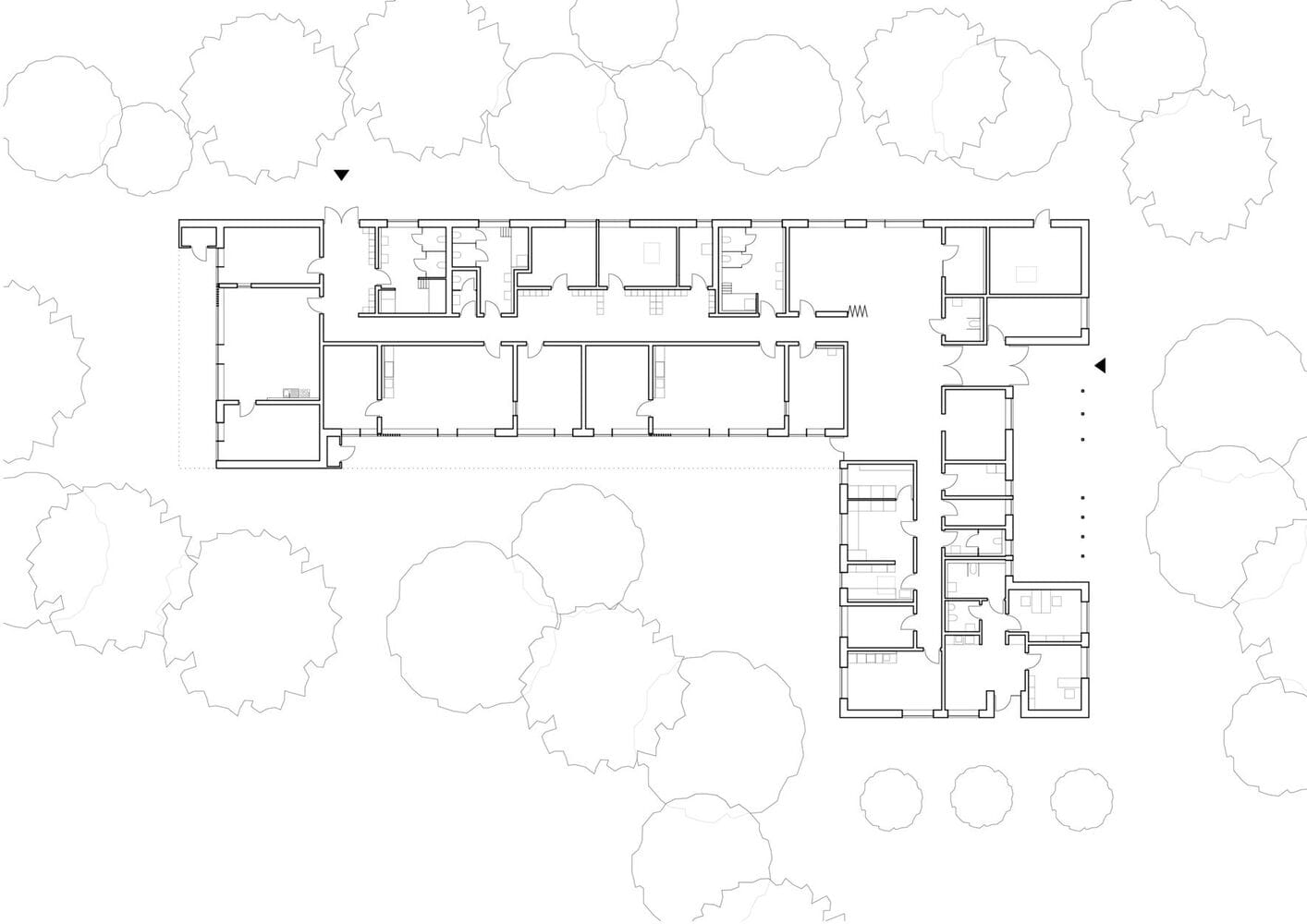
Sustainable design with green connections

Demand for childcare spaces continues to rise across the state capital. To address this pressing need, bap architekten developed an architecturally sophisticated, resource-conscious solution: a nursery at Ulenbergpark designed around timber construction and energy efficiency. The project, realized for Immobilien Projekt Management (IPM) GmbH on behalf of Düsseldorf, also makes thoughtful use of the northern section of this popular recreation area. Key features include unsealed outdoor spaces and integrated office areas for the municipal parks department that manages the facility.

The new nursery sits conveniently along Ulenbergstraße, adjacent to the park's central parking area. The site underwent complete remediation—paved surfaces, planted areas, sandpits, and a boules court gave way to thoughtful development that restored the landscape. The reclaimed areas now feature innovative biodiversity measures. The single-storey building comprises a concrete base topped with timber frame construction and a closed, rear-ventilated timber façade. Its L-shaped floor plan organizes spaces by function: the long wing houses three group rooms that open southward toward the park with covered terrace areas, providing both outdoor access and natural shading. Service spaces—corridors, restrooms, and cloakrooms—occupy the northern side, creating a buffer for the group areas. To the west, a separate kitchen and storage facilities complete the layout. The shorter eastern wing holds staff rooms and integrates the independently accessible offices of the municipal parks department. At the junction of the two wings lies the main entrance, positioned to open both outward and upward—a gesture that strikes a welcoming, open, and inviting tone.

A movable partition in the foyer creates flexibility, allowing the space to transform into a multipurpose room for events like nursery celebrations. The interior corridor, which runs through the building, is equally thoughtful in design: a clerestory band—created by the height offset between building sections—floods the corridor with natural light while facilitating cross-ventilation throughout the rooms. The exposed timber beam structure, enhanced with acoustic panels, pairs beautifully with rubber flooring and accent wall colors. Environmentally, the building performs impressively through an air-to-water heat pump system and photovoltaic panels installed on the fully planted roof areas.

www.bap-architekten.de

Photography:
Paul Masukowitz
www.paul-masukowitz.de

(Published in CUBE Düsseldorf 04|25)

Nothing found.

Through the Years

Contemporary office building replaces 1950s residential structure

Learning Made Fun

A bright modular building delivers a Dortmund secondary school with modern, flexible learning spaces

Expansive Living Spaces

A timber-frame residence marries expansive views with generous ceiling heights.

Seamlessly flowing into the garden

A detached house that captivates with its generously proportioned living spaces.

Nothing found.

Diversity in harmony

A vibrant new residential quarter with generous green space has emerged on Ulmer Höh' in Derendorf.

_DSC3126-1_15_700px

Reductive design

Maximilian von Dieken: Furniture with a Personal Signature

HausV_08h_15_700pixel

Lofty and Elegant

A Bungalow Reimagined: Layered Views and Refined Material Harmony

Flexible and Connected

Medical Research Centre I fuels interdisciplinary collaboration at the University Hospital

nora-systems_Central-Library_Düsseldorf_2_15_700px

Color as Design Strategy

The new central library harnesses the floor itself as its primary wayfinding tool.

Konrad-Adenauer-Platz-5-C-Jan-Ladwig_15_700pixel

A Town Square with Multiple Focal Points

User-centered revitalization of Konrad-Adenauer-Platz in Langenfeld

Healing Beneath the Linden Trees

Healing Under the Linden Tree

Grafenberg's LVR-Klinikum Unveils a New Psychiatric Centre

BX_Wuppertal-Platzhoffstrasse-04_19_700px

Urban Dwelling Reimagined

How Energy-Efficient Renovation Brought a Residence Into Harmony With Its Streetscape