Ein echtes Schätzchen

Der Umbau eines Bungalows aus den 1960er-Jahren offenbart seine Qualitäten

_DSC6843_HiRes_02_15_700pixel

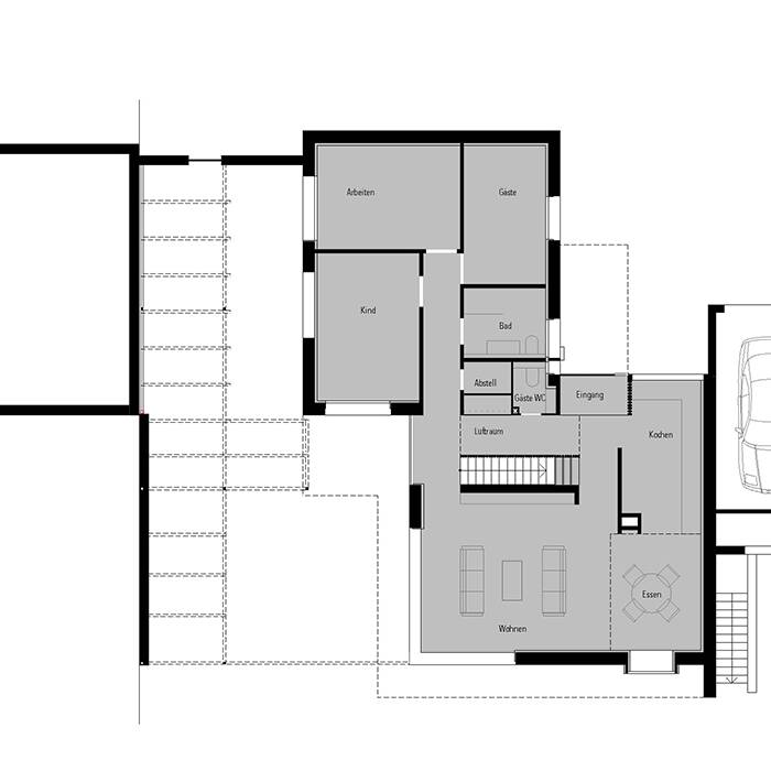
Ein Grundstück im Hamburger Westen wurde mit einem zum Abbruch ausgewiesenen Bestandsgebäude – ein Flachdachbungalow aus den 1960er-Jahren – verkauft. Jedoch stellte sich nach eingehender Prüfung der Immobilie heraus, dass sowohl die bauliche Substanz als auch die architektonische Ausgestaltung des Hauses von hoher Qualität waren. Derartige Bungalows erlebten in den 1960er-Jahren ihre Blütezeit. Nachdem die größte Wohnungsnot nach dem Zweiten Weltkrieg behoben war und das Wirtschaftswunder die finanziellen Möglichkeiten schuf, orientierten sich zahlreiche Einfamilienhäuser wie dieses Bestandsgebäude am Stil der amerikanischen Bungalows mit neuer Grundrissgestaltung und bewusst gestalteter Verknüpfung von innen und außen. Daher folgten die Bauherren der Empfehlung von Sieckmann Walther Architekten, das Haus nicht abzureißen, sondern es vollständig zu sanieren und durch eine Aufstockung räumlich zu erweitern.

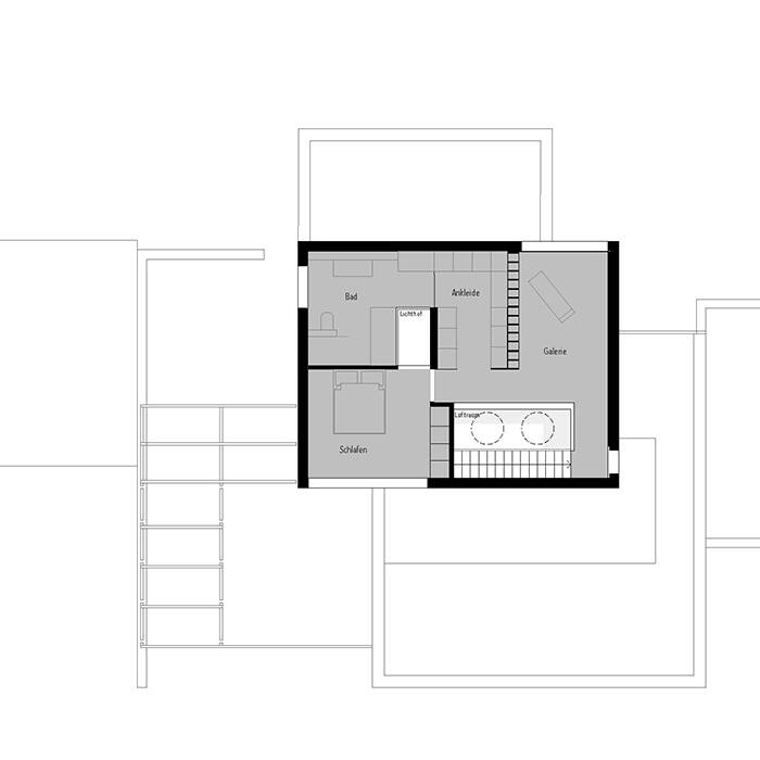
Hierbei wurde das vorgefundene Motiv der betonten Attika, der umlaufenden Dachrandverkleidung, aufgenommen und auf die Aufstockung übertragen. Eingefasst von den anthrazitfarbenen Zinkblechabdeckungen erhielt die Aufstockung eine schwarze Holzlamellenfassade mit rahmenlos integrierten, geschosshohen Fensterflächen analog zu den Öffnungen im Erdgeschoss. Der Bestand wurde mittels einer Holzfaser-Innendämmung energetisch ertüchtigt, mit dreifach verglasten Holz-Aluminium-Fenstern versehen und die Putzfassade erhielt einen weißen Anstrich. Die Aufstockung wurde vor Ort in Holzrahmenbauweise gefertigt und mit Zellulosefasern gedämmt. Aufgrund der sehr leichten Konstruktion konnte auf eine Ertüchtigung der Fundamente verzichtet werden. Der Kontrast von Schwarz und Weiß betont die kubische Wirkung des neu entstandenen Baukörpers und setzt auch innen Akzente.

Als graue Energie bezeichnet man die Energiemenge, die für Herstellung, Transport, Lagerung, Verkauf und Entsorgung eines Produktes inklusive aller Vorprodukte und Produktionsprozesse benötigt wird. Hier konnte durch die Erhaltung des Bestandsgebäudes im Vergleich zum Neubau etwa 120.000 kWh graue Energie eingespart werden, das entspricht in etwa dem Heizenergiebedarf des Hauses für die kommenden 35–40 Jahre. Die ressourcenschonende Holzrahmenbauweise der Aufstockung trug zusätzlich zur Minimierung bei. Die nicht überbauten Teile des Bestandsdaches wurden mittels einer Aufsparrendämmung energetisch ertüchtigt. Dies gilt als die bauphysikalisch beste Dämmmethode. Dabei wird über der Dachfläche eine geschlossene Haube aus Dämmelementen verlegt, die die Innenräume wie auch die Dachkonstruktion schützt.

www.sieckmannwalther.de

(Erschienen in CUBE Hamburg 02|20)

Nothing found.

Harmonisch eingefügt

Neubau-Ensemble wahrt den historischen Bezug und entwickelt eigene Identität

Traditionell und Modern

Traditionell und Modern

Massivholzhaus ist der Publikumsliebling beim Rosenheimer Holzbaupreis

Erdverbundene Leichtigkeit

Winkelförmiger Bungalow auf Sockel mit Höfen bildet einen geschützten Gartenbereich

Nothing found.

TREUDELBERG-GEMU-TLICH-54_15_700pixel

Großer Wurf

Das Flair des alten städtischen Hamburgs sollte verbunden werden mit dem neuen Hamburg und seinen Einwohnern, die sich im Hotel Treudelberg gerne…

W1908P7933_200508_42_700pixel

Große Geste

Die Panoramaverglasung bietet beste Ausblicke ins Grüne

Perfektes Zusammenspiel

Eine Terrasse und ein Garten werden zu einem Wohlfühlort

Schwitzke-Partner-x-Optiker-Bode-Jungfernstieg_Innenansicht-c-Bevis-Photography_15_700pixel

Preisgekröntes Storedesign

Symbiose aus Handwerkskunst und Lifestyle am Jungfernstieg

CAB20-0088-foto-jakob-boerner-1_15_700pixel

Weniger ist Mehr

Ein Kabinenhotel in St. Georg bietet Privatsphäre und Community Spirit für kleines Geld

0L8A8726_200702_Falkenried_Hamburg_Architekturfotografie_Jakob_Boerner_15_700pixel

Effektive Ausnutzung

Bauen im Bestand: Funktionale und ästhetische Lösung für eine Familienwohnung

FSP_02_19_700pixel

Gute Nachbarschaft

Das neue Schulgebäude ist aus zwei parallel verschobenen Gebäudewinkeln komponiert, die sich ineinander verschränken und einen Lichthof bilden.

Nieberg_Celle_Gardenview_high-Kopie_700pixel

Form und Licht in Harmonie

Minimalismus und Außenraumbezug prägen eine Villa