Aus einem Guss
Das Raumprogramm sollte auf eine vierköpfige Familie zugeschnitten sein, auf der Wohnebene sollte größtmögliche Offenheit herrschen und es sollten möglichst wenig verschiedene Materialien eingesetzt werden
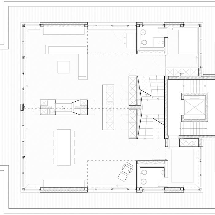
Zwei benachbarte Duplex-Wohneinheiten, die den oberen Abschluss eines Mehrfamilienhauses bilden, sollten zusammengelegt und grundlegend umgebaut werden. Für das so entstehende neue Familiendomizil hatten die Bauherren einige Wünsche an Schluppkotten Architekten, die es zu vereinbaren galt: Das Raumprogramm sollte auf eine vierköpfige Familie zugeschnitten sein, auf der Wohnebene sollte größtmögliche Offenheit herrschen und es sollten möglichst wenig verschiedene Materialien eingesetzt werden. Schnell war klar, dass eine solche Zusammenlegung zweier Wohnungen nicht ohne aufwendige Eingriffe in den Rohbau realisiert werden konnte.
Eine Herausforderung war es dabei, die Präsenz der früheren Wohnungstrennwand auf ein Minimum zu reduzieren. „Im ersten Schritt haben wir eine Reihe von Durchbrüchen ausgeführt. Im zweiten Schritt haben wir die statisch unverzichtbaren Wandscheiben und Unterzüge in den Ausbau integriert oder über Vouten zu Lichtquellen uminterpretiert“, so Dirk Miguel Schluppkotten. Schöner Nebeneffekt: Die Vouten verstecken nicht nur die LED-Leuchten, sondern schenken auch gleichmäßiges Licht und erhellen die Räume auf sanfte Art.
Um den einheitlichen und ruhigen Charakter der neu geschaffenen Wohnung zu stärken, sprechen sämtliche hochwertige Einbaumöbel die gleiche, reduzierte Sprache: Wie beispielsweise die Kaminmöbel mit Tunnelkamin im Bereich der früheren Trennwand, die Küche mit freistehendem Küchenblock, der den Querbezug und die „Überwindung“ der Trennwand thematisiert, oder auch der Abstell- und Technikschrank unterhalb des Treppenpodests. Wie vom Bauherren gewünscht, haben die Architekten einen durchgängigen Bodenbelag von Savamea in allen Räumen verlegt: Vom Wohnbereich bis zur Dusche wirkt dieser wie aus einem Guss.
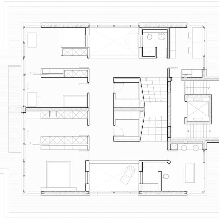
„Zentrales Element des Entwurfs ist die vierläufige Treppe, die in ihrer Form eine Vielzahl von Erschließungsfiguren vereint und so die neu gewonnene Bewegungsfreiheit inszeniert“, erklärt der Architekt. Die individuell gestaltete und gefertigte Treppe wirkt zwar filigran, ist aber sehr robust: Denn sie ist aus Stahl. Während des Umbaus wurde auch die technische Gebäudeausrüstung auf modernen Standard gebracht: So wurden beispielsweise eine Fußbodenheizung, Handtuchheizkörper in den Bädern oder auch Teilklimaanlagen eingebaut. Durch die Zusammenlegung der beiden Wohneinheiten des Staffelgeschosses entstand schließlich ein Haus auf dem Haus, das sich mit seiner umlaufenden Terrasse zudem vom Rest des Gebäudes abhebt.
www.schluppkotten-architekten.de
(Erschienen in CUBE Frankfurt 01|20)

