Leuchtender Rationalismus

Umnutzung schafft unverwechselbares Ensemble im Lyoner Quartier

SFA_FrankfurtLyonerStrasse04_LisaFarkas_01_19_700pixel

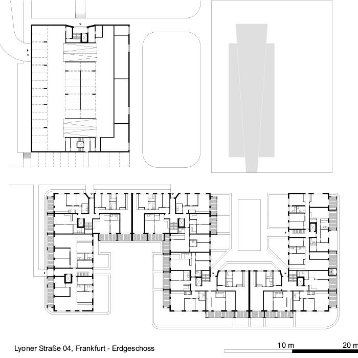
Seit 2010 wird die Transformation der ehemaligen „Bürostadt Niederrad“ zu einem gemischten Büro- und Wohnstadtteil unter der neuen Bezeichnung „Lyoner Quartier“ vorangetrieben. Für Stefan Forster Architekten ist das Areal inzwischen ein äußerst vertrautes Gelände. Die Frankfurter Architekten wandelten in dem Mischgebiet bereits zwei leerstehende Bürogebäude zu Wohnungen um – darunter (im Auftrag der GWH) ein Hochhaus aus den 1970er-Jahren an der südlichen Quartiersgrenze  den sogenannten Ruby Tower.

In unmittelbarer Nachbarschaft zu diesem sind nun zwei weitere Bauteile mit 158 Wohnungen auf dem Grundstück zwischen Lyoner Straße und Stadtwald entstanden. Zusammen mit dem Ruby Turm bilden sie ein neues unverwechselbares Ensemble: Den zur Straße orientierten achtgeschossigen kubischen Baukörper, der ein Parkhaus mit darüber angeordneten Wohnungen aufnimmt und das separate Wohngebäude, das in liegender S-Form zwei Höfe umschließt. Die viergeschossige Quartiersgarage bietet Stellplätze für die Bewohner:innen der beiden Neubauten wie auch des benachbarten Hochhauses.

Die reduzierte und klare Formensprache der monumentalen Fassade des kombinierten Wohn-/Parkhauses erinnert an Aldo Rossis Architettura Razionale und ist in einem warmroten Klinker gehalten, der sich auf das leuchtende Rot des Ruby Tower bezieht. Diese Farbgestaltung mit dem Wechsel von Klinker und rötlichem Putz prägt auch den mäanderförmigen Riegelbau im Hintergrund.  

Die Drei- bis Fünf-Zimmerwohnungen in beiden Bauteilen orientieren sich zu beiden Seiten und verfügen über großzügige Freibereiche in Form von Loggien und Terrassen; lediglich die Zwei-Zimmerwohnungen sind nur zu einer Seite ausgerichtet.

www.sfa.de

Fotos:

Lisa Farkas
www.lisafarkas.de

(Erschienen in CUBE Frankfurt 01|23)

Nothing found.

Transformation ins Heute

Wohnung im Westend wird geöffnet, aufgehellt und präzisiert

Bauernhaus reloaded

Ein Hof im Münchner Umland wurde zum Ort, der Geschichte atmet und Zukunft lebt

Freundliche Riesen

Wohnanlage mit viel Grün als Abschluss des Siedlungsprojekts „Stadtgut Hellersdorf“

Nothing found.

IMG_6741_15_700pixel

Nahtloses Design

Swen Urban gestaltet Sitzmöbel für den Innen- und Außenbereich

Aufm-mhvogel_7541_19_700pixel

Referenz ans Refektorium

Raumkonzept in ehemaliger Kirche ermöglicht kulinarischen und kulturellen Genuss

k176-Einfamilienhaus-Hang-10_19_700pixel

Odenwald-Panorama

Ein Haus im Stil der klassischen Moderne fügt sich in die historisch geprägte Umgebung

_DSC6999_Su-dtangente_19_700pixel

Behutsam abgesetzt

Wohnhäuser in Idstein schaffen Raum für Wohnkomfort und Privatsphäre

Elegant und Funktional

Der Umbau eines Gartenrestaurants verbindet Komfort, Zeitlosigkeit und Langlebigkeit

Licht als Lebensqualität

Wohnhaus findet durch Sanierung zu neuer Leichtigkeit, Offenheit und Energieeffizienz

Ausgewogen und harmonisch

Terrassierung auf steilem Hanggrundstück schafft großzügige Aufenhaltsbereiche

SHND3416_15_700pixel

Zurückhaltend

Gezielte Farbakzente unterstreichen den Loftcharakter einer Wohnung