Bewahrt durch Wandel
Sanierung als Statement moderner Wohnkultur: lichtdurchflutet, offen, elegant
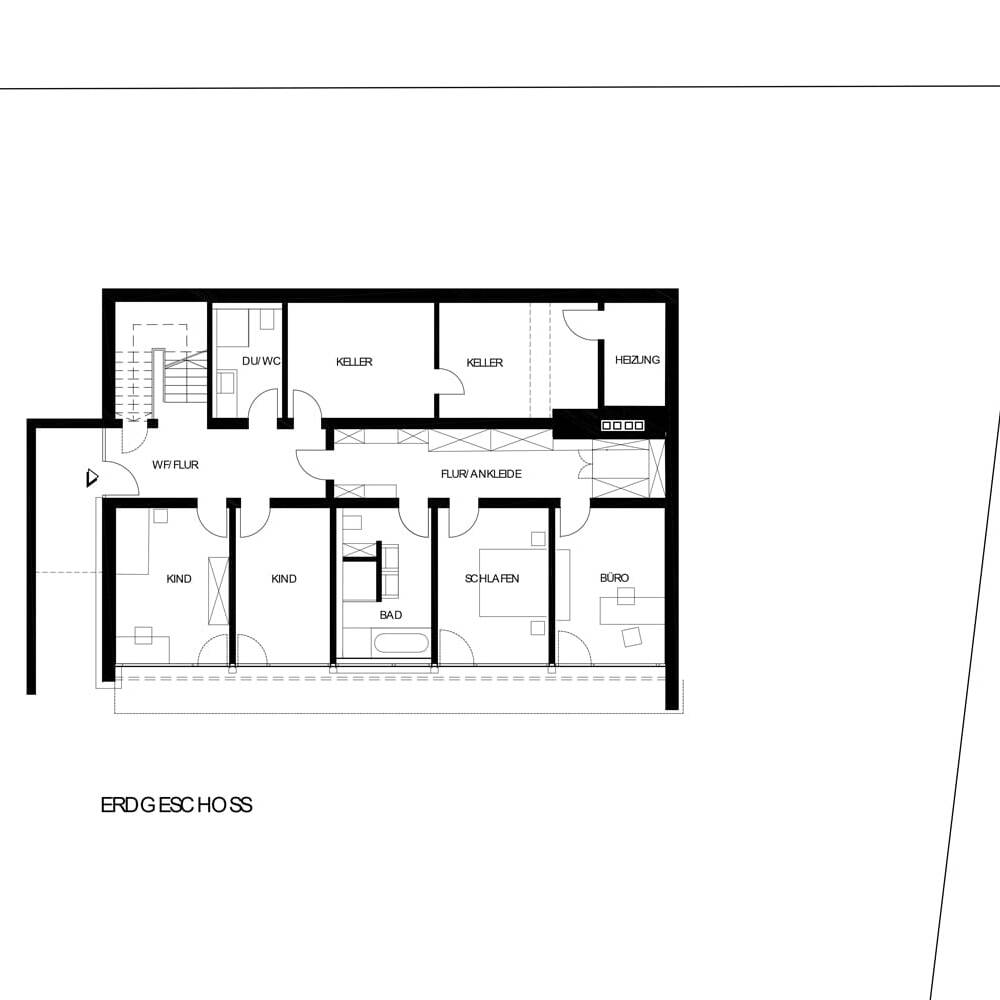
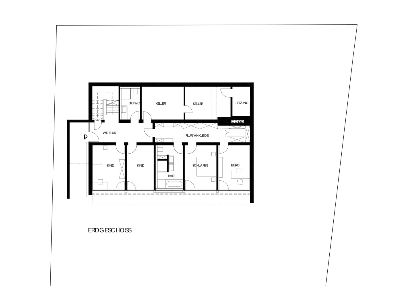
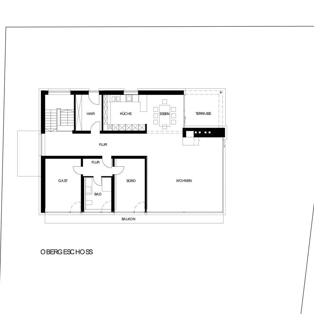
Ein Haus aus den 1960er-Jahren, das auf den ersten Blick an die klaren Linien von Richard J. Neutra oder Mies van der Rohes Barcelona-Pavillon erinnert: große Glasflächen, horizontale Fensterbänder, weit gespannte Räume, eine fast schwerelose Verbindung zwischen Innen und Außen. Dieses Einfamilienhaus, entworfen vom Frankfurter Architekten Friedrich Rath, wurde nun von Guckes & Partner Architekten mit großer Sensibilität in die Gegenwart geführt.
Die Bauherren hatten sich in die zeitlose Architektur verliebt: in das Spiel von Licht und Schatten, in die Offenheit des Grundrisses, in die Selbstverständlichkeit, mit der sich Wohnraum und Garten berühren. Doch nach Jahrzehnten intensiver Nutzung war der Glanz der Moderne verblasst. Die Herausforderung bestand darin, das Haus technisch und energetisch auf den neuesten Stand zu bringen, ohne dass es seine charakteristische Erscheinung verliert. Die Architekten begegneten dieser Aufgabe mit einer klaren Leitidee: Bewahren durch behutsame Transformation. Statt das Gebäude neu zu erfinden, wurde sein architektonischer Kern freigelegt und gestärkt. Von außen blieb die klare, horizontale Struktur erhalten. Die alten Aluminiumfenster mit Einfachverglasung wurden durch filigrane Metallrahmen mit Dreifachverglasung ersetzt – inklusive integrierter Lamellen, die für Verschattung sorgen, ohne den eleganten Rhythmus der Fassade zu stören. Der ehemals auskragende Balkon, eine bauphysikalische Schwachstelle, wurde durch eine schlanke, thermisch getrennte Stahlkonstruktion mit Gitterrosten ersetzt: leicht, transparent, dem Geist der Moderne verpflichtet.
Innen zeigt sich, wie Alt und Neu präzise ineinandergreifen. Der durchgehende Natursteinboden aus Travertin – einst Symbol des luxuriösen Wohnens der 1960er-Jahre – blieb weitgehend erhalten. Er zieht sich nun, wie einst gedacht, vom Wohnraum bis auf die Terrasse und verbindet die Räume zu einer fließenden Einheit. Neue Deckenheizungen ersetzen die alten Bodenkonvektoren und sorgen für behagliche Wärme, ohne die großzügige Raumhöhe zu beeinträchtigen.
Auch das Untergeschoss, ursprünglich als Büro genutzt, wurde in die Wohnwelt integriert. Eine neu gestaltete Treppe öffnet den Zugang zum Garten; ein großzügiges Fenster über dem Podest lässt Licht bis tief in den Eingangsbereich fallen. So entsteht selbst in den niedrigeren Räumen ein Gefühl von Weite und Offenheit. Energetisch wurde das Gebäude völlig neu aufgestellt: Eine Wärmepumpe, zentrale Wohnraumlüftung und Photovoltaikanlage bringen es auf KfW-EE-55-Standard. Der Tank der früheren Ölheizung wurde zur Zisterne für die Gartenbewässerung. Eine mineralische Außendämmung und das sanft geneigte Metalldach mit schmalem Randprofil sorgen dafür, dass die strenge Flachdachoptik erhalten bleibt.
Fotos:
Birgit Kallerhoff
www.fotokallerhoff.de
(Erschienen in CUBE Frankfurt 04|25)

