Flexible Reminiszenz
Aufstockung von Mehrfamilienhäusern aus den 1960er-Jahren
Ein Ensemble von Mehrfamilienhäusern aus den 1960er-Jahren sollte weiterentwickelt werden. Da diese auf einer studentischen Diplomarbeit aus der Entstehungszeit basieren, sollte der ursprüngliche Entwurf möglichst homogen fortgeschrieben werden. Die Hausbesitzer wünschten sich eine gemeinsame Formensprache und Gebäudegeometrie sowie eine Aufstockung statt eines Anbaus. Weiterhin sollte der historische Entwurf erhalten, die grüne Mitte beibehalten und die äußere Bebauung behutsam verdichtet werden.
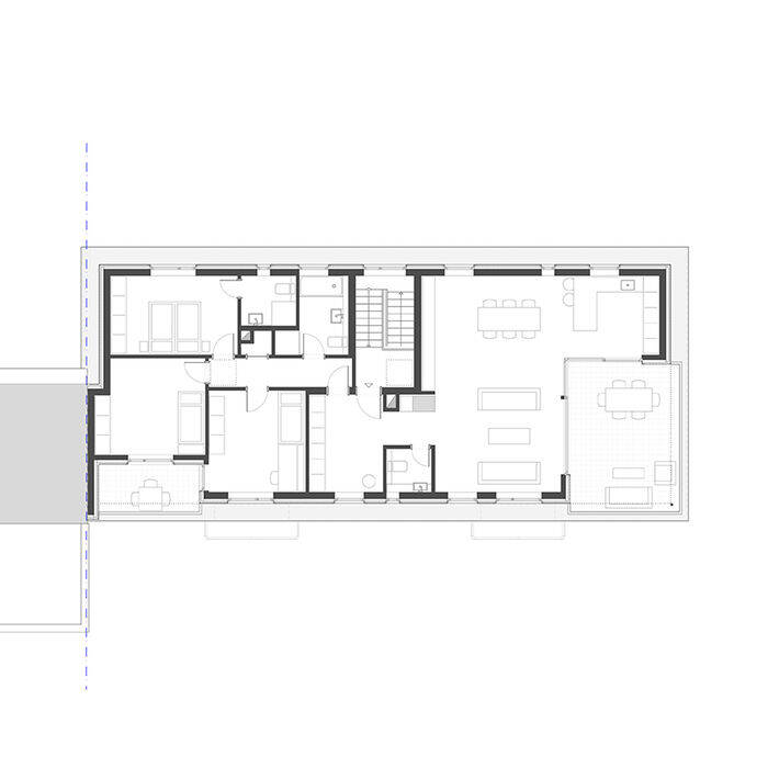
pauly + fichter planungsgesellschaft hat für drei der fünf Besitzer fast baugleiche Hausaufstockungen entworfen, umgesetzt und ausgeführt. Die ehemaligen Satteldächer wurden abgebrochen und jeweils durch ein Staffelgeschoss mit Flachdach ersetzt sowie die verputzten Außenwände des alten Baukörpers bis auf Brüstungshöhe des neuen Geschosses hochgezogen. Eine Reminiszenz an den ursprünglichen Entwurf ist der durchgehende Dachüberstand. Er umfasst auch die Dachterrassen als umlaufender Bügel und bettet diese wie eine Erweiterung des Innenraumes in das Gebäudevolumen ein. Der sichtbare Fassadenstreifen ist mit einer vertikalen Lattung aus recyclebarem Kunstholz belegt, der zu 60 Prozent aus Reishülsen und über 20 Prozent aus Steinsalzen besteht, und im Gegensatz zu Naturholz die strengen Vorgaben des Brandschutzes erfüllt. Der Grundriss im Inneren ist so flexibel, dass hier je nach Bedarf zwei kleinere Wohnungen oder durch geringfügige Umbaumaßnahmen eine große Penthouse-Wohnung entstehen kann. Beim Betreten fällt der Blick ins Grüne auf den erhaltenen alten Baumbestand. Ein Durchgang führt in einen großzügigen Wohn-Essbereich mit offener Küche, der sich über große Schiebetüren über Eck auf die Terrasse erweitern lässt. Die Individualzimmer im hinteren Teil der Wohnung verfügen ebenfalls über einen kleinen Freisitz. Durch den Versatz der Fassade nach Innen entstanden Hohlräume im Brüstungsbereich der raumhohen Fenster. Diese wurden mit Einbaumöbeln gefüllt, die viel Stauraum bieten und das vertikale Stakkato der Fensteranordnung unterstreichen.
Fotos:
Thomas Ott
www.o2t.de
(Erschienen in CUBE Frankfurt 03|23)

