Variabel, Flexibel, Wandelbar
Erweiterungsbau einer Grundschule in Zepernick
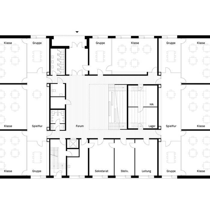
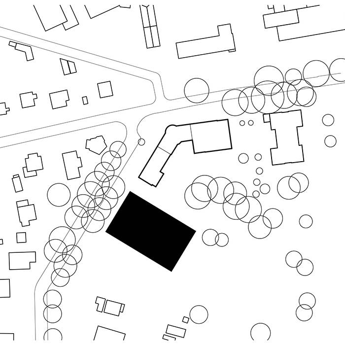
Nur 20 km nordöstlich von der Hauptstadt liegt Zepernick, wo eine aus dem frühen 20. Jahrhundert stammende, denkmalgeschützte Grundschule einer Erweiterung bedurfte. 2018 wurde der Neubau fertiggestellt und bildet nun mit den Bestandsbauten ein offenes Halbrund, das sich zum Schulcampus hin öffnet. Der Entwurf stammt vom Büro Renner Architekten aus Berlin und wurde in Zusammenarbeit mit Bollinger + Fehlig Architekten realisiert. Auf dem Schulgelände entstand ein quaderförmiger, doppelgeschossiger Neubau mit rundum einheitlichen, rechteckigen Fenstern, die jeweils über einen Lüftungsflügel verfügen, sodass eine natürliche Querlüftung möglich ist. Das Dach ist begrünt und dient als Retentionsdach, das Regenwasser rückhält und für ein verbessertes Mikroklima am Standort sorgt. Große Sheddächer und Oberlichter minimieren die Dachfläche allerdings, sorgen aber für viel Tageslicht im Gebäude, wodurch viel künstliches Licht eingespart werden konnte. Das Gebäude wurde in Massivbauweise – vorwiegend mit gelben Ziegeln für die Außenwände und Holz für die Innenräume – erstellt. Breite Sohlbänke und perlbeige Metallbänder strukturieren zusätzlich zu den fein abgestuften Vor- und Rücksprüngen. Selbstverständlich wurde bei den verwendeten Materialien auf Nachhaltigkeit geachtet und auch das Energiekonzept ist umweltverträglich. Für das Raumprogramm von 15 Klassenzimmern, dem Foyer und neun Teilungsräumen, Fluren, Sanitärräumen etc. standen 2.700 m² zur Verfügung.
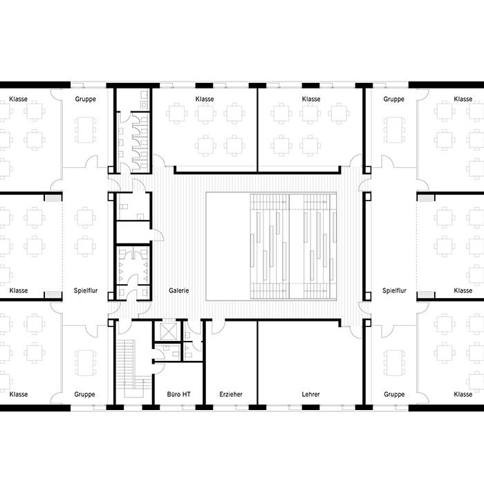
Der Haupteingang befindet sich an der zum Schulhof orientierten Seite und führt ins Foyer mit einer überdimensionalen Freitreppe, die in das obere Stockwerk führt. Die flachen Stufen dienen auch als Sitzfläche für die Schüler. So ergibt sich eine zentrale Halle mit einer umlaufenden Galerie im ersten Obergeschoss. Forum und Galerie sind multifunktional nutzbar – ob für Veranstaltungen oder auch nur als Spiel- und Aufenthaltsfläche für lebendige Kommunikation von Lehrern und Schülern. Bei Theater- und Musikdarbietungen kann der Raum auch zum Zuschauerforum mit Bühne werden. Um diesen im Zentrum liegenden wandelbaren Bereich sind alle Klassenräume angeordnet. Der schwierigste Teil des Entwurfskonzeptes war höchstwahrscheinlich die räumliche Organisation mit ihrer hohen Flexibilität. Angepasst an neue Lernmethoden können durch das Verrücken von Wänden mehrere Räume zu Clustern zusammengeschlossen werden – oder aber auch Bereiche abgetrennt werden, wenn Ruhe und Konzentration erforderlich ist. Das dreizügige Ergänzungsgebäude kann etwa 450 Schüler verschiedener Altersgruppen aufnehmen. Die farbliche Gestaltung der einzelnen Bereiche dient (auch) der Orientierung und ist identitätsstiftend.
Fotos:
Stefan Müller
www.stefanjosefmueller.de
(Erschienen in CUBE Berlin 04|22)
